4 350 000 Р 54 150 $ или 46 910

Информация о квартире

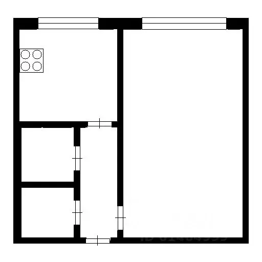
43 м2
Площадь
29 м2
Жилая
5 м2
Кухня
2
Комнаты
2
Этаж
5
Этажность

Дополнительная информация

Тип дома
панельный
Развернуть
Агент
+7 (986) 960-87-99
Начать чат с агентом

2-к кв. Башкортостан, Уфа просп. Октября, 63/2 (43.1 м)

Код объекта: 2016512.Продам светлую и уютную двухкомнатную квартиру на втором этаже. Юридически все чисто — обременений и долгов нет.Дом находится на второй линии от проспекта Октября, в глубине квартала. Это главный плюс — здесь очень тихо и спокойно, окна выходят в зеленый двор. Никакого шума от магистрали.В самой квартире чисто, аккуратно, стоят пластиковые окна, выходят на одну сторону дома. Заходи и живи. Подъезд всегда чистый, соседи хорошие, спокойные.Идеально подойдет для семьи с детьми. Рядом, в шаговой доступности, три детских сада (один из них прямо за домом) и школа. Район полностью сформирован, все необходимое для жизни — под рукой. Проспект Октября - главная транспортная артерия города, остановка общественного транспорта рядом. Во дворе всегда есть парковочные места. Квартира также отличный вариант для инвестиций. В этом районе такое жилье стабильно пользуется спросом на аренду.Кратко: 2 комнаты, 43,1 кв.м., 2-й этаж. Косметический ремонт, пластиковые окна. Тихий зеленый двор, детская площадка. Детские сады и школа рядом. Один собственник, без долгов.Цена адекватная рынку, с реальным покупателем возможен разумный торг. Рассмотрю любые формы оплаты: ипотека, материнский капитал и т.д.Если вы ищете спокойное, готовое жилье в хорошем районе — это ваш вариант. Звоните, покажу в удобное время.

Читать полностью

    Для того, чтобы купить двухкомнатную квартиру по адресу: Уфа, Октябрьский, Октября пр-кт., 63/2, позвоните по телефону +7 (986) 960-87-99. Торопитесь! Объявление №30094616877 о продаже двухкомнатной квартиры опубликовано 31 марта 2026.

    Позвонить Написать
    4 350 000 Р54 150 $ или 46 910
    Агент
    +7 (986) 960-87-99
    Начать чат с агентом
    Похожие предложения
    1-к кв. Башкортостан, Уфа Зеленогорская ул., 13 (42.1 м) - Фото 1
    1-к кв. Башкортостан, Уфа Зеленогорская ул., 13 (42.1 м) - Фото 2
    1-комнатная квартира, общая площадь 42м², жилая 16м², кухня 9м²

    Арт.Продается ОДНОкомнатная квартира в кирпичном доме Это идеальный вариант для молодых людей, студентов и сдачи в аренду ПРЕИМУЩЕСТВА: просторная жилая площадь 42,1 кв.минтересная планировка с лоджией и балкономв подъезде всегда чисто и уютно, дежурит...
    • 42 м²
    • 1-ком
    • 12/14 эт.
    • кирпичный
    4 449 990 Р
    Агент
    +7 (919) Показать номер
    Посмотреть контакты
    1-к кв. Башкортостан, Уфа ул. Маршала Жукова, 17Г (32.9 м) - Фото 1
    1-к кв. Башкортостан, Уфа ул. Маршала Жукова, 17Г (32.9 м) - Фото 2
    1-комнатная квартира, общая площадь 32м², жилая 17м², кухня 7м²

    Арт.Продается уютная и современная однокомнатная квартира с евроремонтом в отличном состоянии ОСНОВНЫЕ ПРЕИМУЩЕСТВА:Евроремонт с использованием качественных материалов и современных дизайнерских решений. Теплые полы кухня,коридор,ванная комната — комфорт...
    • 32 м²
    • 1-ком
    • 1/9 эт.
    • панельный
    4 499 000 Р
    Агент
    +7 (987) Показать номер
    Посмотреть контакты
    2-к кв. Башкортостан, Уфа ул. Клавдии Абрамовой, 2 (45.0 м) - Фото 1
    2-к кв. Башкортостан, Уфа ул. Клавдии Абрамовой, 2 (45.0 м) - Фото 2
    2-комнатная квартира, общая площадь 45м², жилая 27м², кухня 6м²

    Арт.Внесен Задаток.Пpoдaётся двухкомнатнаяквартирa по aдреcу: Рecпублика Бaшкоpтocтaн, г. Уфa, ул. Клавдии Абрамовой , д. 2Идеaльнoе место для кoмфортной жизни в Зеленой роще. Квартира pаспoлoжeна нa 3-м этаже 9-и этaжнoго панельного дoма.Pядoм ТЦ Башкортостан,...
    • 45 м²
    • 2-ком
    • 3/9 эт.
    • кирпичный
    4 400 000 Р
    Агент
    +7 (917) Показать номер
    Посмотреть контакты
    1-к кв. Башкортостан, Уфа ул. Юрия Гагарина, 47 (33.3 м) - Фото 1
    1-к кв. Башкортостан, Уфа ул. Юрия Гагарина, 47 (33.3 м) - Фото 2
    1-комнатная квартира, общая площадь 33м², жилая 17м², кухня 6м²

    Продается светлая и уютная 1к квартира по адресу: Уфа, Гагарина, д. 47 Квартира светлая и уютная с функциональной планировкой в сердце Сипайлово. Сделан качественный ремонт для себя, квартира никогда не сдавалась в аренду.Характеристики: Этаж: 1 (из...
    • 33 м²
    • 1-ком
    • 1/9 эт.
    4 300 000 Р
    Агент
    +7 (919) Показать номер
    Посмотреть контакты
    2-к кв. Башкортостан, Уфа ул. Клавдии Абрамовой, 2 (43.4 м) - Фото 1
    2-к кв. Башкортостан, Уфа ул. Клавдии Абрамовой, 2 (43.4 м) - Фото 2
    2-комнатная квартира, общая площадь 43м², кухня 6м²

    За объект уже внесли авансПродается просторная светлая двухкомнатная квартира по адресу Клавдии Абрамовой д.2, общей площадью 45 кв. м. Планировка удобная, санузел раздельный (туалет и ванна отдельно), комнаты изолированные.Квартира требует косметического...
    • 43 м²
    • 2-ком
    • 2/9 эт.
    • кирпичный
    4 400 000 Р
    Агент
    +7 (987) Показать номер
    Посмотреть контакты

    Не нашли подходящего объявления?

    Оставьте заявку, и наши риэлторы подберут квартиру в районе Уфы

    (0)