Реализация объекта недвижимости приостановлена

Информация о коттедже

80.0 м2
Площадь
1
Этажность
6.0 cоток
Участок

Дополнительная информация

Дом продаётся вместе с участком
есть
Развернуть

Дом в Башкортостан, Уфа городской округ, с. Нагаево (80 м)

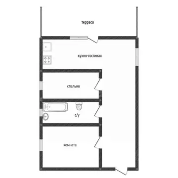
Предлагается Вашему вниманию современный коттедж с просторной планировкой и выходом на террасу. Дом находится в центре с. Нагаево .Дом можно приобрести за наличку и по обычной ипотеке . Площадь дома 80 м2: гостиная + кухня с высотой потолка до 2,85 м с выходом на террасу, 3 спальни, сан. узел, бойлер. Предчистовая отделка с идеально выровненными стенами.Полная продуманная электрическая разводка по всему дому. Вентиляция в сан. узлах и кухне Окна ПВХ. Энергоэффективные двухкамерные стеклопакеты 40 мм, профиль 70 мм.Фундамент свайно-ростверковый.Стены газоблок, толщина 300 мм.Облицовка - фасадной панелью.Крыша Металлочерепица.ЗЕМЕЛЬНЫЙ УЧАСТОК - 6,24 соток:КОММУНИКАЦИИ:-Канализация по ГОСТу заведена в дом во все мокрые зоны - кухня и сан.узлы-Колодец, труба заведена Код пользователя: 43543Номер в базе: 8248245

Читать полностью

    Реализация объекта недвижимости приостановлена

    Не нашли подходящего объявления?

    Оставьте заявку, и наши риэлторы подберут купить дом в районе Нагаево

    (0)