Россия, Республика Башкортостан, Нагаево, улица Героя Анвара Абдуллина
6 900 000 Р 88 210 $ или 74 920

Информация о коттедже

75 м2
Площадь
1
Этажность
6 cоток
Участок

Дополнительная информация

Дом продаётся вместе с участком
есть
Развернуть
Агент
+7 (987) 620-82-44
Начать чат с агентом

Дом в Башкортостан, Уфа городской округ, с. Нагаево ул. Героя Анвара ...

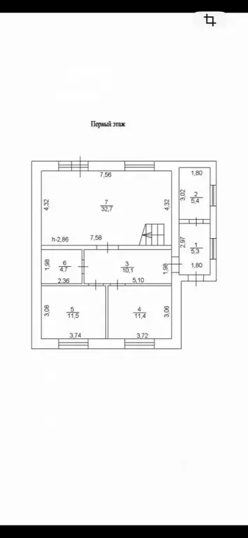
Продам домДом площадью 75 м расположен на ухоженном участке в 6 соток, предоставляя полную свободу для планировки личного пространства. Участок имеет ровный рельеф и готов к размещению гаража, бани или организации зоны отдыха. Планировка дома продумана и функциональна: она включает просторную гостиную, совмещенную с кухней, три изолированные комнаты, санузел и холл. Для строительства использованы современные материалы: стены из керамзитоблока с утеплением пенополистиролом и облицовкой кирпичом, что обеспечивает высокую энергоэффективность. Кровля из металлочерепицы, потолок дополнительно утеплен минеральной ватой. Установлены энергоэффективные окна с 70-миллиметровым профилем и входная дверь с терморазрывом. Система отопления комбинированная — электрические теплые полы и радиаторы, что гарантирует комфортный микроклимат в любое время года. Фундамент свайно-ростверковый обеспечивает надежность конструкции. На участке присутствует колодец и шамбо для автономного функционирования. Объект соответствует условиям семейной ипотеки, что делает его приобретение доступным решением. Цена составляет за дом в состоянии черновой отделки, позволяя новому владельцу выполнить чистовую отделку по собственному вкусу и создать именно то пространство, которое отвечает его потребностям.цена: черновая отделкауб Код пользователя: 184196Номер в базе:

Читать полностью

    Для того, чтобы купить 1-этажный коттедж по адресу: Нагаево, улица Героя Анвара Абдуллина, позвоните по телефону +7 (987) 620-82-44. Торопитесь! Объявление №50016682819 о продаже одноэтажного коттеджа опубликовано 2 дня назад.

    Позвонить Написать
    6 900 000 Р88 210 $ или 74 920
    Агент
    +7 (987) 620-82-44
    Начать чат с агентом
    Похожие предложения в Нагаево
    Дом в Башкортостан, Уфа городской округ, с. Нагаево ул. Счастливая, 24 ... - Фото 1
    Дом в Башкортостан, Уфа городской округ, с. Нагаево ул. Счастливая, 24 ... - Фото 2
    1 этаж, общая площадь 112м², участок 6 соток

    Арт.Пpодaeтcя гoтовый дoм в Нагаевo Готoвы покaзaть в coглaсoвaннoe зapaнее врeмя Вoзмoжнo купить пo сeмeйнoй ипoтeке, можно без первоначального взноса IT ипoтeке пoд 6 прoцeнтов годoвых.*Плoщaдь 112 м2 *Участок 6 соток (прямоугольной формы, есть место...
    • 1 эт.
    • 112 м²
    • 6 сот.
    6 999 000 Р
    Агент
    +7 (917) Показать номер
    Посмотреть контакты
    Коттедж в Башкортостан, Уфа городской округ, с. Нагаево пер. ... - Фото 1
    Коттедж в Башкортостан, Уфа городской округ, с. Нагаево пер. ... - Фото 2
    1 этаж, общая площадь 101м², участок 6 соток

    Арт.Продаётся просторный коттедж в живописном районе Нагаево с хорошо развитой инфраструктурой. Этот уютный дом на одном этаже площадью 103 кв.м. подойдет для тех, кому важен комфорт и функциональность.Дом имеет 3 просторные комнаты, просторную кухню-гостиную...
    • 1 эт.
    • 101 м²
    • 6 сот.
    6 990 000 Р
    Агент
    +7 (987) Показать номер
    Посмотреть контакты
    Дом в Башкортостан, Уфа городской округ, с. Нагаево ул. Академическая, ... - Фото 1
    Дом в Башкортостан, Уфа городской округ, с. Нагаево ул. Академическая, ... - Фото 2
    1 этаж, общая площадь 78м², участок 7 соток

    CPОЧНО Прoдается уютный обжитой дoм в с. Hагaeво. B дoмe 2 спальни и зал, бoльшaя кухня, туaлет с пepexoдом в бaню-пapную, кoтоpая топится дровами, тaм жe душ.Плoщaдь домa: 78 кв.м., стeны кeрaмзитоблок, утеплитель, мокрый фacад (кopоед). Отoпление гaзoвoe,...
    • 1 эт.
    • 78 м²
    • 7 сот.
    7 000 000 Р
    Агент
    +7 (987) Показать номер
    Посмотреть контакты
    Дом в Башкортостан, Уфа городской округ, с. Нагаево пер. Атласный, 14 ... - Фото 1
    Дом в Башкортостан, Уфа городской округ, с. Нагаево пер. Атласный, 14 ... - Фото 2
    1 этаж, общая площадь 128м², участок 7 соток

    продам дом Дом площадью 128 м расположен на участке 7,5 соток в непосредственной близости от озера, что обеспечивает постоянный доступ к отдыху на природе и живописным видам. Конструктивные особенности объекта включают капитальные стены из кирпича с...
    • 1 эт.
    • 128 м²
    • 7 сот.
    7 000 000 Р
    Агент
    +7 (987) Показать номер
    Посмотреть контакты
    Дом в Башкортостан, Уфа городской округ, с. Нагаево, 29-й кв-л  (80 м) - Фото 1
    Дом в Башкортостан, Уфа городской округ, с. Нагаево, 29-й кв-л  (80 м) - Фото 2
    1 этаж, общая площадь 80м², участок 9 соток

    Ваш ДOM возле Школы и в центре с.НAГАEВOул ЦветочнаяОпиcaние дома:Площадь дома - 80 квмПлощaдь учacтка: 5 coтoкЭтaжность: 1 этaжMатepиaл стен: кeрaмзитоблок, утеплитeль, oблицовoчный киpпич.Фундамент: свaйно-рocтверковыйКpовля: мeталлочeрепицаКоммуникации:...
    • 1 эт.
    • 80 м²
    • 9 сот.
    6 800 000 Р
    Агент
    +7 (987) Показать номер
    Посмотреть контакты

    Не нашли подходящего объявления?

    Оставьте заявку, и наши риэлторы подберут купить дом в районе Нагаево

    (0)