4 340 000 Р 56 500 $ или 48 530

Информация о квартире

43 м2
Площадь
23 м2
Жилая
10 м2
Кухня
1
Комната
2
Этаж
3
Этажность

Дополнительная информация

Тип дома
кирпичный
Развернуть
Агент
+7 (917) 471-08-15
Начать чат с агентом

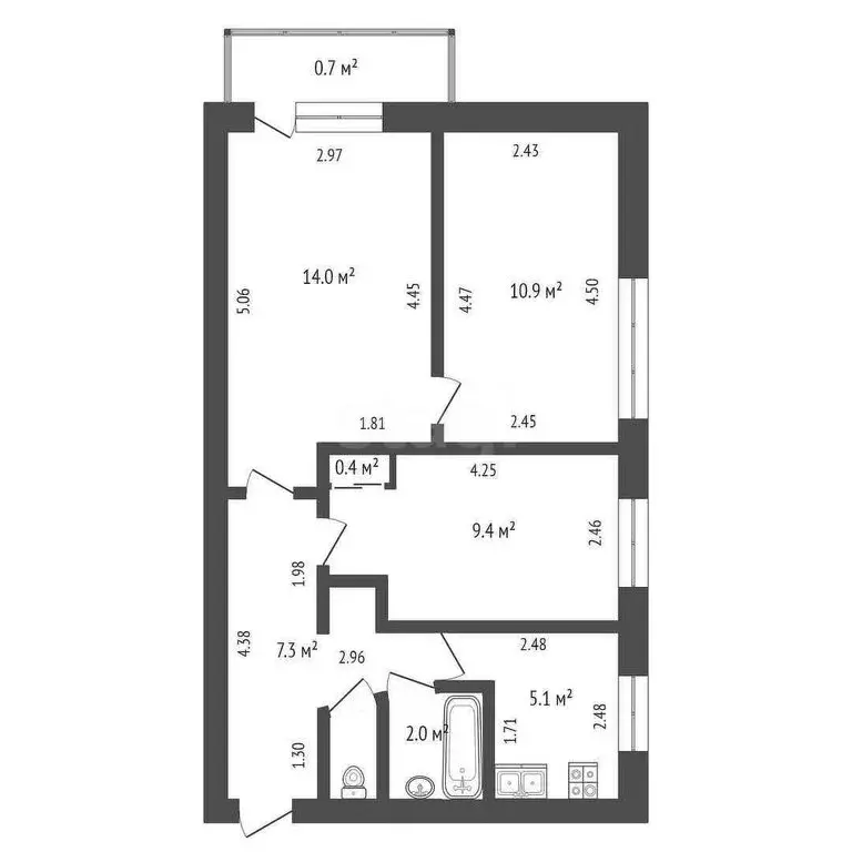
1-к кв. Башкортостан, Мелеуз ул. Карла Маркса, 44 (43.8 м)

Арт.Продаётся светлая уютная евродвушка Особое преимущество возможность оформить Семейную ипотеку под 6 Квартира находится на 2 этаже 3-этажного кирпичного дома. Общая площадь — 43,8 м. Планировка включает просторную кухню-гостиную 19 м и отдельную спальню 16 м. Есть выход на лоджию, а все окна выходят на частный сектор что создает тишину и спокойствие. Преимущества квартиры:Просторная кухня-гостиная площадью 19 м — идеальное пространство для семейных ужинов и встреч с друзьями. Отдельная спальня площадью 16 м обеспечит комфортный отдых после насыщенного дня. Все комнаты светлые благодаря удачному расположению окон.Общее ощущение тепла и комфорта создают высокое качество отделки и приятный интерьер.Технические детали: Квартира расположена на втором этаже трехэтажного кирпичного дома, обеспечивающего дополнительную звукоизоляцию и долговечность конструкции. Окна выходят на частный сектор, создавая атмосферу покоя и тишины. Полностью благоустроенная квартира готова к проживанию: качественные пластиковые окна, современный линолеум и натяжные потолки, полный ремонт санузла керамической плиткойОтличный выбор для тех, кто ценит домашний уют и желает создать свое личное пространство для комфортной жизни.Если вам важна атмосфера домашнего тепла и желание приобрести квартиру, в которой хочется жить долго и счастливо, обязательно рассмотрите этот вариант Приглашаем вас ознакомиться с квартирой лично. Мы уверены, что она сможет стать вашим новым любимым местом проживания Звоните прямо сейчас, чтобы узнать больше деталей и договориться о просмотре

Читать полностью

    Для того, чтобы купить однокомнатную квартиру по адресу: Мелеуз, ул. Карла Маркса, 44, позвоните по телефону +7 (917) 471-08-15. Торопитесь! Объявление №30091097207 о продаже однокомнатной квартиры опубликовано 04 декабря 2025.

    Позвонить Написать
    4 340 000 Р56 500 $ или 48 530
    Агент
    +7 (917) 471-08-15
    Начать чат с агентом
    Похожие предложения
    3-комнатная квартира: Мелеуз, улица Бурангулова, 21 (62 м) - Фото 1
    3-комнатная квартира: Мелеуз, улица Бурангулова, 21 (62 м) - Фото 2
    3-комнатная квартира, общая площадь 62м², жилая 45м², кухня 8м²

    большая квартира с ремонтом в центре городаквартира в теплом кирпичном домепросторные комнаты и не маленькая квадратурановая кухня и мебельсовременная электрика и выключатели с умным домом везде сделан хороший ремонт, осталось по вашему вкусу доделать...
    • 62 м²
    • 3-ком
    • 9/9 эт.
    4 400 000 Р
    Агент
    +7 (909) Показать номер
    Посмотреть контакты
    2-к кв. Башкортостан, Уфа Интернациональная ул., 77 (46.0 м) - Фото 1
    2-к кв. Башкортостан, Уфа Интернациональная ул., 77 (46.0 м) - Фото 2
    2-комнатная квартира, общая площадь 46м², жилая 30м², кухня 5м²

    Продаётся уютная, светлая квартира с приятной атмосферой в самом центре Черниковки Общая площадь: 46,3 кв.м Жилая площадь: 30,6 кв.м Кухня: 5,8 кв.мКвартира тёплая и светлая, с хорошим ремонтом. Установлены качественные межкомнатные двери, на окнах —...
    • 46 м²
    • 2-ком
    • 5/5 эт.
    • панельный
    4 299 000 Р
    Агент
    +7 (986) Показать номер
    Посмотреть контакты
    3-комнатная квартира: Стерлитамак, улица Худайбердина, 123 (50.2 м) - Фото 1
    3-комнатная квартира: Стерлитамак, улица Худайбердина, 123 (50.2 м) - Фото 2
    3-комнатная квартира, общая площадь 50м², жилая 34м², кухня 5м²

    Продам отличную, светлую трехкомнатную квартиру по улице Худайбердина 123.Общая площадь квартиры 50,2 кв.мРазвитая инфраструктура. Квартира находится рядом с несколькими лицеями, школами, гимназиями и детскими садами. Также рядом находятся магазины и...
    • 50 м²
    • 3-ком
    • 5/5 эт.
    4 200 000 Р
    Агент
    +7 (987) Показать номер
    Посмотреть контакты
    2-к кв. Башкортостан, Уфа Максимовка мкр, ул. Юшатырская, 15 (55.2 м) - Фото 1
    2-к кв. Башкортостан, Уфа Максимовка мкр, ул. Юшатырская, 15 (55.2 м) - Фото 2
    2-комнатная квартира, общая площадь 55м², жилая 35м², кухня 8м²

    2К КВ - ИЗОЛИРОВАННАЯАдрес: г. Уфа, р-н Калининский, ул. Юшатырская, д. 15.(ремонт: заезжай и живи)Постройка: 2013 год;Тип дома: кирпичный;Этаж: 1/3;Высота потолков: 2.5 м.;Общая пл. (без на лоджию): 58.2 кв.м.;Общая пл.: 55.2 кв.м.;Жилая пл.: 35.9...
    • 55 м²
    • 2-ком
    • 1/3 эт.
    • кирпичный
    4 300 000 Р
    Агент
    +7 (917) Показать номер
    Посмотреть контакты
    1-к кв. Башкортостан, Уфа ул. Валерия Лесунова, 4А (40.9 м) - Фото 1
    1-к кв. Башкортостан, Уфа ул. Валерия Лесунова, 4А (40.9 м) - Фото 2
    1-комнатная квартира, общая площадь 40м², кухня 9м²

    Продается шикарная квартира по адресу ул. Валерия Лесунова д. 4а. Квартира находится на 12 этаже 19 этажного дома.В квартире современная планировка : просторная кухня и изолированная спальня, сан узел совмещенный и просторная отдельная гардеробная комната....
    • 40 м²
    • 1-ком
    • 12/17 эт.
    4 299 999 Р
    Агент
    +7 (987) Показать номер
    Посмотреть контакты

    Не нашли подходящего объявления?

    Оставьте заявку, и наши риэлторы подберут квартиру в районе Мелеуза

    (0)