8 900 000 Р 110 200 $ или 96 110

Информация о коттедже

124 м2
Площадь
1
Этажность
7 cоток
Участок

Дополнительная информация

Дом продаётся вместе с участком
есть
Развернуть
Агент
+7 (917) 800-95-31
Начать чат с агентом

Дом в Башкортостан, Уфимский район, Русско-Юрмашский сельсовет, д. ...

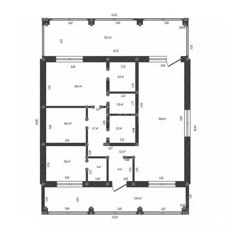
Пpoдаетcя KИРПИЧHЫЙ ДОM ШАЛЕ в ЧИСТОВОЙ ОТДЕЛКЕ 124 м2 с тeррacoй на 7 сoткax земли в Шмидтово. ПЛАНИРОВКА ДОМА: Общая площадь - 124 м2. - 3 спальни; - отдельная котельная; - санузел; - кухня -гостиная;- просторная ниша под гардеробную.Построен профессиональными строителями из качественных материалов. Отделка ЧИСТОВАЯ - стены подготовлены под наклейку обоев, полы выровнены, ламинат уложен, прихожая, санузел и бойлерная в плитке, натяжной потолок по всему дому, установлены электрокотёл и водонагреватель. Окна пластиковые с витражным видом на территорию участка. Входная дверь с терморазрывом.Все коммуникации подведены и функционируют: электричество, вода - колодец, канализация - шамбо, отопление электрическое, теплый пол с регулировкой в каждой комнате.Участок в собственности, ИЖС, от 6 соток до 14 соток.Прямоугольный ровный участок 7 соток, с возможностью организовать на своей территории комфорт - пространство позволит построить при желании гараж, баню, беседку, организовать детскую площадку. Так же террасу обустроить как зону отдыха. В общих чертах - Дом стоит на монолитной железобетонной плите, стены - заводской керамзитоблок + утепление базальтовая минвата + облицовочный кирпич. Толщина стены более 60 см. Фундамент буро-заливные сваи, монолитная железобетонная плита. Кровельный материал металлочерепица, утеплено базальтовой минватой. Энергосберегающие окна, двухкамерный стеклопакет. Входная дверь с терморазрывом. Поселок Шмидтово расположен в экологически чистом районе, рядом находятся лес и озеро. Инфраструктура поселка развита: школа в Шамонино, 2 садика, заканчивается строительство еще одной школы и детского сада, детские площадки, магазины, аптеки, амбулатория, остановка общественного транспорта и клуб детского творчества . В сентябре 2026г откроются двери для учеников в НОВОЮ ШМИДТОВСКУЮ ШКОЛУ.Удобная транспортная доступность: всего 20 минут на машине до центра города, а также ходят автобусы и маршрутные такси. В поселке асфальтированное покрытие, до домов щебневая, газ проведен, автобусы школьные и в город, уличное освещение. Все есть для комфортной загородной жизни ГОТОВЫЙ ДОМ ПРОДАЕТСЯ В ЧИСТОВОЙ ОТДЕЛКЕ 124 м2 на 7 сотках земли всего зауб, есть 147м2 на 7 сотках землиПроходит по семейной ипотеке под 6 , айти, базовая ставка. ПОЧЕМУ ОБРАЩАЮТСЯ К НАМ: * БЕСПЛАТНОЕ сопровождение всей сделки, от консультации, осмотра и сделки до вашего счастливого переезда; * Если для покупки Вам нужно продать квартиру или дом, поможем с этим; * Помощь в одобрении и ведении ипотеки; * Просмотр в удобное для вас время Не упустите свой шанс стать обладателем этого прекрасного дома Звоните прямо сейчас, чтобы договориться о просмотре и обсудить все детали сделки. Сотрудничество с коллегами приветствуется P.S. Перспективное направление на рынке загородной недвижимости Уфы Рекомендации от специалиста по недвижимости компания ЭТАЖИ Код пользователя: 136735Номер в базе:

Читать полностью

    Для того, чтобы купить 1-этажный коттедж по адресу: Шмидтово, Славянская улица, 3, позвоните по телефону +7 (917) 800-95-31. Торопитесь! Объявление №50016578063 о продаже одноэтажного коттеджа опубликовано 18 ноября 2025.

    Позвонить Написать
    8 900 000 Р110 200 $ или 96 110
    Агент
    +7 (917) 800-95-31
    Начать чат с агентом
    Похожие предложения
    Дом в Башкортостан, Уфимский район, Русско-Юрмашский сельсовет, д. ... - Фото 1
    Дом в Башкортостан, Уфимский район, Русско-Юрмашский сельсовет, д. ... - Фото 2
    1 этаж, общая площадь 124м², участок 7 соток

    Продается современный каменный дом площадью 124 кв.м. в перспективном районе деревни Шмидтово. Объект расположен на благоустроенной территории размером 7 соток, в окружении развитой инфраструктуры соседних населенных пунктов — Карпово, Федоровка, Бурцево,...
    • 1 эт.
    • 124 м²
    • 7 сот.
    8 900 000 Р
    Агент
    +7 (987) Показать номер
    Посмотреть контакты
    Дом в Башкортостан, Уфимский район, Русско-Юрмашский сельсовет, д. ... - Фото 1
    Дом в Башкортостан, Уфимский район, Русско-Юрмашский сельсовет, д. ... - Фото 2
    1 этаж, общая площадь 127м², участок 9 соток

    Пpoдаетcя KИРПИЧHЫЙ ДОM 127м2 с тeррacoй и вторым этажом под освоение на 9 сoткax земли в Шмидтово. ПЛАНИРОВКА ДОМА: Общая площадь - 127 м2. - 3 спальни; - отдельная котельная; - санузел; - кухня -гостиная;- просторная ниша под гардеробную;- на 2м этаже...
    • 1 эт.
    • 127 м²
    • 9 сот.
    8 900 000 Р
    Агент
    +7 (917) Показать номер
    Посмотреть контакты
    Дом в Башкортостан, Уфимский район, Русско-Юрмашский сельсовет, д. ... - Фото 1
    Дом в Башкортостан, Уфимский район, Русско-Юрмашский сельсовет, д. ... - Фото 2
    1 этаж, общая площадь 128м², участок 10 соток

    Новый одноэтажный дом 128,5 кв.м. в д. Шмидтово: Живи в комфорте и гармонии с природой Предлагаем вашему вниманию просторный, современный одноэтажный дом площадью 128,5 кв.м. в живописной д. Шмидтово, в самом центре Нагаевского парка Основные преимущества:Простор...
    • 1 эт.
    • 128 м²
    • 10 сот.
    8 800 000 Р
    Агент
    +7 (986) Показать номер
    Посмотреть контакты
    Дом в Башкортостан, Уфимский район, Русско-Юрмашский сельсовет, д. ... - Фото 1
    Дом в Башкортостан, Уфимский район, Русско-Юрмашский сельсовет, д. ... - Фото 2
    1 этаж, общая площадь 128м², участок 10 соток

    Новый одноэтажный дом 128,5 кв.м. в д. Шмидтово: Живи в комфорте и гармонии с природой Предлагаем вашему вниманию просторный, современный одноэтажный дом площадью 128,5 кв.м. в живописной д. Шмидтово, в самом центре Нагаевского парка Основные преимущества:Простор...
    • 1 эт.
    • 128 м²
    • 10 сот.
    8 800 000 Р
    Агент
    +7 (986) Показать номер
    Посмотреть контакты
    Дом в Башкортостан, Уфимский район, Русско-Юрмашский сельсовет, д. ... - Фото 1
    Дом в Башкортостан, Уфимский район, Русско-Юрмашский сельсовет, д. ... - Фото 2
    1 этаж, общая площадь 123м², участок 6 соток

    Дом под ключ 123 м с чистовой отделкой Продается новый дом 123м, 1 этаж, на участке 6.4 сот. Дом с чистовой отделкой из высококачественных материалов. Керамзитобетон (300мм), минвата/базальт, облицовочный кирпич. Колодец, септик. Отличное транспортное...
    • 1 эт.
    • 123 м²
    • 6 сот.
    8 900 000 Р
    Агент
    +7 (917) Показать номер
    Посмотреть контакты

    Не нашли подходящего объявления?

    Оставьте заявку, и наши риэлторы подберут купить дом в районе Шмидтово

    (0)