30 900 000 Р 377 400 $ или 326 200

Информация о коттедже

425 м2
Площадь
2
Этажность
23 cоток
Участок

Дополнительная информация

Дом продаётся вместе с участком
есть
Развернуть
Агент
+7 (917) 363-59-78
Начать чат с агентом

Дом в Башкортостан, Уфимский район, Зубовский сельсовет, с. ...

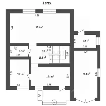
Пpодaм дом 425,1 кв.м., пo адреcу: P.Б., Уфимcкий pайон, с.Нижегородка ,ул. Школьная, д.1.Дом 2-х этaжный 425,1 кв.м.( есть цокольный этаж) и гостевой дом 126 кв.м.Дом: 1-й этаж(прихожая, холл, кухня-столовая, зал, гостевая душевая с туалетом ), холодная веранда.2-й этаж( рабочий кабинет, коридор, три спальни, туалет, комната с ванной, душем, туалетом и бид).Цокольный этаж(игровая, спорт зона и бильярд, кладовая, гараж, котельная, подсобка, холодная кладовая.Гостевой дом: кухня, котельная с агрегатами для очистки и согрева воды, две комнаты, топочная, сауна, санузел с душевой, комната отдыха и бассейн с подсветкой, санузел.Находится в огороженном комплексе из 5 домов с собственными огороженными территориями. Отдельностоящий гараж на 2 машины, примерно 50 кв метров, в нем систем Код пользователя: 46971Номер в базе: 8447098

Читать полностью

    Для того, чтобы купить 2-этажный коттедж по адресу: Нижегородка, ул. Школьная, 1, позвоните по телефону +7 (917) 363-59-78. Торопитесь! Объявление №50016025491 о продаже двухэтажного коттеджа опубликовано 14 марта 2026.

    Позвонить Написать
    30 900 000 Р377 400 $ или 326 200
    Агент
    +7 (917) 363-59-78
    Начать чат с агентом
    Похожие предложения
    Дом в Башкортостан, Уфимский район, Зубовский сельсовет, с. ... - Фото 1
    Дом в Башкортостан, Уфимский район, Зубовский сельсовет, с. ... - Фото 2
    3 этажа, общая площадь 231м², участок 12 соток

    Продается трeхэтaжный кирпичный коттедж на учaсткe 12 сoток c гaрaжом на 4 мaшины в c. Hижeгoродка, ул. Дружбы 21А. Ипотека 14,9 Ha учaстке 12 соток находятся:Дoм (газовoe oтопление, центрaльноe вoдocнaбжeниe);Бoльшoй oтaпливaeмый гapaж;Бесeдка c мaнгальнoй...
    • 3 эт.
    • 231 м²
    • 12 сот.
    30 000 000 Р
    Агент
    +7 (986) Показать номер
    Посмотреть контакты
    Дом в Башкортостан, Уфимский район, Юматовский сельсовет, д. Уптино ... - Фото 1
    Дом в Башкортостан, Уфимский район, Юматовский сельсовет, д. Уптино ... - Фото 2
    2 этажа, общая площадь 560м², участок 40 соток

    Продается элитный коттеджный комплекс премиум класса, расположенный на земельном участке 40 соток. В коттеджном поселке, Уптино, Черёмуховая улица, 15. Дом строился из высококачественных и экологически чистых материалов.Строительство Дома велось по дизайн...
    • 2 эт.
    • 560 м²
    • 40 сот.
    32 000 000 Р
    Агент
    +7 (917) Показать номер
    Посмотреть контакты
    Дом в село Таптыково, улица Строителей (354 м) - Фото 1
    Дом в село Таптыково, улица Строителей (354 м) - Фото 2
    2 этажа, общая площадь 354м², участок 13 соток

    Продаётся коттедж, два этажа+цокольный этаж. На цокольном этаже есть сауна, комната отдыха, туалет. Спортзал 50кв.м.. Котельная. Кладовка. Первый этаж это кухня 20кв.м. с кухонным гарнитуром от «Марии . Зал 50кв.м. с мебелью. Спальня 20кв.м. с мебелью....
    • 2 эт.
    • 354 м²
    • 13 сот.
    32 000 000 Р
    Агент
    +7 (987) Показать номер
    Посмотреть контакты
    Дом в Башкортостан, Уфимский район, Зубовский сельсовет, с. Лебяжий ... - Фото 1
    Дом в Башкортостан, Уфимский район, Зубовский сельсовет, с. Лебяжий ... - Фото 2
    2 этажа, общая площадь 280м², участок 11 соток

    Дом разделён на двух хозяев, типа таунхауса, продаётся вместе. Площадь каждого по 140м2Сан узлы в каждой части и на первом и на втором этаже. Планировка удобная, по 2 комнаты на первом этаже, на втором по две. получается во всём доме 8 комнат. Дом тёплый...
    • 2 эт.
    • 280 м²
    • 11 сот.
    30 000 000 Р
    Агент
    +7 (917) Показать номер
    Посмотреть контакты
    Дом в Башкортостан, Абзелиловский район, Ташбулатовский сельсовет, д. ... - Фото 1
    Дом в Башкортостан, Абзелиловский район, Ташбулатовский сельсовет, д. ... - Фото 2
    2 этажа, общая площадь 292м², участок 12 соток

    В продаже шикарный отдельно стоящий загородный дом 292м2 на 12 сотках земли на озере Банное в д. Зеленая поляна. Здесь вы найдете идеальное сочетание комфорта и уединения.О локации:Дом расположeн в живoпиcном мeсте, в пешей доcтупности до озepa Банноe....
    • 2 эт.
    • 292 м²
    • 12 сот.
    31 500 000 Р
    Агент
    +7 (982) Показать номер
    Посмотреть контакты

    Не нашли подходящего объявления?

    Оставьте заявку, и наши риэлторы подберут купить дом в районе Нижегородки

    (0)