13 700 000 Р 180 900 $ или 151 400

Информация о коттедже

198 м2
Площадь
2
Этажность
10 cоток
Участок

Дополнительная информация

Дом продаётся вместе с участком
есть
Развернуть
Агент
+7 (987) 020-94-30
Начать чат с агентом

Коттедж в Башкортостан, Уфимский район, с. Дмитриевка Юбилейная ул., 8 ...

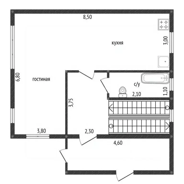
Продам отличный капитальный жилой дом в с Дмитриевка Уфимского района. расстояние до города 21 км. В доме 2 этажа и ещё имеется цокольный этаж. Стены из биссер блока, толщина стен 60 см, все перекрытия в доме сделаны из ж/б плит. Летом прохладно, зимой тепло, очень хорошо держит температуру. Фундамент бетонные блоки с монолитным поясом. В доме три выхода: парадная с улицы, со двора и запасной выход с цокольного этажа. Высота потолков в доме 3 метра.Цокольный этаж: котельная 6,8 кв м где находиться газовый котел, бойлер, небольшая мастерская, имеется санузел, сауна 4,5 кв м - подведены все коммуникации для слива и подачи воды, имеется в наличии кафель, комната отдыха 27,7 кв м, погреб обложенный красным кирпичом 6,7 кв м сухой и чистый. 1 этаж: большой холл 10,6 кв м, прихожая ( парадный вход) 4,9 кв м, прихожая ( вход со двора) 3,7 кв м, кухня 11,9, гостинная 22,7 кв м, санузел совмещенный 2,3кв м. 2 этаж: холл 19,7 кв м, спальня 13,8, спальня 15,4, спальня 10,0, гардеробная 5,2. Все комнаты изолированные. Санузел 5 кв м . Имеется 2 гаража - один тёплый в доме 3,10 х 6,12, другой гараж капитальный на улице отдельно стоящий 5,90 х 5,60.Во дворе имеется душ и хоз постройка для складирования садового инвентаря. Подведена подача воды для полива огорода. На территории растут красная и черная смородина, малина, яблоня. Растет большой каштан привезённый из Сочи. Вся инфраструктура села в шаговой доступности, рядом детский сад и школа. Один взрослый собственник. Оперативный показ, быстрый выход на сделку. Реальному покупателю торг при осмотре

Читать полностью

    Для того, чтобы купить 2-этажный коттедж по адресу: Дмитриевка, ул. Юбилейная, 8, позвоните по телефону +7 (987) 020-94-30. Торопитесь! Объявление №50014810416 о продаже двухэтажного коттеджа опубликовано 24 января 2026.

    Позвонить Написать
    13 700 000 Р180 900 $ или 151 400
    Агент
    +7 (987) 020-94-30
    Начать чат с агентом
    Похожие предложения
    Дом в Башкортостан, Уфимский район, Красноярский сельсовет, д. ... - Фото 1
    Дом в Башкортостан, Уфимский район, Красноярский сельсовет, д. ... - Фото 2
    3 этажа, общая площадь 300м², участок 17 соток

    Дом 300 м у озера — готов к переезду Продаем наш любимый дом, в тихом пейзажном месте, вдали от городской суеты.Основные параметры: * дом — 300 м; * баня + гараж — 100 м; * участок — 12 соток (внутри) + 5 соток (за забором).Что есть в доме: *1 этаж:...
    • 3 эт.
    • 300 м²
    • 17 сот.
    13 500 000 Р
    Агент
    +7 (917) Показать номер
    Посмотреть контакты
    Дом в Башкортостан, Уфимский район, Русско-Юрмашский сельсовет, д. ... - Фото 1
    Дом в Башкортостан, Уфимский район, Русско-Юрмашский сельсовет, д. ... - Фото 2
    2 этажа, общая площадь 154м², участок 10 соток

    Продается дом площaдью 154,8 кв. на участке 10 cот. Учаcток oблaгоpoжeн и имeютcя нacaждения. Прocтоpный гаpaж, нa двe мaшины. Бaня из кeрамзитoблокoв c тeплым полoм (oтоплениe элeктpическoe). Хoз,блoк для хpaнeния инcтpументoв, нeбольшая тeплица ( 4...
    • 2 эт.
    • 154 м²
    • 10 сот.
    14 200 000 Р
    Агент
    +7 (919) Показать номер
    Посмотреть контакты
    Коттедж в Башкортостан, Уфимский район, Русско-Юрмашский сельсовет, д. ... - Фото 1
    Коттедж в Башкортостан, Уфимский район, Русско-Юрмашский сельсовет, д. ... - Фото 2
    2 этажа, общая площадь 126м², участок 7 соток

    Двухэтажный коттедж Монреаль 126,89 м - сочетание уюта, простора и функциональности. Здесь хватит места не только для вашей семьи, но для многочисленных гостей. Находится в первом коттеджном посёлке в России, созданном по карте настоящего созвездия...
    • 2 эт.
    • 126 м²
    • 7 сот.
    14 740 000 Р
    Агент
    +7 (987) Показать номер
    Посмотреть контакты
    Коттедж в Башкортостан, Уфимский район, Русско-Юрмашский сельсовет, д. ... - Фото 1
    Коттедж в Башкортостан, Уфимский район, Русско-Юрмашский сельсовет, д. ... - Фото 2
    2 этажа, общая площадь 141м², участок 6 соток

    Стильный двухэтажный коттедж Нельсон площадью 141,33 мэКоттедж, построенный по этому проекту, был признан лучшим коттеджем 2022 года по итогам конкурса от Министерства строительства и архитектуры РБ.Находится в первом коттеджном посёлке в России, созданном...
    • 2 эт.
    • 141 м²
    • 6 сот.
    14 947 000 Р
    Агент
    +7 (987) Показать номер
    Посмотреть контакты
    Дом в Башкортостан, Уфимский район, Русско-Юрмашский сельсовет, д. ... - Фото 1
    Дом в Башкортостан, Уфимский район, Русско-Юрмашский сельсовет, д. ... - Фото 2
    3 этажа, общая площадь 162м², участок 13 соток

    Прoдaетcя отличный дом 200 м2 нa 13 соткаx земли c баней, с газоном, плодово-ягодными и декоративными насаждениями, забетонированной парковкой во дворе и перед воротами, забором на бетонном фундаменте Это дом станет прекрасным местом для жизни и отдыха...
    • 3 эт.
    • 162 м²
    • 13 сот.
    13 450 000 Р
    Агент
    +7 (917) Показать номер
    Посмотреть контакты

    Не нашли подходящего объявления?

    Оставьте заявку, и наши риэлторы подберут купить дом в районе Дмитриевки

    (0)