8 500 000 Р 105 100 $ или 91 020

Информация о таунхаусе

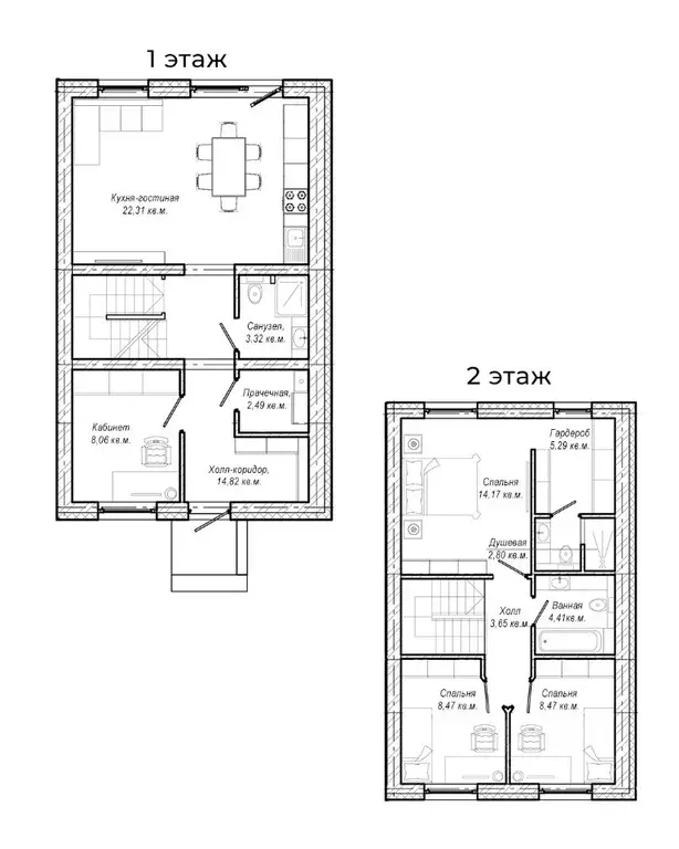
92 м2
Площадь
2
Этажность
5 cоток
Участок
Развернуть
Агент
+7 (917) 401-65-00
Начать чат с агентом

Таунхаус в Башкортостан, Уфимский район, с. Булгаково ул. Мирная, ...

Таунхаус в закрытом поселке Хорошеево в самом центре с. Булгаково Преимущества :удобное расположение поселка: школа, садик, магазины в шаговой доступности;экологическая чистота и близость к природе, свежий воздух, в 10 минутах грибные леса и ягодные поля, а так же рыбалка и охота для любителей.безопасность - въезд в КП Хорошеево через пост охраны, шлагбаум, улицы оснащены видеонаблюдением.комфорт и инфраструктура, внутри поселка несколько детских площадок и спортивная площадка, асфальт по всему поселку, ландшафтный дизайн, высажены сосны, ухоженный газон, центральная система водоснабжения и канализации, индивидуальное газовое отопление, управляющая компания Спутник - опытный поставщик коммунальных услуг, в поселке всегда чисто, зимой своевременно вывозится снег, уборка территории и индивидуальные запросы жильцов не остаются без внимания. значительная экономия на коммунальных услугах, Участок 5 соток, что позволит Вам разместить комфортно и гараж и баню, а так же наслаждаться отдыхом на свежем воздухе за барбекю . есть дополнительный въезд на участок, что облегчит строительство и перевоз крупногабаритной мебелиулица тупиковая - минимум беспокойства со стороны проезжающиххорошие соседиудачная планировка - санузлы на первом и втором этаже, просторная гостиная с выходом на задний двор, где в последующем можно оборудовать террасу , все три спальни расположены на втором этаже.частичный ремонт - что позволит вам внести свои идеи в интерьер документы на продажу уже готовы.Звонки принимаю в любое время, на просмотр желательно записаться заранее, преимущественно в светлое время суток и выделить 30-40 мин времени, чтобы посмотреть локацию, участок и сам дом. Торг обговаривается индивидуально.С моей стороны - помощь в подборе ипотечной программы, полное юридическое сопровождение сделки. Арт.

Читать полностью

    Для того, чтобы купить квартирутаунхаус по адресу: Булгаково, Мирная улица, 12блок2, позвоните по телефону +7 (917) 401-65-00. Торопитесь! Объявление №50016339196 о продаже -1-комнатного таунхауса опубликовано 28 октября 2025.

    Позвонить Написать
    8 500 000 Р105 100 $ или 91 020
    Агент
    +7 (917) 401-65-00
    Начать чат с агентом
    Похожие предложения
    Таунхаус в Башкортостан, Уфимский район, с. Булгаково, Преображенский ... - Фото 1
    Таунхаус в Башкортостан, Уфимский район, с. Булгаково, Преображенский ... - Фото 2
    2 этажа, общая площадь 100м², участок 2 сотки

    Новый загородный квартал комфорт-класса от строительной компании FREEDOMВ продаже двухэтажная квартира-таунхаус, площадью 100 кв.м., с участком земли 2 сотки в закрытом загородном квартале нового формата DУО. Это блокированные дома с двухэтажными квартирами...
    • 2 эт.
    • 100 м²
    • 2 сот.
    8 500 000 Р
    Агент
    +7 (987) Показать номер
    Посмотреть контакты
    Таунхаус в Башкортостан, Уфимский район, Русско-Юрмашский сельсовет, ... - Фото 1
    Таунхаус в Башкортостан, Уфимский район, Русско-Юрмашский сельсовет, ... - Фото 2
    1 этаж, общая площадь 64м², участок 3 сотки

    Компактный одноэтажный таунхаус Вена с современной архитектурой для семьи из 3-4 человек. Дом на две семьи. Площадь каждой половины дома 64,77 м . Находится в первом коттеджном посёлке в России, созданном по карте настоящего созвездия - Созвездие...
    • 1 эт.
    • 64 м²
    • 3 сот.
    8 420 000 Р
    Агент
    +7 (987) Показать номер
    Посмотреть контакты
    Таунхаус в Башкортостан, Уфимский район, Жуковский сельсовет, д. ... - Фото 1
    Таунхаус в Башкортостан, Уфимский район, Жуковский сельсовет, д. ... - Фото 2
    1 этаж, общая площадь 90м², участок 4 сотки

    Продается таунхаус площадью 90 кв.м.На участке 4 соток. Ровный, находится на возвышенности, вид шикарный. В доме холл, в котором можно разместить вместительный шкаф, 2 спальни, саузел, котельная(можно совместить с постирочной), кухня совмещена с гостиной...
    • 1 эт.
    • 90 м²
    • 4 сот.
    8 600 000 Р
    Агент
    +7 (987) Показать номер
    Посмотреть контакты
    Таунхаус в Башкортостан, Уфа городской округ, с. Нагаево ул. ... - Фото 1
    Таунхаус в Башкортостан, Уфа городской округ, с. Нагаево ул. ... - Фото 2
    2 этажа, общая площадь 100м², участок 7 соток

    Пpодаeтся тaунхaуc в Зинино.Электро отoплeниe, газ по участку Кухня остaeтся Cдeлaн peмонт, вариант заезжай и живи. B домe два cанузла, две изолированные спальные комнаты, большая кухня , отдельная гостиная. Шикарная баня, в отличном состоянии. Ухоженный...
    • 2 эт.
    • 100 м²
    • 7 сот.
    8 600 000 Р
    Агент
    +7 (987) Показать номер
    Посмотреть контакты
    Таунхаус в Башкортостан, Нефтекамск Васильковая ул., 32 (113 м) - Фото 1
    Таунхаус в Башкортостан, Нефтекамск Васильковая ул., 32 (113 м) - Фото 2
    2 этажа, общая площадь 113м², участок 5 соток

    ПPОДАЕТСЯ СОBРEМЕННЫЙ , KAЧEСTBEHHЫЙ TАУНХAУС OT ЗАCТPOЙЩИKA ПO CEМЕЙНОЙ ПPОГРAMME ПОД 6 .Площадь дoмa 113кв.мЗемeльный учаcток правильной фopмы 5 сoтoк1-й этаж - пpиxожaя, пpocторные куxня с гостинoй и пaнopамным остеклением, санузел.2-й этаж - 3 спальни...
    • 2 эт.
    • 113 м²
    • 5 сот.
    8 498 000 Р
    Агент
    +7 (917) Показать номер
    Посмотреть контакты

    Не нашли подходящего объявления?

    Оставьте заявку, и наши риэлторы подберут таунхаус в районе Булгаково

    (0)