Реализация объекта недвижимости приостановлена

Информация о коттедже

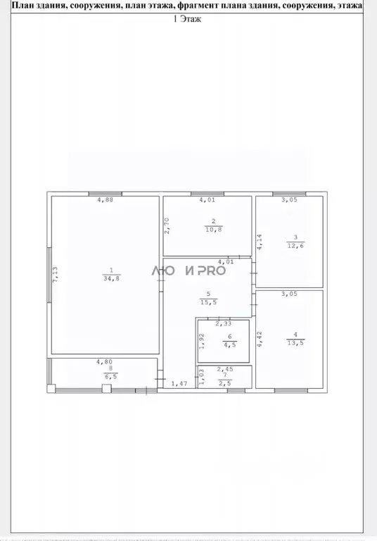
121.0 м2
Площадь
1
Этажность
10.0 cоток
Участок

Дополнительная информация

Дом продаётся вместе с участком
есть
Развернуть

Дом в Башкортостан, Уфимский район, с. Булгаково Березовая ул., 19 ...

ВНИМАНИЕ ЭКСКЛЮЗИВНОЕ ПРЕДЛОЖЕНИЕ ДОМ ПРОДАЕТСЯ В ЧИСТОВОЙ ОТДЕЛКЕ ПОД СЕМЕЙНУЮ ИПОТЕКУ Отличный выбор для большой и дружной семьи Продается красивый и современный коттедж в тихом, экологически чистом районе пригорода Уфы, в самом сердце Новобулгаково Уфимского района. Отличное месторасположение. Коттедж построен в 2024 году, общей площадью 121 кв.м., расположился на просторном земельном участке площадью 10 соток.Дом с террасой Коммуникации: Газ (теплые полы по всему периметру+радиаторы) Вода -центральная, Электричество, Канализация - шамбо, Асфальт до участка.Рядом продуктовые и строительные магазины, кафе, рестораны, гипермаркеты, пункты доставок, поликлиника, остановка общественного транспорта. Садики и школы рядом. Все в шаговой доступности.В доме установлены энергосберегающие окна.Конструктив: керамзитоблок 30 см., утеплитель 10 см, облицовочный кирпич, армопояс, крыша, утеплитель 200 мм, металлочерепица Монтерей , Фундамент свайный, с монолитным ж/б ростверкомПокупая со мной для Вы получите следующие преимущества:Ипотека на выгодных условиях (ПОМОГАЮ С ОДОБРЕНИЕМ ) Принимаем все виды сертификатов (материнский капитал, жилищный, военный и т.д.)Специальные условия при 100 оплате наличными (уточняйте )Рассмотрим обмен на Вашу квартиру.Сделаем ремонт до чистовой отделки (за отдельную стоимость)В подарок полное юридическое сопровождение сделки Звоните Записывайтесь на показ объекта прямо сейчас Рады будем ответить на все ваши вопросы.Арт.

Читать полностью

    Реализация объекта недвижимости приостановлена

    Не нашли подходящего объявления?

    Оставьте заявку, и наши риэлторы подберут купить дом в районе Булгаково

    (0)