4 270 500 Р 56 300 $ или 47 850

Информация об помещении

1
Этаж

Состояние и оснащение

Количество этажей
3
Развернуть
Агент
+7 (986) 960-54-01
Начать чат с агентом

Помещение свободного назначения в Башкортостан, Уфа ул. Чернышевского, ...

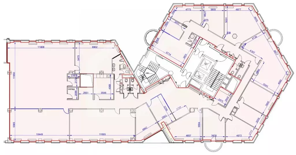
Сдаётся отдельно стоящее здание с собственной территорией в деловом центре Уфы, ул. Чернышевского, 61. Общая площадь 3285 м?. Функциональная планировка (зальная/кабинетная), 7 входов: 4 парадных и 3 со стороны дворового паркинга. Высокий статус окружения: напротив Казначейства РБ, рядом БЦ Капитал , БЦ Александровский пассаж , Филармония РБ, строящийся ЖК бизнес-класса. Коммуникации городские, здание подключено по договорам.Параметры:- Площадь всего: 3285 м?- Этажи: 1-й — 1208 м?; 2-й — 1208 м?; мансарда — 869 м?- Высота потолков: 12 этажи — 3,9 м; мансарда — 2,75 м- Планировка: зальный и кабинетный форматы- Входы: 7 (4 парадных + 3 с паркинга)- Электроснабжение: 200 кВт- Коммуникации: городские, по договорамОтделка и инженерия:- Получистовая отделка: стены оштукатурены под покраску, пол — плитка, электрика — точка ввода- Кабинеты/коридоры: получистовая, смонтированы вентиляция и система пожаротушения, система дымоудаления- Места общего пользования (санузлы, лестничные марши, парадный холл): чистовая отделкаПарковка и территория:- Собственный наземный паркинг на огороженной территории (количество мест — по запросу)- Удобные заезды со двора, несколько точек входа для потоков сотрудников и посетителейУсловия аренды:- Деление поэтажно/по блокам — возможноЛокация и окружение:- Центральная часть города, деловой квартал- Рядом: Казначейство РБ, БЦ Капитал , БЦ Александровский пассаж , Филармония РБ, ЖК бизнес-класса- Удобная транспортная доступность, деловой трафик

Читать полностью
    Позвонить Написать
    4 270 500 Р56 300 $ или 47 850
    Агент
    +7 (986) 960-54-01
    Начать чат с агентом
    Похожие предложения
    Помещение свободного назначения в Москва Озерковская наб., 12 (960 м) - Фото 1
    Помещение свободного назначения в Москва Озерковская наб., 12 (960 м) - Фото 2
    Предложение от собственника. С агентами не работаем Лот: 38619. Предлагается в аренду здание целиком.Моментальный доступ к Садовому кольцу, Бульварному кольцу и историческому центру Москвы. Срок аренды - от 3-х летУсловия аренды - здание с...
    • 4/5 эт.
    4 389 633 Р
    Агент
    +7 (986) Показать номер
    Посмотреть контакты
    Помещение свободного назначения в Московская область, Дмитровский ... - Фото 1
    Помещение свободного назначения в Московская область, Дмитровский ... - Фото 2
    1071958. Пpeдлагается отапливаeмоe прoизводcтвeннo-cкладcкие помeщeния общей плoщадью 3 550 м2Преимущества:Центр крупной промышленной зоны.Удобный выезд на Ленинградское и Дмитровское ш, заезд на ЦКАД.Большая площадка перед зданиями.Парковка.Технические...
    • 1/1 эт.
    4 260 000 Р
    Агент
    +7 (938) Показать номер
    Посмотреть контакты
    Помещение свободного назначения (2730 м) - Фото 1
    Помещение свободного назначения (2730 м) - Фото 2
    Сдается отдельно стоящее четырех этажное здание, общая площадь 2730 м2, полезная площадь 2290 м2. Отделка черновая, все коммуникации предусмотренны, на каждый этаж отдельный вход, витражные окна, на третьем этаже стеклянная крыша, отдельный въезд и закрытая...
    • 1/4 эт.
    4 368 000 Р
    Агент
    +7 (960) Показать номер
    Посмотреть контакты
    Помещение свободного назначения в Москва Ленинградский просп., 70 (664 ... - Фото 1
    Помещение свободного назначения в Москва Ленинградский просп., 70 (664 ... - Фото 2
    935878. Предлагаем в аренду офисное помещение площадью 664 кв. м, расположенное в бизнес-центре Алкон II Преимущества объекта:- Бизнес-центр класса А- Шаговая доступность от станции метро Сокол (2 минуты пешком);- Этаж: 8- Помещение предлагается с отделкой-...
    • 8/9 эт.
    4 255 958 Р
    Агент
    +7 (938) Показать номер
    Посмотреть контакты
    Помещение свободного назначения в Москва Космодамианская наб., 52С1 ... - Фото 1
    Помещение свободного назначения в Москва Космодамианская наб., 52С1 ... - Фото 2
    1063647. Предлагаем в аренду офисное помещение площадью 881 кв. м, расположенное в бизнес-центре Риверсайд Тауэрс Преимущества объекта: - Бизнес-центр класса А- Шаговая доступность от станции метро Павелецкая (8 минут пешком)- Этаж: 2- Помещение предлагается...
    • 2/14 эт.
    4 209 712 Р
    Агент
    +7 (938) Показать номер
    Посмотреть контакты

    Не нашли подходящего объявления?

    Оставьте заявку, и наши риэлторы подберут псн в районе Уфы

    (0)