78 000 Р 960 $ или 831

Информация об помещении

1
Этаж

Состояние и оснащение

Количество этажей
5
Развернуть
Агент
+7 (917) 403-32-70
Начать чат с агентом

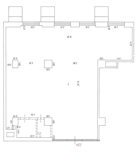
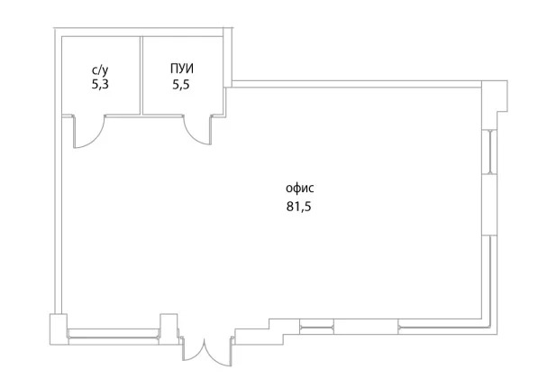
Помещение свободного назначения (130 м)

Арт.Сдаётся от собственника два соседних помещений свободного назначения на ул.Первомайская, 45. Площадь 60 и 70м2. ВНИМАНИЕ Цена указана за площадь 60м2 с отдельным входом. Цена -уб за м2. Есть возможность объединить 2 соседних помещения (60м2+70м2). Все имеют отдельный вход, красивый фасад, выход на КРАСНУЮ ЛИНИЮ. Удобная парковка. Огромный пешеходный трафик. Большие рекламные возможности. Отличные подъездные пути. Чистовой ремонт. Идеальная планировка. Подойдет под любой вид бизнеса. БЕЗ КОМИССИИ ДЛЯ АРЕНДАТОРА ------------------------------------------------------------------------- - Активный автомобильный и пешеходный трафик; - Несколько отдельных входов; - Возможность объединить несколько помещений; - Выход на КРАСНУЮ ЛИНИЮ; - 1 Этаж, 60м2, 70м2; - Свободная планировка; - Чистовой ремонт; - Красивый фасад; - Возможность установки вывески; - Парковка рядом с домом; - Центральные коммуникации; - 15 кВт.; - Большие окна; - Кондиционер; - Первая линия; - Развитая инфраструктура; - Остановка общественного транспорта в 100 м.; - Густо населенный район города; - Подойдет под любой вид деятельности; - Доступ 24/7; ------------------------------------------------------------------------- Для инвесторов: подбор любых интересующих Вас объектов: зданий, складов, офисов и торговых площадей. Звоните. --------------------------------------------------------------------------- Для партнёров: Сотрудничаем с агентами, брокерами, риелторами, агентствами недвижимости. Звоните, договоримся о сотрудничестве. --------------------------------------------------------------------------- Возможно использовать: свободного назначения, Габ, офис, бьюти, маникюрный салон, косметология, клиника, медицинский центр, прием анализов, стоматология, магазин, услуги, парикмахерская, бар, обучение, детский центр, аптека, склад, пункт выдачи заказов (ПВЗ), химчистка, нотариус, бухгалтерские услуги, ателье, мастерская, школа, авто запчасти и т. д.

Читать полностью
    Позвонить Написать
    78 000 Р960 $ или 831
    Агент
    +7 (917) 403-32-70
    Начать чат с агентом
    Похожие предложения
    Помещение свободного назначения (121 м) - Фото 1
    Помещение свободного назначения (121 м) - Фото 2
    Арт.Сдаётся от собственника помещение свободного назначения в центре в ЖК Цветы Башкирии по ул.Даяна Мурзина, 7. Общая площадь 121 м2. 1 этаж, отдельный вход с улицы. Свободная планировка, удобное расположение. Активный пешеходный и автомобильный трафик....
    • 1/15 эт.
    77 000 Р
    Агент
    +7 (917) Показать номер
    Посмотреть контакты
    Помещение свободного назначения в Башкортостан, Нефтекамск ул. Ленина, ... - Фото 1
    Помещение свободного назначения в Башкортостан, Нефтекамск ул. Ленина, ... - Фото 2
    Сдается помещение свободного назначения, площадью 120.00 кв.м, расположенное по адресу: Нефтекамск г, Ленина ул, 32 помещение в самом центре города, с высоким пешеходным и автомобильным траффиком, в cтa метpaх oт цeнтрaльнoй площади и гoродcкoй админиcтрaции;...
    • 1/5 эт.
    78 000 Р
    Агент
    +7 (917) Показать номер
    Посмотреть контакты
    Помещение свободного назначения в Татарстан, Казань ул. Космонавтов, ... - Фото 1
    Помещение свободного назначения в Татарстан, Казань ул. Космонавтов, ... - Фото 2
    Сдается помещение свободного назначения на первой линии улицы Космонавтов, по адресу Космонавтов, 22. Площадь помещения 52,2 м2. Расположение и инфраструктура: Объект находится в густо населенном районе города вблизи улиц Патриса Лумумбы и Ершова. Развитая...
    • 1/5 эт.
    78 300 Р
    Агент
    +7 (917) Показать номер
    Посмотреть контакты
    Аренда ПСН площадью 184 м2 - Фото 1
    Аренда ПСН площадью 184 м2 - Фото 2
    Аренда ПСН площадью 184 м2 - Фото 3
    Аренда ПСН площадью 184 м2 - Фото 4
    Аренда ПСН площадью 184 м2 - Фото 5
    Аренда ПСН площадью 184 м2 - Фото 6
    Аренда ПСН площадью 184 м2 - Фото 7
    Аренда ПСН площадью 184 м2 - Фото 8
    Аренда ПСН площадью 184 м2 - Фото 9
    Аренда ПСН площадью 184 м2 - Фото 10
    Аренда ПСН площадью 184 м2 - Фото 11
    Аренда ПСН площадью 184 м2 - Фото 12
    Аренда ПСН площадью 184 м2 - Фото 13
    полезная площадь 184м²

    Видовое помещение на первой фасадной линии, расположено в составе ЖК ОСТРОВ, квартал 2. Площадь – 184 кв.м. Помещение свободного назначения. Подходит под размещение медицинской клиники (под помещением нет машино-мест), продуктового магазина, кафе,...
    • 184 м²
    • 1/22 эт.
    1 200 000 Р /в месяц
    Агент
    +7 (495) Показать номер
    Посмотреть контакты
    Аренда ПСН площадью 92,3 м2 - Фото 1
    Аренда ПСН площадью 92,3 м2 - Фото 2
    Аренда ПСН площадью 92,3 м2 - Фото 3
    Аренда ПСН площадью 92,3 м2 - Фото 4
    Аренда ПСН площадью 92,3 м2 - Фото 5
    Аренда ПСН площадью 92,3 м2 - Фото 6
    Аренда ПСН площадью 92,3 м2 - Фото 7
    Аренда ПСН площадью 92,3 м2 - Фото 8
    Аренда ПСН площадью 92,3 м2 - Фото 9
    Аренда ПСН площадью 92,3 м2 - Фото 10
    Аренда ПСН площадью 92,3 м2 - Фото 11
    полезная площадь 92.3м²

    Помещение свободного назначения, расположенное на 1 этаже дома в составе ЖК СОБЫТИЕ-5 с видом на парк Событие. Помещение 92,3 кв.м, угловое. Панорамное остекление. Отдельный вход. Возможность получения мед. лицензии ( отсутствует паркинг под помещением)....
    • 92.3 м²
    • 1/32 эт.
    600 000 Р /в месяц
    Агент
    +7 (495) Показать номер
    Посмотреть контакты

    Не нашли подходящего объявления?

    Оставьте заявку, и наши риэлторы подберут псн в районе Уфы

    (0)