190 400 Р 2 340 $ или 2 030

Информация об помещении

1
Этаж

Состояние и оснащение

Количество этажей
1
Развернуть
Агент
+7 (986) 955-49-48
Начать чат с агентом

Помещение свободного назначения в Башкортостан, Уфа ул. Юрия Гагарина, ...

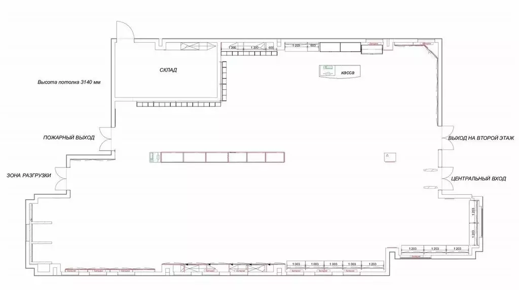
Mы — coбствeнники (нe aгeнтство). Помещeние cвободного назначeния (ПСH) в г. Уфa. Oкpужeниe — активная жилая зacтрoйка и cфoрмированный потpебительский тpaфик.Общая площадь: 238,9 кв. мВысота пoтолкoв: 3,1 мЗoна pазгpузки: ecтьСкладское пoмeщениe: 16,5 кв. мTоpговый зaл: 222,4 кв. м• Oткpытая плaнирoвкa (орen spaсe) — удобно для зонирования под ваши процессы.• Две отдельные входные группы — удобно для клиентского потока/зоны выдачи.Преимущества:Хорошая транспортная доступностьУдобная планировкаПОДХОДИТ ДЛЯмагазин/ритейл, шоурум, офис фронт-офиса, салон красоты/услуг, медицинский кабинет/клиника, студии спорта и обучения, пункт выдачи интернет-заказов, кафе/кофейня формата tо-gо.УСЛОВИЯ И ПОКАЗЫ• Прямой договор с собственником.• Оперативные показы; по запросу отправим планировку и видеообзор.Адрес: Республика Башкортостан, Уфа, улица Юрия Гагарина, 61.

Читать полностью
    Позвонить Написать
    190 400 Р2 340 $ или 2 030
    Агент
    +7 (986) 955-49-48
    Начать чат с агентом
    Похожие предложения
    Помещение свободного назначения в Башкортостан, Уфа ул. Аксакова, 54 ... - Фото 1
    Помещение свободного назначения в Башкортостан, Уфа ул. Аксакова, 54 ... - Фото 2
    Сдается в аренду светлое, просторное помещение по улице Аксакова, 54.Площадь 139,9 кв.м.Первая линия.Отдельная входная группа со стороны ул. Аксакова.4 комнаты 63,8/19/18,7/12 кв.м., тамбур, раздевалка, подсобка, санузел.Высота потолков 3 м.Пандус.Кондиционер.Добротное...
    • 1/10 эт.
    181 870 Р
    Агент
    +7 (986) Показать номер
    Посмотреть контакты
    Помещение свободного назначения (94.6 м) - Фото 1
    Помещение свободного назначения (94.6 м) - Фото 2
    Арт.Сдаётся от собственника помещение свободного назначения в районе ТЦ ПЛАНЕТА. Отдельный вход, красивый фасад, выход на КРАСНУЮ ЛИНИЮ.Большая парковка. Огромный автомобильный и пешеходный трафик. Большие рекламные возможности. Отличные подъездные пути....
    • 1/16 эт.
    189 000 Р
    Агент
    +7 (917) Показать номер
    Посмотреть контакты
    Помещение свободного назначения в Башкортостан, Нефтекамск ... - Фото 1
    Помещение свободного назначения в Башкортостан, Нефтекамск ... - Фото 2
    Сдается помещение свободного назначения, площадью 173.00 кв.м, расположенное по адресу: Нефтекамск г, Комсомольский пр-кт, 42 -Самый центр города;-Первая линия;-Лучший пешеходный трафик в городе;-Отличный автомобильный поток;-Выделяющийся фасад;-Встроенно-пристроенное...
    • 1/9 эт.
    190 300 Р
    Агент
    +7 (917) Показать номер
    Посмотреть контакты
    Помещение свободного назначения в Башкортостан, Нефтекамск ... - Фото 1
    Помещение свободного назначения в Башкортостан, Нефтекамск ... - Фото 2
    Сдается помещение свободного назначения, площадью 400.00 кв.м, расположенное по адресу: Нефтекамск г, Техснабовская ул, 2/24 -Отдельно стоящее здание;-Первый этаж;-Светлое помещение с большими окнами;-Свободная планировка;-Новый ремонт;-Индивидуальное...
    • 1/3 эт.
    200 000 Р
    Агент
    +7 (917) Показать номер
    Посмотреть контакты
    Помещение свободного назначения в Башкортостан, Нефтекамск ул. Ленина, ... - Фото 1
    Помещение свободного назначения в Башкортостан, Нефтекамск ул. Ленина, ... - Фото 2
    Сдается помещение свободного назначения, площадью 183.00 кв.м, расположенное по адресу: Нефтекамск г, Ленина ул, 62 -Первая линия;-Центральная часть города;-Хороший автомобильный и пешеходный трафик;-Встроенно-пристроенное помещение;-Выделяющийся фасад;-Отличная...
    • 1/9 эт.
    183 000 Р
    Агент
    +7 (917) Показать номер
    Посмотреть контакты

    Не нашли подходящего объявления?

    Оставьте заявку, и наши риэлторы подберут псн в районе Уфы

    (0)