Реализация объекта недвижимости приостановлена

Информация об помещении

1
Этаж

Состояние и оснащение

Количество этажей
9
Развернуть

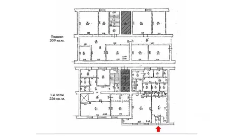
Помещение свободного назначения (200 м)

Просторное помещение под свободное назначение на 1 этаже с отдельным входом с улицы и общей площадью в 200 кв.м. сдается в аренду. Помещение имеет стандартный ремонт и готово к заселению.В этом помещении есть мощность 30 кВт, что позволяет разместить здесь различные виды деятельности. Помещение подойдет как для офиса, так и для розничного магазина или кафе. Доступные парковочные места вдоль здания обеспечат удобство для клиентов и сотрудников.Особенностью этого помещения является его расположение в жилом массиве рядом с крупными федеральными и региональными сетями. Это обеспечит постоянный поток потенциальных клиентов и покупателей, что делает это место идеальным для развития бизнеса.Не упустите возможность арендовать это просторное помещение под свободное назначение по выгодной цене. Обращайтесь по указанным контактным данным для получения дополнительной информации и организации просмотра.Номер объекта: 5/578379/19672

Читать полностью

    Реализация объекта недвижимости приостановлена

    Не нашли подходящего объявления?

    Оставьте заявку, и наши риэлторы подберут псн в районе Уфы

    (0)