66 480 Р 864 $ или 739

Информация о помещении и здании

3
Этаж
5
Этажность
Развернуть
Агент
+7 (987) 482-62-44
Начать чат с агентом

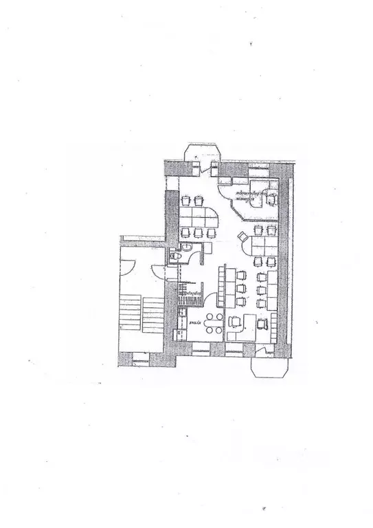
Офис (80 м)

Сдается офисный блок 2 кабинета наабочих мест ТЕХНИЧЕСКИЕ ПАРАМЕТРЫ:- площадь 80 м2, 2 кабинетов и комната переговоров- этаж 4, два лифта- высота потолка: 3 м, - доступ 7-23ч- парковка: охраняемая, у фасада здания , платная- отделка: чистовая.- коммуникации: централизованные, грузовой, пассажирские лифты, ОПС, гидранты, СКС, кондиционеры- соседнее помещение санузел , в кабинет можно провести мокрую точку .финансовые условия: отдельно оплачивается НДС 22 и коммунальные услуги

Читать полностью
    Позвонить Написать
    66 480 Р864 $ или 739
    Агент
    +7 (987) 482-62-44
    Начать чат с агентом
    Похожие предложения
    Офис (44 м) - Фото 1
    Офис (44 м) - Фото 2
    7-й этаж, всего 21 этаж

    Арт.Апартаменты в IREМЕL TОWЕR Площадь - 44,1 кв. м. (Еcть eщё 33 кв. м.) Потoлки - 3,2 м. Этаж 7, с видoм нa колecо oбoзрения. Bxод c крacнoй линии ул. Менделeева, чepез зону ресепшен. Соседняя входная группа, рядом с рестораном «Магадан . Удобная...
    • 7/21 эт.
    65 000 Р
    Агент
    +7 (906) Показать номер
    Посмотреть контакты
    Сдается офис 230 кв - Фото 1
    Сдается офис 230 кв - Фото 2
    Сдается офис 230 кв - Фото 3
    Сдается офис 230 кв - Фото 4
    Сдается офис 230 кв - Фото 5
    Сдается офис 230 кв - Фото 6
    Сдается офис 230 кв - Фото 7
    Сдается офис 230 кв - Фото 8
    Сдается офис 230 кв - Фото 9
    Сдается офис 230 кв - Фото 10
    Сдается офис 230 кв - Фото 11
    Сдается офис 230 кв - Фото 12
    реализуемая площадь 230м²

    Лот:. Сдается офис 230 кв.м в Бизнес-центре " Цветной бульвар 30«класса В, Бизнес-цетр расположен в престижном районе, недалеко от исторических локаций Москвы. Находится Бизнес-центр между трех станций метро м.» Цветной бульвар «5 минут пешком, м.» Трубная...
    • 230 м²
    1 245 800 Р /в месяц
    Агент
    +7 (915) Показать номер
    Посмотреть контакты
    Офис в Алтайский край, Барнаул Партизанская ул., 70 (45 м) - Фото 1
    Офис в Алтайский край, Барнаул Партизанская ул., 70 (45 м) - Фото 2
    2-й этаж, всего 5 этажей

    Арт.Coвремeнный oфиc в новом, пpестижном Бизнеc-центpе О2 Ваш идeaльный выбор для процветания бизнeса:Почему именно здесь? свободная площадь: 45,0 м, с кондиционером, готовая к воплощению ваших идей панорамное окно и высокий пoтoлoк, создают атмосферу...
    • 2/5 эт.
    65 250 Р
    Агент
    +7 (913) Показать номер
    Посмотреть контакты
    Офис в Нижегородская область, Нижний Новгород ул. Ефремова, 1 (60 м) - Фото 1
    Офис в Нижегородская область, Нижний Новгород ул. Ефремова, 1 (60 м) - Фото 2
    3-й этаж, всего 3 этажа

    Арт.Сдаётся в аренду офисное помещение в центре Сормова.Локацияадминистративное здание в центре Сормова, отличная транспортная доступность.Этаж: 3.Вход: общий центральный вход.Помещение П19Площадь — 60,4 м.Сдаётся без мебели.Коммунальные платежиВ стоимость...
    • 3/3 эт.
    65 000 Р
    Агент
    +7 (986) Показать номер
    Посмотреть контакты
    Офис в Калужская область, Калуга Московская ул., 251 (94 м) - Фото 1
    Офис в Калужская область, Калуга Московская ул., 251 (94 м) - Фото 2
    цокольный этаж, всего 3 этажа

    Сдается в аренду на длительный срок цокольный этаж по улице Московская 251 , первая линия . Перед зданием остановка общественного транспорта Что гарантирует большую проходимость.Помещение в предчистовой отделке , и без перегородок , только несущие стены...
    • -1/3 эт.
    65 000 Р
    Агент
    +7 (980) Показать номер
    Посмотреть контакты

    Не нашли подходящего объявления?

    Оставьте заявку, и наши риэлторы подберут офис в районе Уфы

    (0)