489 493 Р 6 380 $ или 5 420

Информация о помещении и здании

1
Этаж
5
Этажность
Развернуть
Агент
+7 (980) 152-87-48
Начать чат с агентом

Офис в Башкортостан, Уфа ул. Цюрупы, 16 (244 м)

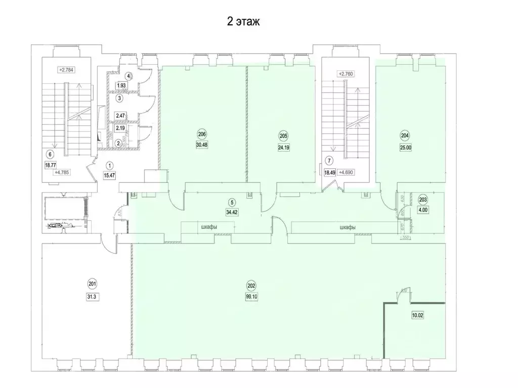
Сдаются в аренду офисные помещения в пятиэтажном Административном здании, расположенном в историческом центре г. Уфы с доступными транспортными развязками и большим количеством общественного транспорта. В шаговой доступности расположены административные здания: МинЗемИмущество РБ, Управление Министерства юстиции по РБ, Министерство внешнеэкономических связей по РБ, Министерство сельского хозяйства РБ, Государственный комитет РБ по надзору, Минтранс по РБ, Социальный фонд России, Дом Государственного Собрания-Курултая РБ, гостиница Sheratonplaza Ufa и многие другие.Цена договорная.Характеристики объекта:• Объект, площадью 36,2 кв. м, расположен на 2 этаже Административного здания;• Объект, площадью 57 кв. м, расположен на 4 этаже Административного здания;здания;• Объект, площадью 224,4 кв. м, расположен на 1 этаже Административного здания;• Объект, площадью 90,2 кв. м, расположен на 3 этаже Административного здания• Инженерные коммуникации в составе здания;• В помещениях установлена система кондиционирования и вентиляции воздуха;• Потолки армстронг, полы ковролин, коммерческий линолеум;• Комплексная система пожарной сигнализации.

Читать полностью
    Позвонить Написать
    489 493 Р6 380 $ или 5 420
    Агент
    +7 (980) 152-87-48
    Начать чат с агентом
    Похожие предложения
    Офис в Башкортостан, Уфа ул. Чернышевского, 61 (411 м) - Фото 1
    Офис в Башкортостан, Уфа ул. Чернышевского, 61 (411 м) - Фото 2
    3-й этаж, всего 3 этажа

    Сдаётся офис/креативное пространство 411 м? в правом крыле отдельно стоящего офисного особняка с собственной территорией. Адрес: Уфа, ул. Чернышевского, 61 (деловой квартал). Функциональная планировка: зальная (open space) + кабинетная. Две входные группы:...
    • 3/3 эт.
    493 200 Р
    Агент
    +7 (986) Показать номер
    Посмотреть контакты
    Офис в Санкт-Петербург Приморский просп., 54к1 (180 м) - Фото 1
    Офис в Санкт-Петербург Приморский просп., 54к1 (180 м) - Фото 2
    8-й этаж, всего 9 этажей

    Офисное помещение 180 кв. м в бизнес-центре Примиум .Район: Приморский. Ближайшие станции метро: Беговая, Старая Деревня. Характеристики:- Класс: A; - Код налоговой: 14; - Арендопригодная площадь: 14762.88; - Наличие лифта: Есть; - Кол-во мест подземного...
    • 8/9 эт.
    494 100 Р
    Агент
    +7 (981) Показать номер
    Посмотреть контакты
    Офис в Новосибирская область, Новосибирск ул. Фрунзе, 86 (403 м) - Фото 1
    Офис в Новосибирская область, Новосибирск ул. Фрунзе, 86 (403 м) - Фото 2
    5-й этаж, всего 13 этажей

    Предлагается в аренду офисное помещение с новым ремонтом, расположенное по адресу: улица Фрунзе 86 ОФИЦИАЛЬНЫЙ ПРЕДСТАВИТЕЛЬ СОБСТВЕННИКА БЕЗ КОМИССИИ ДЛЯ АРЕНДАТОРА Технические характеристики:-Общая площадь 402,5 м2, есть возможность аренды меньшей площади;-5...
    • 5/13 эт.
    483 000 Р
    Агент
    +7 (913) Показать номер
    Посмотреть контакты
    Офис в Санкт-Петербург Литейный просп., 26 (199 м) - Фото 1
    Офис в Санкт-Петербург Литейный просп., 26 (199 м) - Фото 2
    6-й этаж, всего 6 этажей

    Офисное помещение 198.6 кв. м в бизнес-центре Преображенский Двор .Район: Центральный. Ближайшие станции метро: Чернышевская, Маяковская, Достоевская. Характеристики:- Класс: A; - Код налоговой: 41; - Арендопригодная площадь: 20100; - Высота потолков:...
    • 6/6 эт.
    496 500 Р
    Агент
    +7 (981) Показать номер
    Посмотреть контакты
    Офис в Санкт-Петербург Дровяная ул., 6-8 (227 м) - Фото 1
    Офис в Санкт-Петербург Дровяная ул., 6-8 (227 м) - Фото 2
    2-й этаж, всего 7 этажей

    Офисное помещение 227.2 кв. м в бизнес-центре Hanin Plaza.Район: Адмиралтейский. Ближайшие станции метро: Технологический институт-1, Балтийская. Характеристики:- Класс: B+; - Код налоговой: 39; - Размер типового этажа: 300; - Арендопригодная площадь:...
    • 2/7 эт.
    499 862 Р
    Агент
    +7 (981) Показать номер
    Посмотреть контакты

    Не нашли подходящего объявления?

    Оставьте заявку, и наши риэлторы подберут офис в районе Уфы

    (0)