7 251 600 Р 91 710 $ или 78 880

Информация о помещении и здании

цоколь
Этаж
4
Этажность
Развернуть
Агент
+7 (986) 960-54-01
Начать чат с агентом

Офис в Башкортостан, Уфа ул. Менделеева, 134/1 (6043 м)

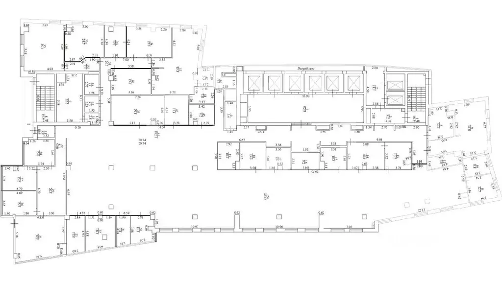
Аренда части здания под клинико-диагностический центрПредлагается в аренду часть отдельно стоящего здания общей площадью 6043,5 м? для организации клинико-диагностического центра с возможностью размещения операционного блока.Планировка и характеристики помещений:Подвал (840,1 м?, высота потолка 3,8 м)Две входные группы с первого этажа (зона доступа 306 м?).Широкая клиентская лестница для удобного спуска.1 этаж (493,9 м?, высота потолка до 4 м)Две функциональные зоны с отдельными входами:Торговые помещения (три входа).Холл бизнес-центра.2 этаж (1981 м?, высота потолка до 4 м)Отдельная входная группа (лифт, два лестничных марша).3 этаж (1741,3 м?, высота потолка до 4 м)Отдельная входная группа (лифт, два лестничных марша).4 этаж (969,2 м?, высота потолка 3 м)Отдельная входная группа (лифт, два лестничных марша).Условия аренды:Чистовая отделка под ключ по техническому заданию арендатора (выполняется арендодателем).Возможна адаптация помещений под медицинское учреждение, включая операционный блок.Удобная транспортная доступность и инфраструктура.Идеальное решение для частных клиник, диагностических центров или многопрофильных медицинских учреждений.

Читать полностью
    Позвонить Написать
    7 251 600 Р91 710 $ или 78 880
    Агент
    +7 (986) 960-54-01
    Начать чат с агентом
    Похожие предложения
    Офис в Санкт-Петербург Внуковская ул., 2 (2098 м) - Фото 1
    Офис в Санкт-Петербург Внуковская ул., 2 (2098 м) - Фото 2
    2-й этаж, всего 14 этажей

    Офисное помещение 2 097.5 кв. м в бизнес-центре Пулково Скай . Объект скоро освободится. Успейте забронировать на выгодных условиях. Готовность ко въезду уточняется по запросу. Район: Московский. Ближайшие станции метро: Звёздная, Московская. Характеристики:-...
    • 2/14 эт.
    7 316 080 Р
    Агент
    +7 (981) Показать номер
    Посмотреть контакты
    Офис в Санкт-Петербург Выборгское ш., 12 (2959 м) - Фото 1
    Офис в Санкт-Петербург Выборгское ш., 12 (2959 м) - Фото 2
    1-й этаж, всего 3 этажа

    Офисное помещение 2 959 кв. м в бизнес-центре МИК Озерки .Район: Выборгский. Ближайшие станции метро: Озерки. Характеристики:- Класс: B+; - Арендопригодная площадь: 4850; - Код налоговой: 02; - Размер типового этажа: 1515; - Высота потолков: 2.7 м, 2.85...
    • 1/3 эт.
    7 397 500 Р
    Агент
    +7 (981) Показать номер
    Посмотреть контакты
    Офис в Самарская область, Самара Московское ш., литДк28А (3830 м) - Фото 1
    Офис в Самарская область, Самара Московское ш., литДк28А (3830 м) - Фото 2
    1-й этаж, всего 5 этажей

    Сдаются в аренду два отдельно стоящих офисных здания с земельным участком в собственности, расположенными на 1 линии главной магистрали города Московского шоссе.Общая площадь двух зданий 3 830 кв.м, из которых площадь одного здания 1 700 кв.м, площадь...
    • 1/5 эт.
    7 200 400 Р
    Агент
    +7 (987) Показать номер
    Посмотреть контакты
    Офис в Москва бул. Энтузиастов, 2 (1572 м) - Фото 1
    Офис в Москва бул. Энтузиастов, 2 (1572 м) - Фото 2
    15-й этаж, всего 26 этажей

    РАБОТАЕМ С АГЕНТАМИ. ПЛАТИМ ВОЗНАГРАЖДЕНИЕ. Бизнес-центр Golden Gate - состоит из двух высотных башен с развитой инфраструктурой. Расстояние от станции метро Площадь Ильича - 50 метров. Подземный паркинг на 296 машиномест. Гостевая наземная парковка....
    • 15/26 эт.
    7 205 000 Р
    Агент
    +7 (933) Показать номер
    Посмотреть контакты
    Офис в Москва Варшавское ш., 9С1Б (2021 м) - Фото 1
    Офис в Москва Варшавское ш., 9С1Б (2021 м) - Фото 2
    5-й этаж, всего 5 этажей

    Экономьте время и деньги: отрисуем планировку под вас бесплатно, с любым количеством правок. Предлагаем в аренду Офис в бизнес-центре КНОП,Батистовый по адресу: Москва, Варшавское шоссе, 9с1Б.Рабочих мест: от 253 до 449*.Площадь: 2 021 м2.Планировка:...
    • 5/5 эт.
    7 384 250 Р
    Агент
    +7 (980) Показать номер
    Посмотреть контакты

    Не нашли подходящего объявления?

    Оставьте заявку, и наши риэлторы подберут офис в районе Уфы

    (0)