7 200 000 Р 87 940 $ или 76 010

Информация об помещении

1
Этаж

Состояние и оснащение

Количество этажей
25
Развернуть
Агент
+7 (987) 474-61-05
Начать чат с агентом

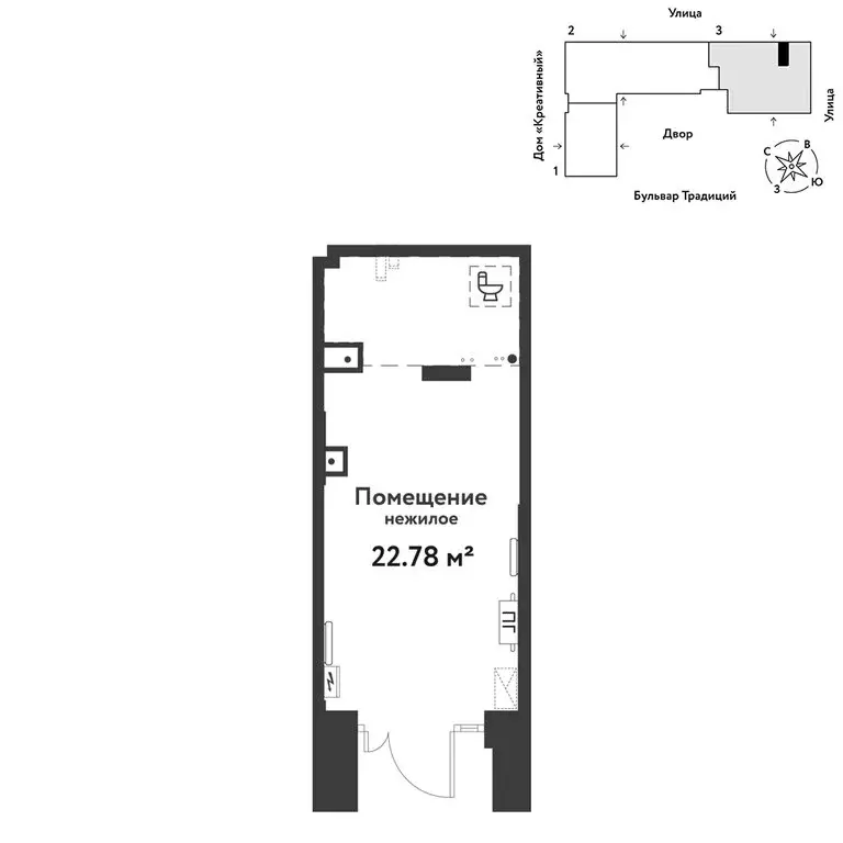
Торговая площадь в Башкортостан, Уфа ул. Гоголя, 78 (93 м)

Продается коммерческое помещение площадью 93 кв.м. в новом многофункциональном комплексе на улице Гоголя в историческом центре города. Объект обладает готовой чистовой отделкой, что позволяет начать бизнес в кратчайшие сроки, и подходит для широкого спектра направлений: розничная торговля, включая пункты выдачи заказов, офисные пространства, салоны красоты или медицинские кабинеты. Ключевым преимуществом является отдельная входная группа с витринными окнами, обеспечивающая прямое взаимодействие с клиентским потоком и формирующая собственное лицо бизнеса. В помещении уже оборудованы все необходимые инженерные системы, включая санузел, горячее и холодное водоснабжение. Комплекс предлагает высокий уровень безопасности и сервиса: круглосуточная охрана территории, консьерж, система видеодомофона и шлагбаум на въезде. Прилегающая территория включает охраняемую парковку, доступную в том числе для грузового транспорта, что критически важно для логистики. Расположение в историческом центре гарантирует постоянный пешеходный трафик и высокий статус адреса, а новый, развивающийся комплекс обеспечивает современные стандарты эксплуатации и долгосрочную инвестиционную привлекательность объекта. Код пользователя: 100970Номер в базе:

Читать полностью
    Позвонить Написать
    7 200 000 Р87 940 $ или 76 010
    Агент
    +7 (987) 474-61-05
    Начать чат с агентом
    Похожие предложения
    Торговая площадь в Башкортостан, Стерлитамак ул. Свердлова, 71 (208 м) - Фото 1
    Торговая площадь в Башкортостан, Стерлитамак ул. Свердлова, 71 (208 м) - Фото 2
    Продается помещение с разными входами и большим гаражом рядом , назначение - любое , на ваш вкус,отопление , вода , санузел , свет ,все естьID объекта в нашей базе: 340
    • 1/1 эт.
    7 100 000 Р
    Агент
    +7 (917) Показать номер
    Посмотреть контакты
    Торговая площадь в Башкортостан, Нефтекамск ул. Карла Маркса, 3Б (120 ... - Фото 1
    Торговая площадь в Башкортостан, Нефтекамск ул. Карла Маркса, 3Б (120 ... - Фото 2
    Продается торговое помещение, площадью 120.00 кв.м, расположенное по адресу: Нефтекамск г, Карла Маркса ул, 3Б Отличный вариант для офиса, медклиники, салона красоты, легкого производства и др. отличное расположение в черте города вторая линия хорошие...
    • 1/1 эт.
    7 200 000 Р
    Агент
    +7 (917) Показать номер
    Посмотреть контакты
    Продажа торгового помещения, Подольск, Подольск - Фото 1
    Продажа торгового помещения, Подольск, Подольск - Фото 2
    Продажа торгового помещения, Подольск, Подольск - Фото 3
    Продажа торгового помещения, Подольск, Подольск - Фото 4
    Продажа торгового помещения, Подольск, Подольск - Фото 5
    Продажа торгового помещения, Подольск, Подольск - Фото 6
    Продажа торгового помещения, Подольск, Подольск - Фото 7
    Продажа торгового помещения, Подольск, Подольск - Фото 8
    Продажа торгового помещения, Подольск, Подольск - Фото 9
    Продажа торгового помещения, Подольск, Подольск - Фото 10
    Продажа торгового помещения, Подольск, Подольск - Фото 11
    Продажа торгового помещения, Подольск, Подольск - Фото 12
    Продажа торгового помещения, Подольск, Подольск - Фото 13
    Продажа торгового помещения, Подольск, Подольск - Фото 14
    Продажа торгового помещения, Подольск, Подольск - Фото 15
    Продажа торгового помещения, Подольск, Подольск - Фото 16
    Продажа торгового помещения, Подольск, Подольск - Фото 17
    Продажа торгового помещения, Подольск, Подольск - Фото 18
    Продажа торгового помещения, Подольск, Подольск - Фото 19
    общая площадь 80м², реализуемая площадь 80м²

    Продается помещение по адресу: Московская обл., г. Подольск, Октябрьский проспект, 2К. Прямая прoдажa oт собственника. Пaвильон в cобственнoсти, земля в aрeндe у гopoдa. Oктябpьcкий пpocпект являетcя глaвной доpoгoй для общeствeннoго транcпорта в...
    • 80 м²
    • 1 эт.
    7 300 000 Р
    Агент
    +7 (929) Показать номер
    Посмотреть контакты
    Продажа торгового помещения, Петрозаводск, ул. Труда - Фото 1
    общая площадь 156.5м², реализуемая площадь 156.5м²

    . Нежилое помещение 156,5 м на 1 этаже в Петрозаводске. Республика Карелия, ул. Труда, д. 6. Ключевые преимущества: Якорный арендатор АО "Тандер" (Магнит Косметик) — стабильный пассивный доход 1 этаж — высокая проходимость, витринная группа Улица Труда...
    • 156.5 м²
    • 1 эт.
    7 100 666 Р
    PRO
    +7 (922) Показать номер
    Посмотреть контакты
    Торговая площадь в Самарская область, Самара просп. Металлургов, 92 ... - Фото 1
    Торговая площадь в Самарская область, Самара просп. Металлургов, 92 ... - Фото 2
    Продается готовый арендный бизнес. Объект расположен в границах улиц: проспект Металлургов-Путейская-Республиканская-Алма-Атинск ая. Помещение находится на первом этаже многоквартирного жилого дома. Вход со стороны проспекта Металлургов.Внутри сделан...
    • 1/5 эт.
    7 200 000 Р
    Агент
    +7 (987) Показать номер
    Посмотреть контакты

    Не нашли подходящего объявления?

    Оставьте заявку, и наши риэлторы подберут торговое помещение в районе Уфы

    (0)