22 000 000 Р 271 400 $ или 234 200

Информация об помещении

1
Этаж

Состояние и оснащение

Количество этажей
9
Развернуть
Агент
+7 (987) 621-39-76
Начать чат с агентом

Торговая площадь в Башкортостан, Уфа ул. Маршала Жукова, 8 (212 м)

Продается нежилое помещение площадью 212 кв. м на первом этаже жилого дома, готовое для организации предприятий общественного питания или свободного коммерческого использования. Объект обладает рациональной планировкой, включающей центральный коридор, от которого обособлены несколько функциональных зон: раздаточная, фасовочная, помещение для мойки и просторная столовая. Отдельный вход с дворовой территории обеспечивает полную автономность и удобство для клиентов и поставщиков. Помещение находится в окружении успешно работающих торговых точек, включая магазин Пятерочка , пекарню и аптеку, что подтверждает высокий пешеходный трафик и коммерческий потенциал локации. Транспортная доступность высокая, с удобными подъездными путями и асфальтированным дорожным покрытием. Для обеспечения безопасности на окнах установлены решетки. Данное предложение представляет собой готовое решение для запуска бизнеса с минимальными дополнительными вложениями в адаптацию пространства. Код пользователя: 179401Номер в базе:

Читать полностью
    Позвонить Написать
    22 000 000 Р271 400 $ или 234 200
    Агент
    +7 (987) 621-39-76
    Начать чат с агентом
    Похожие предложения
    Торговая площадь в Башкортостан, Уфа ул. Маршала Жукова, 5/2 (350 м) - Фото 1
    Торговая площадь в Башкортостан, Уфа ул. Маршала Жукова, 5/2 (350 м) - Фото 2
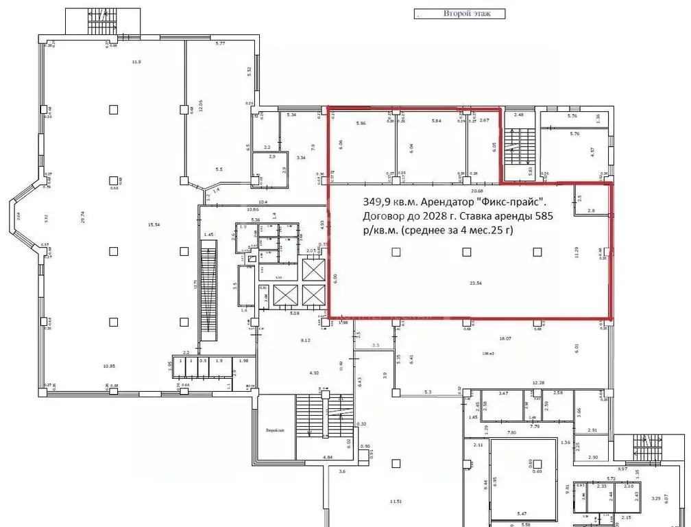
    ПРОДАМ ВАМ ТОРГОВОЕ ПОМЕЩЕНИЕ С ФЕДЕРАЛЬНЫМ АРЕНДАТОРОМ Площадь 350 кв.м, второй этаж ТЦ Весна , ул.М.Жукова, 5/2.Готовый бизнес без головной боли. Доход 215к/мес. от федерального бренда Хватит мечтать о пассивном доходе — вот он Продается не просто...
    • 2/4 эт.
    22 000 000 Р
    Агент
    +7 (904) Показать номер
    Посмотреть контакты
    Торговая площадь в Башкортостан, Уфа ул. Набережная реки Уфы, 23 (310 ... - Фото 1
    Торговая площадь в Башкортостан, Уфа ул. Набережная реки Уфы, 23 (310 ... - Фото 2
    Продажа. Торгово-офисное помещение в отдельно стоящем здании, г. Уфа по ул. Набережная д.23. - планировка преимущественно свободная и кабинеты (возможен снос стен (гипсокартон) - площадь 310 кв.м. , плюс 44 м2 лестничный марш с коридором и входной группой...
    • 2/2 эт.
    21 700 000 Р
    Агент
    +7 (912) Показать номер
    Посмотреть контакты
    Торговая площадь в Башкортостан, Уфа ул. Цюрупы, 158/2 (440 м) - Фото 1
    Торговая площадь в Башкортостан, Уфа ул. Цюрупы, 158/2 (440 м) - Фото 2
    Продаётся прибыльный арендный бизнес детилинг-центр в паркинге жилого дома ?? Адрес: Уфа, ул. Цюрупы, 158/2, -1 уровень;?? Площадь: 440 м?;?? Арендный доход (чистый, после эксплуатационных расходов): 250 000 ?/мес;?? Окупаемость: ~7 лет;Ключевые преимущества:?...
    • -1/2 эт.
    21 000 000 Р
    Агент
    +7 (917) Показать номер
    Посмотреть контакты
    Торговая площадь (350 м) - Фото 1
    Торговая площадь (350 м) - Фото 2
    ПРОДАМ ВАМ ТОРГОВОЕ ПОМЕЩЕНИЕ С ФЕДЕРАЛЬНЫМ АРЕНДАТОРОМ Площадь 350 кв.м, второй этаж ТЦ Весна , ул.М.Жукова, 5/2.Готовый бизнес без головной боли. Доход 215к/мес. от федерального бренда Хватит мечтать о пассивном доходе — вот он Продается не просто...
    • 2/4 эт.
    22 000 000 Р
    Агент
    +7 (917) Показать номер
    Посмотреть контакты
    Торговая площадь (369 м) - Фото 1
    Торговая площадь (369 м) - Фото 2
    Арт.Продается готовый арендный бизнес, помещение 369 кв.м, с федеральным арендатором, расположенные по адресу: Уфа г, Маршала Жукова, 5/2 Без комиссии для покупателя. ОСНОВНЫЕ ХАРАКТЕРИСТИКИ И ПРЕИМУЩЕСТВА ПОМЕЩЕНИЯ: помещение с арендатором в современном...
    • 2/4 эт.
    22 500 000 Р
    Агент
    +7 (987) Показать номер
    Посмотреть контакты

    Не нашли подходящего объявления?

    Оставьте заявку, и наши риэлторы подберут торговое помещение в районе Уфы

    (0)