70 000 000 Р 957 200 $ или 821 800

Информация об помещении

цоколь
Этаж

Состояние и оснащение

Количество этажей
6
Развернуть
Агент
+7 (987) 030-40-01
Начать чат с агентом

Помещение свободного назначения в Башкортостан, Уфа ул. Чернышевского, ...

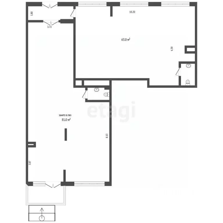
Продается помещение свободного назначения в деловом и историческом центре Уфы, БЦ Капитал , ул. Чернышевского, 82 (пересечение с ул. Карла Маркса). Формат — подвал паркинга бизнес-центра с отдельной зоной на 1 этаже. Подходит под фитнес/кроссфит, автосервис/детейлинг, автопаркинг, склад, спортивные секции, сервисные и креативные функции. Рядом объекты деловой и культурной инфраструктуры, остановки общественного транспорта — высокая доступность и стабильный трафик. Без комиссии для покупателя.Параметры:- Тип сделки: продажа ПСН- Общая площадь: 1499 м? (1 этаж — 48 м?; подвал — 1451 м?)- Высота потолков: 2,44 м- Планировка: свободная- Состояние: чистовой ремонт под фитнес-зал (кроссфит)Функционал и помещения:- 2 большие раздевалки с туалетами, душевыми и саунами- Зоны под тренажерный/функциональный зал, ресепшн, склад инвентаря- Возможность перепрофилирования: автосервис, детейлинг, автопаркинг, склад, кружки и секцииИнженерия:- Приточно-вытяжная вентиляция- Система пожаротушения и дымоудаления- Водоснабжение/канализация — центральные- Отопление — автономное (электрокотлы)Локация и окружение:- Центр города, БЦ Капитал , Чернышевского/Карла Маркса- Рядом деловые центры, рестораны, объекты культуры, остановки ОТУсловия:- Без комиссии для покупателя- Готово к использованию/перепрофилированию

Читать полностью
    Позвонить Написать
    70 000 000 Р957 200 $ или 821 800
    Агент
    +7 (987) 030-40-01
    Начать чат с агентом
    Похожие предложения
    ПСН Очаково-Матвеевское - Фото 1
    ПСН Очаково-Матвеевское - Фото 2
    ПСН Очаково-Матвеевское - Фото 3
    ПСН Очаково-Матвеевское - Фото 4
    ПСН Очаково-Матвеевское - Фото 5
    ПСН Очаково-Матвеевское - Фото 6
    ПСН Очаково-Матвеевское - Фото 7
    ПСН Очаково-Матвеевское - Фото 8
    ПСН Очаково-Матвеевское - Фото 9
    полезная площадь 120м²

    Помещение 120.0 м2. Продается помещение в центре развитого района города Очаково-Матвеевское. Помещение расположено на 1 этаже жилого дома. Дом заселен и располагается в густонаселенной части района. В помещении выполнен офисный ремонт - на полу ламинат,...
    • 120 м²
    • 1/25 эт.
    69 000 000 Р
    Агент
    +7 (925) Показать номер
    Посмотреть контакты
    Помещение свободного назначения в Архангельская область, Архангельск ... - Фото 1
    Помещение свободного назначения в Архангельская область, Архангельск ... - Фото 2
    Продается спортивный центр с офисными помещениями и парковкой. Общая площадь -1353м2.Располагается на 3-4 этаже нежилого кирпичного здания по адресу: Володарского,60. Год постройки здания 2019. Отделка помещения черновая, есть отдельный вход, все коммуникации...
    • 4/4 эт.
    70 000 000 Р
    Агент
    +7 (911) Показать номер
    Посмотреть контакты
    Помещение свободного назначения в Брянская область, Брянск Литейная ... - Фото 1
    Помещение свободного назначения в Брянская область, Брянск Литейная ... - Фото 2
    Продается комплекс зданий автосервиса, готовый к продолжению успешной эксплуатации. Объект включает капитальное отдельно стоящее здание общей площадью 861,8 кв.м. из которых , первый этаж составляет 641,8 м, а цокольный этаж 220 м, и земельный участок...
    • 1/1 эт.
    69 000 000 Р
    Агент
    +7 (980) Показать номер
    Посмотреть контакты
    Помещение свободного назначения в Москва д. Сосенки, ул. Ясеневая, 3 ... - Фото 1
    Помещение свободного назначения в Москва д. Сосенки, ул. Ясеневая, 3 ... - Фото 2
    Номер лота: нп-0023634.Предлагается коммерческое помещение свободного назначения в ЖК бизнес класса Дубровка . Помещение расположено на первом этаже жилого дома, свой отдельный вход. Помещение без отделки, имеет семь полноразмерных окон. Оборудовано...
    • 1/8 эт.
    70 000 000 Р
    Агент
    +7 (980) Показать номер
    Посмотреть контакты
    Помещение свободного назначения в Крым, Симферополь ул. Партизанская, ... - Фото 1
    Помещение свободного назначения в Крым, Симферополь ул. Партизанская, ... - Фото 2
    Продаем Объект -Здание 470 кв.м в три этажа и Массандрой, расположено на ровном земельном участке 11соток. В центре города Симферополя на оживленной улице и спального района и частного сектора. Подходит под коммерческое использование либо жилое. Монолитно-...
    • 1/3 эт.
    69 300 000 Р
    Агент
    +7 (918) Показать номер
    Посмотреть контакты

    Не нашли подходящего объявления?

    Оставьте заявку, и наши риэлторы подберут псн в районе Уфы

    (0)