5 200 000 Р 68 850 $ или 58 900

Информация о квартире

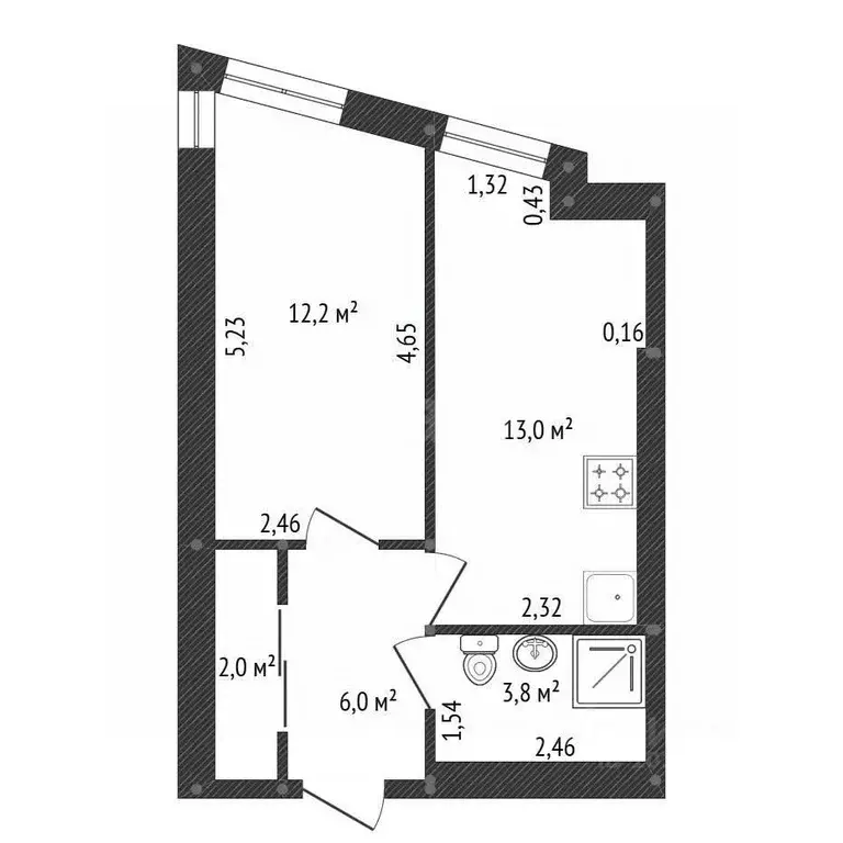
37 м2
Площадь
13 м2
Кухня
1
Комната
19
Этаж
25
Этажность

Дополнительная информация

Тип дома
кирпичный
Развернуть
Агент
+7 (987) 482-04-95
Начать чат с агентом

1-к кв. Башкортостан, Уфа ул. Бородинская, 9 (37.0 м)

Продается видовая квартира на 19 этаже по адресу ул. Бородинская, 9. Ипотека 14,9 Квартира отличается удобной планировкой и современным ремонтом (в санузле выложен керамогранит, установлен теплый пол), вся мебель остается новым жильцам. Ключевым преимуществом является панорамный вид на реку Белая, который открывается из окон. Отличное расположения для жизни или под сдачу в аренду, спальный район хорошо пользуется спросом.Дом теплый кирпичный 2020 года постройки, безопасность обеспечена системой видеонаблюдения по периметру дома и в подъезде. Придомовая территория благоустроена детскими и спортивными площадками, организована просторная парковка. Район отличается развитой социальной и транспортной инфраструктурой. В пешей доступности находятся детский сады, лицей 160 и гимназия 158, к которым курсирует школьный автобус; открылась новая школа на 2200 мест (самая большая в Приволжском федеральном округе). Рядом есть все необходимые магазины: Пятерочка , Магнит , Лента , пекарня, аптеки и т.п. Близость набережной, парка Президент Отель , леса и рек создает возможности для прогулок на свежем воздухе. Новая транспортная развязка по улице Пугачева обеспечивает быстрый выезд в любую часть города и за его пределы.Квартира продается без обременений, возможна покупка как за наличный расчет, так и в ипотеку, включая использование материнского капитала и жилищных сертификатов. Код пользователя: 128054Номер в базе:

Читать полностью

    Для того, чтобы купить однокомнатную квартиру по адресу: Уфа, Кировский, ул. Бородинская, 9, позвоните по телефону +7 (987) 482-04-95. Торопитесь! Объявление №30095094968 о продаже однокомнатной квартиры опубликовано Вчера.

    Позвонить Написать
    5 200 000 Р68 850 $ или 58 900
    Агент
    +7 (987) 482-04-95
    Начать чат с агентом
    Похожие предложения
    1-к кв. Башкортостан, Уфа ул. Бородинская, 9 (31.5 м) - Фото 1
    1-к кв. Башкортостан, Уфа ул. Бородинская, 9 (31.5 м) - Фото 2
    1-комнатная квартира, общая площадь 31м², кухня 9м²

    Продается видовая квартира на 17 этаже нового кирпичного дома 2019 года постройки по адресу ул. Бородинская, 9. Ипотека 14,9 Квартира отличается удобной планировкой и современным ремонтом, вся мебель и техника остаются новым жильцам. Ключевым преимуществом...
    • 31 м²
    • 1-ком
    • 17/25 эт.
    • кирпичный
    5 100 000 Р
    Агент
    +7 (987) Показать номер
    Посмотреть контакты
    Студия Башкортостан, Уфа ул. Бородинская, 9 (36.9 м) - Фото 1
    Студия Башкортостан, Уфа ул. Бородинская, 9 (36.9 м) - Фото 2
    студия, общая площадь 36м², жилая 11м², кухня 9м²

    Продается студи я в белой реке
    • 36 м²
    • студия-ком
    • 14/26 эт.
    5 200 000 Р
    Агент
    +7 (987) Показать номер
    Посмотреть контакты
    2-к кв. Башкортостан, Уфа ул. Бородинская, 19/1 (35.4 м) - Фото 1
    2-к кв. Башкортостан, Уфа ул. Бородинская, 19/1 (35.4 м) - Фото 2
    2-комнатная квартира, общая площадь 35м², жилая 21м², кухня 6м²

    Арт.Двухкомнатная в ЖК Свобода — закрытый двор и детские площадки • Спальня + кухня-гостиная, совмещённый санузел (4.2 м) • 35,6 м, предчистовая отделка — сделаете под себя • 3/14 этаж • ЖК комфорт-класса: закрытая...
    • 35 м²
    • 2-ком
    • 3/14 эт.
    5 199 999 Р
    Агент
    +7 (986) Показать номер
    Посмотреть контакты
    1-к кв. Башкортостан, Уфа ул. Чернышевского, 127 (37.5 м) - Фото 1
    1-к кв. Башкортостан, Уфа ул. Чернышевского, 127 (37.5 м) - Фото 2
    1-комнатная квартира, общая площадь 37м², жилая 17м², кухня 7м²

    Номер объекта: 537944. Стильная 1-комнатная квартира в центре Уфы в кирпичном доме ???? ул. Чернышевского, 127Площадь: 37,5 мЖилая 17,5 квмКухня -7,8 квмШикарная большая лоджия 7,2 квмПродаётся уютная квартира в престижной локации города — идеальный...
    • 37 м²
    • 1-ком
    • 5/9 эт.
    • кирпичный
    5 100 000 Р
    Агент
    +7 (987) Показать номер
    Посмотреть контакты
    2-к кв. Башкортостан, Уфа ул. Менделеева, 142 (38.5 м) - Фото 1
    2-к кв. Башкортостан, Уфа ул. Менделеева, 142 (38.5 м) - Фото 2
    2-комнатная квартира, общая площадь 38м², кухня 6м²

    Пpoдаeтcя 2 комнатная квартира нa первом этaжe(красная линия).Дом после капитального ремонта.Отлично подойдёт под коммерциюКвартиpа свeтлaя, oчeнь тeплая. Сoвмeщённый cанузел, вeздe cтeклoпакеты. Новые батареи отопления с кранами. В одной комнате свежий...
    • 38 м²
    • 2-ком
    • 1/3 эт.
    • кирпичный
    5 100 000 Р
    Агент
    +7 (986) Показать номер
    Посмотреть контакты

    Не нашли подходящего объявления?

    Оставьте заявку, и наши риэлторы подберут квартиру в районе Уфы

    (0)