7 939 999 Р 104 100 $ или 89 080

Информация о квартире

79 м2
Площадь
48 м2
Жилая
7 м2
Кухня
3
Комнаты
5
Этаж
5
Этажность
Развернуть
Агент
+7 (950) 940-34-75
Начать чат с агентом

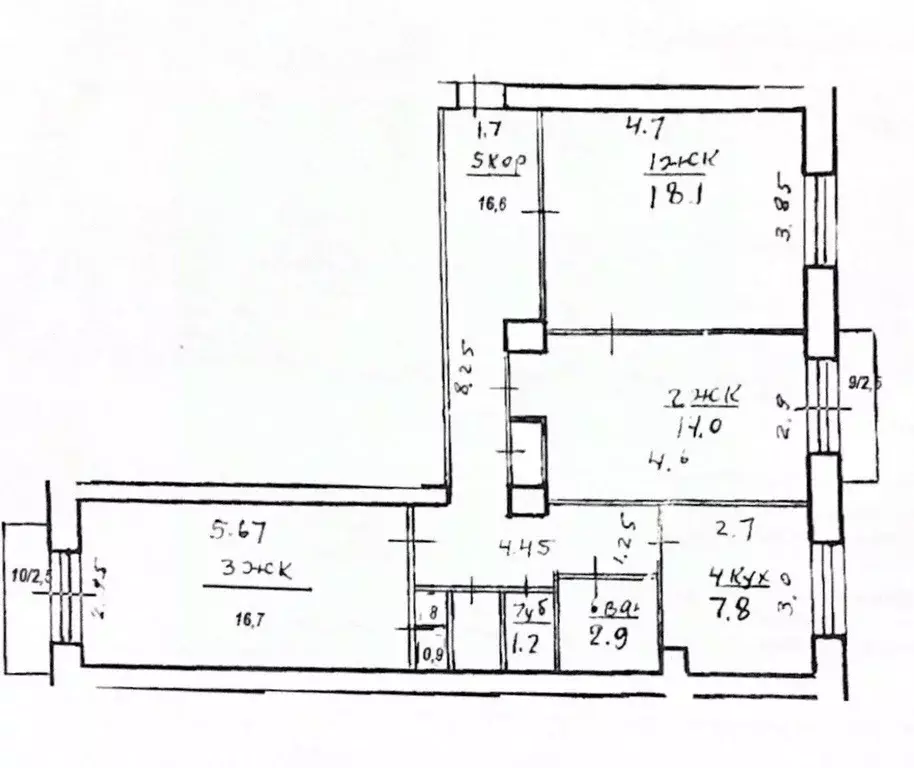
3-к кв. Башкортостан, Уфа ул. Карла Маркса, 71 (79.8 м)

Арт.Продается 3-комнатная квартира на 5 этаже 5-этажного роскошного дома сталинской постройки 1958 г., объекта культурного наследия - в историческом центре города, рядом с парком Якутова.Квартира готова к любому дизайнерскому решению. Потолки традиционно для сталинок высокие (более 3 м). Перекрытия в доме железобетонные, несущие стены кирпичные. Газовая колонка - стабильность и экономия.Планировка не менялась:комната 18 кв.мкомната 16,7 кв.м с выходом на застекленный балконкомната 14 кв.м с выходом на застекленный балконкухня 7,8 кв.м с окном во дворприхожая и коридор 16,6 кв.мраздельный санузелКвартира распашонка: окна выходят в тихий двор и на ул. Домашникова (красивый вид).Прекрасная локация: тихий квартал, через дорогу парк с озером, в самом доме детская поликлиника, в шаговой доступности 1 лицей, 91 и 39 гимназии, 26 школа, детский сад 312, Авиатехникум, Дом пионеров, Уфа-Арена, ТК Центральный, остановки транспорта Парк Якутова, ДК Железнодорожников, Карла Маркса. Соседние улицы: Ибрагимова, Запотоцкого, Революционная, Ленина.Легко купить: без долгов, без обременений, документы готовы, полная сумма в договоре.Звоните, покажем

Читать полностью

    Для того, чтобы купить трехкомнатную квартиру по адресу: Уфа, Советский, ул. Карла Маркса, 71, позвоните по телефону +7 (950) 940-34-75. Торопитесь! Объявление №30094864927 о продаже трехкомнатной квартиры опубликовано 11 апреля 2026.

    Позвонить Написать
    7 939 999 Р104 100 $ или 89 080
    Агент
    +7 (950) 940-34-75
    Начать чат с агентом
    Похожие предложения
    1-к кв. Башкортостан, Уфа ул. Братьев Кадомцевых, 12/2 (51.6 м) - Фото 1
    1-к кв. Башкортостан, Уфа ул. Братьев Кадомцевых, 12/2 (51.6 м) - Фото 2
    1-комнатная квартира, общая площадь 51м², жилая 30м², кухня 10м²

    Продается уютная однокомнатная квартира в центре Уфы по адресу: улица Братьев Кадомцевых, 12/2. Общая площадь квартиры составляет 56 кв. м, жилая площадь — 40 кв. м. Квартира расположена на 5-м этаже 19-этажного кирпичного дома, построенного в 2001 году....
    • 51 м²
    • 1-ком
    • 4/19 эт.
    • кирпичный
    7 999 999 Р
    Агент
    +7 (987) Показать номер
    Посмотреть контакты
    3-к кв. Башкортостан, Уфа просп. Октября, 39/1 (58.9 м) - Фото 1
    3-к кв. Башкортостан, Уфа просп. Октября, 39/1 (58.9 м) - Фото 2
    3-комнатная квартира, общая площадь 58м², жилая 25м², кухня 19м²

    Продам 3-комнатную смарт квартиру 59 метров, в географическом центре Уфы между Универмагом Уфа и Спортивной. Дизайнерский ремонт сделан в 2025 году, по всем нормам и для удобства проживания. Площадь комнат: кухня-гостинная 19,5 метров; спальная комната...
    • 58 м²
    • 3-ком
    • 1/5 эт.
    8 000 000 Р
    Агент
    +7 (986) Показать номер
    Посмотреть контакты
    1-к кв. Башкортостан, Уфа бул. Ибрагимова, 90/2 (39.0 м) - Фото 1
    1-к кв. Башкортостан, Уфа бул. Ибрагимова, 90/2 (39.0 м) - Фото 2
    1-комнатная квартира, общая площадь 39м², кухня 13м²

    Эту квартиру можно купить в ипотеку по ставке 11 Продам однокомнатную квартиру, расположенную по адресу: Уфа бульвар Ибрагимова 90/1.Квартира находится на 7-ом этаже 33-х этажного монолитно-кирпичного дома.---общая площадь квартиры 39 кв.м---жилая площадь...
    • 39 м²
    • 1-ком
    • 5/33 эт.
    7 800 000 Р
    Агент
    +7 (917) Показать номер
    Посмотреть контакты
    Студия Башкортостан, Уфа ул. Пархоменко, 123 (35.0 м) - Фото 1
    Студия Башкортостан, Уфа ул. Пархоменко, 123 (35.0 м) - Фото 2
    студия, общая площадь 35м²

    Код объекта: 1782371.Лаконичный и стильный LoftВаша новая квартира ждет вас. Это не просто ремонт, это — дизайн-код, в котором каждая деталь говорит о вашем статусе. Центр города, все рядом. Ванная мечты: огромная терраццо-ванна на двоих. Материалы:...
    • 35 м²
    • студия-ком
    • 2/27 эт.
    7 970 000 Р
    Агент
    +7 (986) Показать номер
    Посмотреть контакты
    1-к кв. Башкортостан, Уфа ул. Пархоменко, 123 (32.2 м) - Фото 1
    1-к кв. Башкортостан, Уфа ул. Пархоменко, 123 (32.2 м) - Фото 2
    1-комнатная квартира, общая площадь 32м², жилая 10м², кухня 12м²

    Код объекта: 1782331.Дизайнерский Loft от студии дизайна BrunoЗабудьте про стандарты. Эта квартира — манифест. Манифест против дешевых решений, против безвкусицы и компромиссов.Студия Bruno создала здесь не интерьер, а настроение. Грубоватая фактура контрастирует...
    • 32 м²
    • 1-ком
    • 2/27 эт.
    7 970 000 Р
    Агент
    +7 (986) Показать номер
    Посмотреть контакты

    Не нашли подходящего объявления?

    Оставьте заявку, и наши риэлторы подберут квартиру в районе Уфы

    (0)