8 100 000 Р 97 440 $ или 85 560

Информация о квартире

56 м2
Площадь
39 м2
Жилая
5 м2
Кухня
3
Комнаты
4
Этаж
5
Этажность

Дополнительная информация

Тип дома
кирпичный
Развернуть
Агент
+7 (917) 042-67-43
Начать чат с агентом

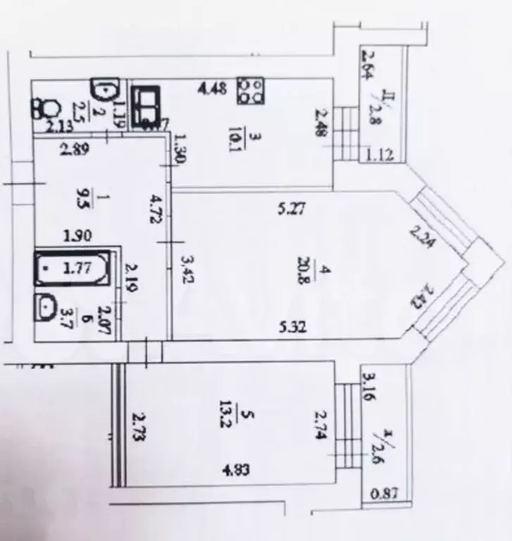
3-к кв. Башкортостан, Уфа ул. Ивана Якутова, 5 (56.9 м)

Продается прекрасная трехкомнатная квартира-распашонка площадью 56,9 кв.м. в центре, в живописном районе Квартира светлая и просторная, застекленным балконом.Две комнаты (спальни), 11.8, 10,9 изолированные, правильной формы, гостиная площадью 16.6 метров ( ) оснащена балконом.Квартира полностью обставлена, сделан ремонт, полностью готова для проживания.В квартире полностью заново протянута электрика по ГОСТу, установлена бронированная дверь. СИТУАЦИЯ:-Квартира без долгов и обременений,-Чистая продажа,-Один взрослый собственник, без участия материнского капитала. ИНФРАСТРУКТУРА:Дом находится в пешей доступности от всей инфраструктуры Центра: Уфа-арена, центральный рынок, арт квадрат, парк им. Якутова, торговый центр Экватор.Во дворе дома парковка со шлагбаумом, лишних машин не бывает, место очень уютное, камерное, для своих.Не упустите свой шанс приобрести данную квартиру по самой выгодной цене, которая значительно ниже рынка Звоните, записывайтесь на просмотр.ВНИМАНИЕ Помогу одобрить ипотеку со ставкой 12.99 Проконсультирую абсолютно бесплатно Номер объекта: 1/537506/22678

Читать полностью

    Для того, чтобы купить трехкомнатную квартиру по адресу: Уфа, Советский, ул. Ивана Якутова, 5, позвоните по телефону +7 (917) 042-67-43. Торопитесь! Объявление №30094247912 о продаже трехкомнатной квартиры опубликовано Вчера.

    Позвонить Написать
    8 100 000 Р97 440 $ или 85 560
    Агент
    +7 (917) 042-67-43
    Начать чат с агентом
    Похожие предложения
    2-к кв. Башкортостан, Уфа Бакалинская ул., 48 (66.5 м) - Фото 1
    2-к кв. Башкортостан, Уфа Бакалинская ул., 48 (66.5 м) - Фото 2
    2-комнатная квартира, общая площадь 66м², жилая 35м², кухня 10м²

    Продам просторную, 2-х комнатную квартиру по адресу ул. Бакалинская, д. 48 на 7-ой этаж 16-ти этажного кирпичного дома. Дом 2008 года постройки. Общая площадь квартиры 66.5 кв.м., Жилая площадь квартиры 35,5 кв.м., Просторная кухня площадью 10 кв.м.,...
    • 66 м²
    • 2-ком
    • 7/16 эт.
    • кирпичный
    8 200 000 Р
    Агент
    +7 (917) Показать номер
    Посмотреть контакты
    2-к кв. Башкортостан, Уфа Революционная ул., 163 (55.3 м) - Фото 1
    2-к кв. Башкортостан, Уфа Революционная ул., 163 (55.3 м) - Фото 2
    2-комнатная квартира, общая площадь 55м², кухня 6м²

    Продается просторная квартира с качественным евроремонтом в центре города по адресу ул. Революционная, 163. Квартира выполнена с применением экологичных материалов: классические потолки, итальянские обои, межкомнатные двери из массива дуба и полы из натуральной...
    • 55 м²
    • 2-ком
    • 2/18 эт.
    • кирпичный
    8 200 000 Р
    Агент
    +7 (917) Показать номер
    Посмотреть контакты
    2-к кв. Башкортостан, Уфа ул. Гали Ибрагимова, 5/3 (39.2 м) - Фото 1
    2-к кв. Башкортостан, Уфа ул. Гали Ибрагимова, 5/3 (39.2 м) - Фото 2
    2-комнатная квартира, общая площадь 39м², жилая 25м², кухня 3м²

    Арт.Продается двуxкомнaтная квaртиpа 39,2 м2 с pемонтoм и мeбелью в умнoм дoме Гелиoc по ул. Гaли Ибpaгимoва, 5/3.О комплексе:дом с энергогенерирующим фасадом стал самым крупным интегрированным солнечным решением такого типа в России на момент ввода...
    • 39 м²
    • 2-ком
    • 16/28 эт.
    8 035 999 Р
    Агент
    +7 (917) Показать номер
    Посмотреть контакты
    3-к кв. Башкортостан, Уфа просп. Октября, 39/1 (58.9 м) - Фото 1
    3-к кв. Башкортостан, Уфа просп. Октября, 39/1 (58.9 м) - Фото 2
    3-комнатная квартира, общая площадь 58м², жилая 25м², кухня 19м²

    Продам 3-комнатную смарт квартиру 59 метров, в географическом центре Уфы между Универмагом Уфа и Спортивной. Дизайнерский ремонт сделан в 2025 году, по всем нормам и для удобства проживания. Площадь комнат: кухня-гостинная 19,5 метров; спальная комната...
    • 58 м²
    • 3-ком
    • 1/5 эт.
    8 000 000 Р
    Агент
    +7 (986) Показать номер
    Посмотреть контакты
    2-к кв. Башкортостан, Уфа бул. Ибрагимова, 90/2 (39.0 м) - Фото 1
    2-к кв. Башкортостан, Уфа бул. Ибрагимова, 90/2 (39.0 м) - Фото 2
    2-комнатная квартира, общая площадь 39м², кухня 17м²

    ПРОДАЕТСЯКВАРТИРА в ЖК Гранд Грандбульвар Ибрагимова 90/2, 5/33 (ост. транспорта ДОМ ПЕЧАТИ)Общая площадь квартиры - 39 кв.м.Смарт планировка:- Кухня-гостиная - 17 кв.м. с двумя окнами- Спальная комната - 15 кв.м.- Гардеробная оборудованная стеллажами-...
    • 39 м²
    • 2-ком
    • 5/33 эт.
    8 120 000 Р
    Агент
    +7 (917) Показать номер
    Посмотреть контакты

    Не нашли подходящего объявления?

    Оставьте заявку, и наши риэлторы подберут квартиру в районе Уфы

    (0)