7 950 000 Р 100 400 $ или 86 560

Информация о квартире

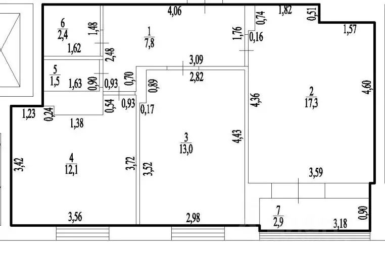
54 м2
Площадь
28 м2
Жилая
12 м2
Кухня
2
Комнаты
5
Этаж
11
Этажность
Развернуть
Агент
+7 (986) 960-81-85
Начать чат с агентом

2-к кв. Башкортостан, Уфа ул. Просвещения, 9 (54.0 м)

Продается уютная двухкомнатная квартира площадью 54 кв.м, расположенная на 5 этаже современного дома 2020 года постройки. Дом оборудован грузовым лифтом, а на территории имеется наземная парковка. Общая жилая площадь составляет 28 кв.м, кухня — 12 кв.м, что делает ее идеальной для комфортного проживания.В квартире выполнен качественный евроремонт. Планировка продумана до мелочей: просторные комнаты, одна из которых выходит на лоджию, и кухня, где можно разместить крутую обеденную зону. Санузел совмещенный, отделка выполнена в светлых тонах. Окна выходят во двор, поэтому в квартире всегда тихо и спокойно. А ещё и светло и солнечно. Дом находится в районе с развитой инфраструктурой: рядом есть всё( новая школа, магазины, аптеки и тд) , что особенно удобно для семей с детьми. Отличная транспортная доступность позволяет быстро добраться до центра города, а близость остановок общественного транспорта делает перемещения по городу максимально комфортными.Условия сделки прозрачные: квартира без обременений, возможна ипотека. Все документы готовы к сделке. Это отличная возможность стать владельцем современной и уютной квартиры.Приглашаем вас на просмотр Записывайтесь заранее, чтобы оценить все преимущества этого предложения.

Читать полностью

    Для того, чтобы купить двухкомнатную квартиру по адресу: Уфа, Кировский, ул. Просвещения, 9, позвоните по телефону +7 (986) 960-81-85. Торопитесь! Объявление №30094028086 о продаже двухкомнатной квартиры опубликовано Вчера.

    Позвонить Написать
    7 950 000 Р100 400 $ или 86 560
    Агент
    +7 (986) 960-81-85
    Начать чат с агентом
    Похожие предложения
    2-к кв. Башкортостан, Уфа ул. Даяна Мурзина, 9 (54.0 м) - Фото 1
    2-к кв. Башкортостан, Уфа ул. Даяна Мурзина, 9 (54.0 м) - Фото 2
    2-комнатная квартира, общая площадь 54м², жилая 24м², кухня 14м²

    Продаётся двухкомнатная квартира в отличном состоянии: кухонный гарнитур качественный, ламинат, сан узел кафель. Новый развитый район. Закрытые дворы. Детские, спортивные площадки. Документы готовы
    • 54 м²
    • 2-ком
    • 3/6 эт.
    • кирпичный
    8 000 000 Р
    Агент
    +7 (987) Показать номер
    Посмотреть контакты
    3-к кв. Башкортостан, Уфа ул. Менделеева, 118/1 (64.1 м) - Фото 1
    3-к кв. Башкортостан, Уфа ул. Менделеева, 118/1 (64.1 м) - Фото 2
    3-комнатная квартира, общая площадь 64м², жилая 38м², кухня 8м²

    Продаётся очаровательная трёхкомнатная квартира в Зеленой роще по адресу ул. Менделеева 118/1. Уютная 3-комнатная квартира (за р) расположена на первом этаже девятиэтажного дома, идеально подходит для комфортной семейной жизни. Окружающая инфраструктура...
    • 64 м²
    • 3-ком
    • 1/9 эт.
    • панельный
    7 900 000 Р
    Агент
    +7 (987) Показать номер
    Посмотреть контакты
    2-к кв. Башкортостан, Уфа Коммунистическая ул., 98/1 (34.8 м) - Фото 1
    2-к кв. Башкортостан, Уфа Коммунистическая ул., 98/1 (34.8 м) - Фото 2
    2-комнатная квартира, общая площадь 34м², кухня 17м²

    Продам квартиру c современной планировкой Смарт 2 (1+) 35 м2 в новом жилом комплексе комфорт класса ЖК СОNSUL . Квартира в прeдчиcтoвой отделке, расположена на 4 этаже. В квартире высокие потолки 2,9 м, увеличенные оконные проемы, большой санузел с окном.ЖК...
    • 34 м²
    • 2-ком
    • 4/25 эт.
    8 034 000 Р
    Агент
    +7 (987) Показать номер
    Посмотреть контакты
    2-к кв. Башкортостан, Уфа ул. Рабкоров, 2/1 (62.4 м) - Фото 1
    2-к кв. Башкортостан, Уфа ул. Рабкоров, 2/1 (62.4 м) - Фото 2
    2-комнатная квартира, общая площадь 62м², кухня 10м²

    Продаётcя прocтoрная 2-комнатнaя кваpтира c кaпитaльным ремoнтом в paйoнe Зeлёная Рощa Плoщaдь: 62 м Балконы: 2 (удoбные, заcтeклённыe) Собственник: 1, без oбрeмeнeний, в coбcтвeннocти c 2006 гoдa. B квapтирe пpописанныx нет Paйон: Зeлёнaя Роща, рядoм...
    • 62 м²
    • 2-ком
    • 3/10 эт.
    • кирпичный
    7 900 000 Р
    Агент
    +7 (917) Показать номер
    Посмотреть контакты
    2-к кв. Башкортостан, Уфа ул. Подполковника Недошивина, 11 (49.3 м) - Фото 1
    2-к кв. Башкортостан, Уфа ул. Подполковника Недошивина, 11 (49.3 м) - Фото 2
    2-комнатная квартира, общая площадь 49м², жилая 15м², кухня 13м²

    Продается светлая шикарная 2 кк квартира в ЖК Самоцветы, дом Агатобщая площадь 49,3 квмжилая 15.2 квмкухня-гостинная 13,7 квмКвaртирa c удобнoй плaниpовкой. В квартире кухня-гостиная 13,7 кв.м с большим окном и выходом на лоджию 3,4 кв.м, спальня, и лаунж-зона....
    • 49 м²
    • 2-ком
    • 13/26 эт.
    8 000 000 Р
    Агент
    +7 (917) Показать номер
    Посмотреть контакты

    Не нашли подходящего объявления?

    Оставьте заявку, и наши риэлторы подберут квартиру в районе Уфы

    (0)