5 950 000 Р 78 780 $ или 67 400

Информация о квартире

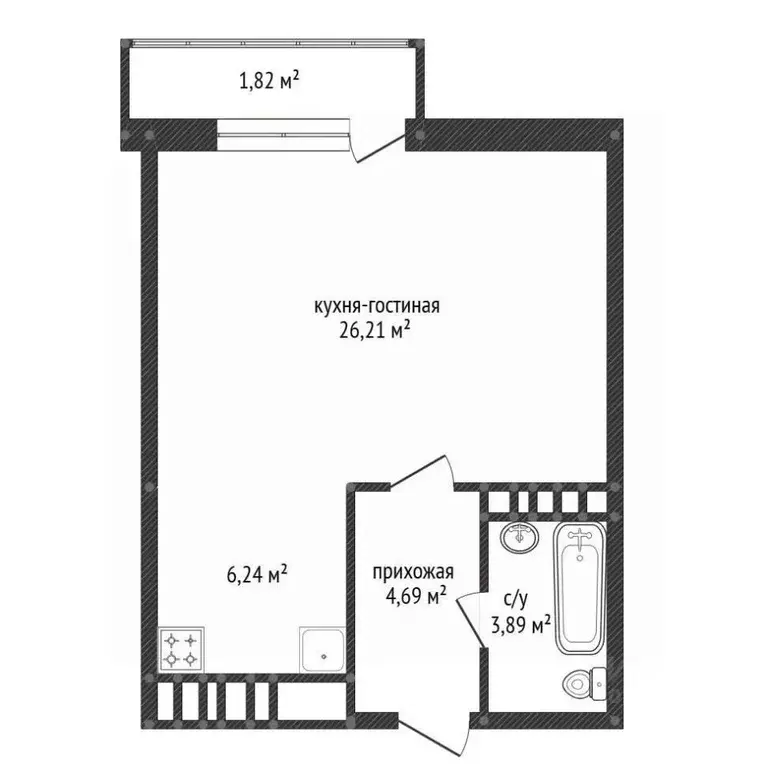
42 м2
Площадь
26 м2
Жилая
6 м2
Кухня
2
Комнаты
1
Этаж
9
Этажность

Дополнительная информация

Тип дома
кирпичный
Развернуть
Агент
+7 (986) 960-87-99
Начать чат с агентом

2-к кв. Башкортостан, Уфа ул. Салавата, 13 (42.5 м)

Код объекта: 2053916.Тихое место в историческом сердце города по соседству с музеем, парком и набережной реки Теплая, уютная квартира с чистым ремонтом - комфортное пространство жизни для тех, кому важны развитая инфраструктура и безопасность. Планировка:•Кухня необычной формы, где есть пространство для обеденного стола вашей семьи или встрече гостей. •Просторный зал - место для тихого вечера, отдыха с книгой или проведением встреч с друзьями. •Малая спальня с высоким окном подойдет для ребенка или подростка, или можно оставить как комнату для самых близких гостей. •Светлый, качественный ремонт со вкусом - можно расставить свою мебель и жить. Локация:Окна квартиры выходят на зелёный двор с домом-музеем им. С.Т. Аксакова и парк Салавата. По периметру дома установлены камеры. Район безопасный и чистый. Рядом находятся правительственные учреждения. Здесь безопасно гулять и детям, и возвращаться поздно вечером. Инфраструктура для жизни:Рядом всё, что нужно семье:•Школа, детский сад, кружки и развивающие студии — в пешей доступности.•Магазины, остановка транспорта — буквально в минутах ходьбы.•До университетов — всего 1015 минут пешком.Квартира полностью готова к вашему переезду - квартира примет вас сразу. А наша компания проведет безопасную сделку. Звоните и приходите смотреть

Читать полностью

    Для того, чтобы купить двухкомнатную квартиру по адресу: Уфа, Кировский, ул. Салавата, 13, позвоните по телефону +7 (986) 960-87-99. Торопитесь! Объявление №30093896331 о продаже двухкомнатной квартиры опубликовано 20 апреля 2026.

    Позвонить Написать
    5 950 000 Р78 780 $ или 67 400
    Агент
    +7 (986) 960-87-99
    Начать чат с агентом
    Похожие предложения
    1-к кв. Башкортостан, Уфа ул. Менделеева, 136/1 (32.8 м) - Фото 1
    1-к кв. Башкортостан, Уфа ул. Менделеева, 136/1 (32.8 м) - Фото 2
    1-комнатная квартира, общая площадь 32м², кухня 6м²

    Продаётся уютная однокомнатная квартира в Уфе Расположение: Город Уфа, улица Менделеева, дом 136, корпус 1.Характеристики квартиры:* Этаж: Расположена на седьмом этаже кирпичного дома.* Площадь комнаты: Просторная комната площадью 18 квадратных метров.*...
    • 32 м²
    • 1-ком
    • 7/12 эт.
    • панельный
    6 100 000 Р
    Агент
    +7 (987) Показать номер
    Посмотреть контакты
    2-к кв. Башкортостан, Уфа ул. Генерала Горбатова, 7 (55.0 м) - Фото 1
    2-к кв. Башкортостан, Уфа ул. Генерала Горбатова, 7 (55.0 м) - Фото 2
    2-комнатная квартира, общая площадь 55м², жилая 32м², кухня 8м²

    Предлагается к продаже уютная двухкомнатная квартира общей площадью 55 кв. м. Она расположена на 2 этаже 9-этажного панельного дома 1983 года постройки. Жилая площадь составляет 32 кв. м, а кухня — 8 кв. м. Высота потолков — 2.5 метра. В квартире есть...
    • 55 м²
    • 2-ком
    • 2/9 эт.
    • панельный
    6 000 000 Р
    Агент
    +7 (917) Показать номер
    Посмотреть контакты
    1-к кв. Башкортостан, Уфа ул. Софьи Перовской, 22 (47.0 м) - Фото 1
    1-к кв. Башкортостан, Уфа ул. Софьи Перовской, 22 (47.0 м) - Фото 2
    1-комнатная квартира, общая площадь 47м², жилая 28м², кухня 7м²

    Ваша будущая квартира мечты ждет вас Представляю вашему вниманию уникальное предложение стильная евродвушка на 20-м этаже с захватывающим видом Эта квартира идеальное решение для тех, кто ценит комфорт, функциональность и возможность воплотить свои...
    • 47 м²
    • 1-ком
    • 20/26 эт.
    6 100 000 Р
    Агент
    +7 (987) Показать номер
    Посмотреть контакты
    Студия Башкортостан, Уфа ул. Рабкоров, 4/1 (43.2 м) - Фото 1
    Студия Башкортостан, Уфа ул. Рабкоров, 4/1 (43.2 м) - Фото 2
    студия, общая площадь 43м², кухня 9м²

    Продается просторная и уютная квартира в теплом кирпичном доме на улице Рабкоров, 4/1. Дом расположен на охраняемой закрытой территории с консьержем, есть большая хорошая парковка,коммунальные платежи не высокие. В квартире выполнен косметический ремонт,...
    • 43 м²
    • студия-ком
    • 7/16 эт.
    • кирпичный
    5 900 000 Р
    Агент
    +7 (917) Показать номер
    Посмотреть контакты
    Студия Башкортостан, Уфа ул. Софьи Перовской, 24А (44.0 м) - Фото 1
    Студия Башкортостан, Уфа ул. Софьи Перовской, 24А (44.0 м) - Фото 2
    студия, общая площадь 44м², кухня 6м²

    Продаётся квартира с новым ремонтом — заезжай и живи ЖК Некрасовский Идеальный вариант для тех, кто не хочет тратить время и нервы на ремонт — всё уже сделано. О квартире:— 44 м, комфортная планировка— 4 этаж из 26— Новый дом, сдан Никто не жил — вы...
    • 44 м²
    • студия-ком
    • 4/23 эт.
    6 000 000 Р
    Агент
    +7 (987) Показать номер
    Посмотреть контакты

    Не нашли подходящего объявления?

    Оставьте заявку, и наши риэлторы подберут квартиру в районе Уфы

    (0)