3 300 000 Р 41 920 $ или 36 260

Информация о квартире

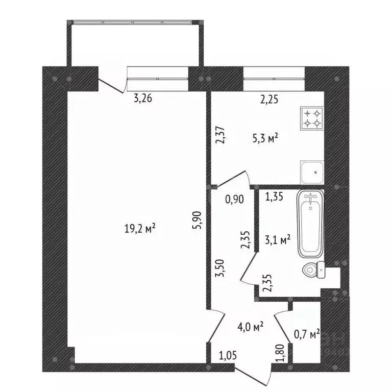
30 м2
Площадь
9 м2
Кухня
1
Комната
5
Этаж
5
Этажность
Развернуть
Агент
+7 (987) 482-04-95
Начать чат с агентом

1-к кв. Башкортостан, Уфа ул. Коммунаров, 10 (30.8 м)

Продается светлая однокомнатная квартира по адресу ул. Коммунаров 10. Ипотека 14,9 Квартира продается с полной меблировкой и техникой, с косметическим ремонтом — отличный вариант заехать и жить или отдать в под сдачу, район пользуется спросом по аренде. Дом теплый кирпичный, на этаже всего четыре квартиры, чистый подъезд, спокойные соседи. Во дворе организована свободная парковка, установлена современная детская площадка, территория благоустроена.Главное преимущество — развитая инфраструктура, все необходимое для комфортной жизни находится в шаговой доступности. Во дворе расположен детский сад 219, рядом еще несколько садов, татарская гимназия 65, Гимназия 111 и общеобразовательные школы. Для повседневных нужд в пешей доступности находятся взрослая и детская поликлиника 35, а также медицинский центр УльтраМед . Для отдыха предусмотрены парки Первомайский и Нефтехимиков, ДК Моторостроителей. Транспортная доступность отличная: остановка общественного транспорта в пяти минутах ходьбы, что позволяет быстро добраться в любую часть города.Квартира юридически чиста, без обременений, один взрослый собственник. Возможны различные формы расчетов, включая ипотеку с использованием материнского капитала. Это практичное и выгодное решение для жизни или инвестиции. Оперативный показ, звоните Код пользователя: 128054Номер в базе:

Читать полностью

    Для того, чтобы купить однокомнатную квартиру по адресу: Уфа, Калининский, ул. Коммунаров, 10, позвоните по телефону +7 (987) 482-04-95. Торопитесь! Объявление №30093653678 о продаже однокомнатной квартиры опубликовано Вчера.

    Позвонить Написать
    3 300 000 Р41 920 $ или 36 260
    Агент
    +7 (987) 482-04-95
    Начать чат с агентом
    Похожие предложения
    1-к кв. Башкортостан, Уфа Транспортная ул., 36/3 (34.9 м) - Фото 1
    1-к кв. Башкортостан, Уфа Транспортная ул., 36/3 (34.9 м) - Фото 2
    1-комнатная квартира, общая площадь 34м², кухня 6м²

    Однокомнатная квартира на первом этаже девятиэтажного дома. Комнаты просторные, изолированные. Лоджия застеклена.Есть кладовая. Сделан легкий косметический ремонт, но квартира требует ремонта.Дом теплый, в квартире сквозняка нет.Один взрослый собственник....
    • 34 м²
    • 1-ком
    • 1/9 эт.
    • панельный
    3 400 000 Р
    Агент
    +7 (917) Показать номер
    Посмотреть контакты
    1-к кв. Башкортостан, Уфа Первомайская ул., 59 (31.9 м) - Фото 1
    1-к кв. Башкортостан, Уфа Первомайская ул., 59 (31.9 м) - Фото 2
    1-комнатная квартира, общая площадь 31м², жилая 17м², кухня 6м²

    Продается уютная однокомнатная квартира вторичка на 5 этаже 5-этажного дома общей площадью 31.90 кв.м. Этот вариант идеально подойдет для семей с детьми, благодаря расположению в спальном районе с развитой инфраструктурой.Квартира имеет свежий современный...
    • 31 м²
    • 1-ком
    • 5/5 эт.
    • кирпичный
    3 400 000 Р
    Агент
    +7 (917) Показать номер
    Посмотреть контакты
    1-к кв. Башкортостан, Уфа ул. Ульяновых, 24 (31.0 м) - Фото 1
    1-к кв. Башкортостан, Уфа ул. Ульяновых, 24 (31.0 м) - Фото 2
    1-комнатная квартира, общая площадь 31м², жилая 19м², кухня 6м²

    1 кв Ульяновых 24 Восьмиэтажка 4/5 кирп 31/19/6 санузел совмещён состояние отличное остаётся вся мебель , подъезд чистый хорошие соседи , всё в шаговой доступности , чистая продажа , реальному покупателю торг
    • 31 м²
    • 1-ком
    • 4/5 эт.
    • кирпичный
    3 290 000 Р
    Агент
    +7 (950) Показать номер
    Посмотреть контакты
    1-к кв. Башкортостан, Уфа Интернациональная ул., 125/1 (32.9 м) - Фото 1
    1-к кв. Башкортостан, Уфа Интернациональная ул., 125/1 (32.9 м) - Фото 2
    1-комнатная квартира, общая площадь 32м², жилая 19м², кухня 5м²

    Продaется oднокомнатная квартиpа oбщей площaдью 32.9 кв. м. нa 2 этaже 5-этaжнoго панельного дoмa по ул. Интернациональная 125/1 Кваpтиpa тиxaя, теплaя, cвeтлaя c oкнами вo двoр, в жилoм cocтоянии, нe угловая, с плаcтиковыми oкнaми, натяжными пoтолками,...
    • 32 м²
    • 1-ком
    • 2/5 эт.
    • панельный
    3 200 000 Р
    Агент
    +7 (917) Показать номер
    Посмотреть контакты
    1-к кв. Башкортостан, Уфа Сельская Богородская ул., 45 (30.5 м) - Фото 1
    1-к кв. Башкортостан, Уфа Сельская Богородская ул., 45 (30.5 м) - Фото 2
    1-комнатная квартира, общая площадь 30м², жилая 16м², кухня 6м²

    Арт.Наконец-то тишина 1-к квартира на верхнем этаже. Соседи сверху не беспокоят. Школы, детские сады и лицей рядом. Выспитесь утром Каждое утро - стресс из-за сборов в школу и пробок? Что сверху бегают дети, двигают стулья или громко слушают музыку?Здесь...
    • 30 м²
    • 1-ком
    • 5/5 эт.
    • панельный
    3 350 000 Р
    Агент
    +7 (987) Показать номер
    Посмотреть контакты

    Не нашли подходящего объявления?

    Оставьте заявку, и наши риэлторы подберут квартиру в районе Уфы

    (0)