4 690 000 Р 60 690 $ или 51 370

Информация о квартире

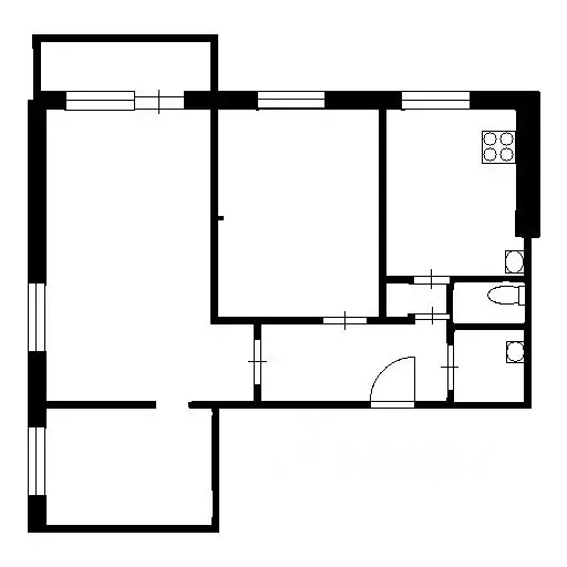
55 м2
Площадь
7 м2
Кухня
2
Комнаты
10
Этаж
10
Этажность

Дополнительная информация

Тип дома
кирпичный
Развернуть
Агент
+7 (917) 371-74-67
Начать чат с агентом

2-к кв. Башкортостан, Уфа ул. Машиностроителей, 4 (55.0 м)

Продается уютная двухкомнатная квартира в кирпичном доме. Общая площадь — 55 кв. м, кухня — 6 кв. м. Квартира находится на последнем, 10 этаже, и из окон открывается вид во двор, что обеспечит вам тишину и спокойствие. В квартире сделан евроремонт, что позволит вам сразу заехать и наслаждаться комфортом. Просторные комнаты оформлены в светлых тонах и частично обставлены мебелью. На кухне есть все необходимое для приготовления пищи. Ванная комната оборудована современными сантехническими приборами. Есть одна лоджия, где можно обустроить уютное место для отдыха.Дом находится в хорошем состоянии, с пассажирским лифтом, который обеспечит вам удобный доступ на верхний этаж. Рядом с домом есть парковочные места. Инфраструктура района отлично развита: в шаговой доступности находятся школы, детские сады, клиники и магазины. Это значит, что все необходимое для комфортной жизни будет у вас под рукой.Квартира продается без обременений, все документы готовы к сделке. Возможна покупка в ипотеку. Это отличная возможность приобрести жилье в благоустроенном районе по выгодной цене.Звоните и записывайтесь на просмотр, чтобы оценить все достоинства этой квартиры лично. Будем рады ответить на все ваши вопросы и помочь с оформлением сделки.

Читать полностью

    Для того, чтобы купить двухкомнатную квартиру по адресу: Уфа, Калининский, ул. Машиностроителей, 4, позвоните по телефону +7 (917) 371-74-67. Торопитесь! Объявление №30093431240 о продаже двухкомнатной квартиры опубликовано 05 февраля 2026.

    Позвонить Написать
    4 690 000 Р60 690 $ или 51 370
    Агент
    +7 (917) 371-74-67
    Начать чат с агентом
    Похожие предложения
    1-к кв. Башкортостан, Уфа ул. Георгия Мушникова, 27 (36.0 м) - Фото 1
    1-к кв. Башкортостан, Уфа ул. Георгия Мушникова, 27 (36.0 м) - Фото 2
    1-комнатная квартира, общая площадь 36м², жилая 18м², кухня 9м²

    Продается уютная 1-комнатная квартира по адресу ул. Георгия Мушникова д. 27 на 2 этаже 16-этажного кирпичного дома (2018 г.). Дом очень теплый. Находится в живописном месте возле Теплого озера.Общая площадь квартиры с лоджией 43 кв. м.; Кухня 9,6 кв.м,...
    • 36 м²
    • 1-ком
    • 2/16 эт.
    • кирпичный
    4 700 000 Р
    Агент
    +7 (917) Показать номер
    Посмотреть контакты
    3-к кв. Башкортостан, Уфа бул. Тухвата Янаби, 65/1 (51.0 м) - Фото 1
    3-к кв. Башкортостан, Уфа бул. Тухвата Янаби, 65/1 (51.0 м) - Фото 2
    3-комнатная квартира, общая площадь 51м², жилая 36м², кухня 7м²

    Отличная квартира с выгодным расположением Продаётся 3-комнатная квартира 51.7 м на 6 этаже 9-этажного панельного дома.Главные преимущества: Идеальное расположение: Рядом всё, что нужно для комфортной жизни — детский сад 169, 109, лицей 60, торговый...
    • 51 м²
    • 3-ком
    • 6/9 эт.
    • панельный
    4 800 000 Р
    Агент
    +7 (987) Показать номер
    Посмотреть контакты
    1-к кв. Башкортостан, Уфа ул. Георгия Мушникова, 21/4 (38.0 м) - Фото 1
    1-к кв. Башкортостан, Уфа ул. Георгия Мушникова, 21/4 (38.0 м) - Фото 2
    1-комнатная квартира, общая площадь 38м², жилая 18м², кухня 8м²

    Арт.Продаётся 1комнатная квартира.Расположение: тихий спокойный район. Позади дома — парк с тёплым озером.Состояние и отделка:чистая квартира;санузел и фартук на кухне — плитка;лоджия обшита пластиком (выход из комнаты);есть бойлер (на случай отключения...
    • 38 м²
    • 1-ком
    • 7/14 эт.
    • кирпичный
    4 690 000 Р
    Агент
    +7 (917) Показать номер
    Посмотреть контакты
    3-к кв. Башкортостан, Уфа ул. Адмирала Ушакова, 64/1 (60.6 м) - Фото 1
    3-к кв. Башкортостан, Уфа ул. Адмирала Ушакова, 64/1 (60.6 м) - Фото 2
    3-комнатная квартира, общая площадь 60м², жилая 45м², кухня 5м²

    ПРОДАЕТСЯ 3-комнатная квартира с готовым ремонтом на Ушакова 64/1. Чистый двор, добрые соседи.Описание:Продается светлая и просторная 3-комнатная квартира в отличном состоянии, полностью готовая к проживанию.Ремонт и состояние:- Капитальный ремонт от...
    • 60 м²
    • 3-ком
    • 5/5 эт.
    4 790 000 Р
    Агент
    +7 (986) Показать номер
    Посмотреть контакты
    3-к кв. Башкортостан, Уфа бул. Тухвата Янаби, 69/1 (58.0 м) - Фото 1
    3-к кв. Башкортостан, Уфа бул. Тухвата Янаби, 69/1 (58.0 м) - Фото 2
    3-комнатная квартира, общая площадь 58м², кухня 9м²

    Продаётся уютная трехкомнатная квартира общей площадью 55 квадратных метров, расположенная на восьмом этаже девятиэтажного дома в микрорайоне Инорс города Уфы. Дом, построенный в 1973 году, сочетает в себе преимущества проверенной временем архитектуры...
    • 58 м²
    • 3-ком
    • 8/9 эт.
    4 800 000 Р
    Агент
    +7 (917) Показать номер
    Посмотреть контакты

    Не нашли подходящего объявления?

    Оставьте заявку, и наши риэлторы подберут квартиру в районе Уфы

    (0)