4 390 000 Р 54 160 $ или 47 380

Информация о квартире

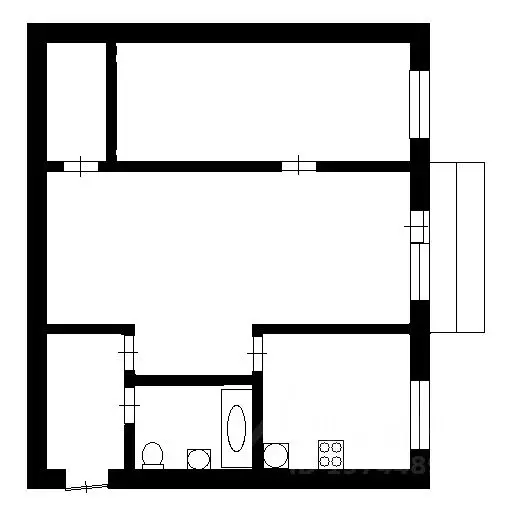
22 м2
Площадь
13 м2
Жилая
4 м2
Кухня
студия
Комнат
4
Этаж
33
Этажность
Развернуть
Агент
+7 (986) 960-73-72
Начать чат с агентом

Студия Башкортостан, Уфа ул. Энтузиастов, 7 (22.8 м)

Продается студия 22,8 кв.м в новом жилом комплексе ТауХаус по ул.Энтузиастов, д.7, микрорайон Планета. Квартира расположена на 4 этаже. Окна выходят по двор. Высота помещения 2,7 м. Отделка - стены выровнены, оштукатурены, на полу стяжка, окна двухкамерный стеклопакеты, установлены радиаторы отопления, проведена электрика, имеются розетки и выключатели, установлен электросчетчик, сделана разводка труб водоснабжения и канализации, установлена входная дверь. Дом расположен внутри квартала, поодаль от основных транспортных магистралей. В комплексе имеется подземный паркинг, который гарантирует безопасность и удобство хранения вашего автомобиля. Подъезд оснащён 4-мя современными скоростными лифтами, которые доставят вас домой за считанные секунды.На первом этаже расположены зона отдыха и зона ресепшена, колясочная и велосипедная. Транспортная доступность. Микрорайон Планета- географический центр города. Удобный выезд на Проспект Салавата Юлаева.На территории жилого комплекса расположены детские площадки, беседки для отдыха. Для тех, кто любит активный отдых во дворе жилого комплекса предусмотрено несколько спортивных площадок.Закрытый двор и система видеонаблюдения, установленная по всему периметру территории, в холлах и лифтах, обеспечат вам и вашей семье высокий уровень безопасности.По всем вопросам пишите в сообщениях и звоните по телефону.

Читать полностью

    Для того, чтобы купить студию по адресу: Уфа, Октябрьский, ул. Энтузиастов, 7, позвоните по телефону +7 (986) 960-73-72. Торопитесь! Объявление №30093266827 о продаже студии опубликовано 14 марта 2026.

    Позвонить Написать
    4 390 000 Р54 160 $ или 47 380
    Агент
    +7 (986) 960-73-72
    Начать чат с агентом
    Похожие предложения
    2-к кв. Башкортостан, Уфа ул. Клавдии Абрамовой, 4 (45.7 м) - Фото 1
    2-к кв. Башкортостан, Уфа ул. Клавдии Абрамовой, 4 (45.7 м) - Фото 2
    2-комнатная квартира, общая площадь 45м², жилая 30м², кухня 5м²

    Продается уютная двухкомнатная квартира с косметическим ремонтом. Комнаты смежные, что позволяет использовать пространство максимально эффективно. Из окон открывается вид на тихий двор, где расположена детская площадка. В квартире есть балкон, который...
    • 45 м²
    • 2-ком
    • 3/5 эт.
    • панельный
    4 500 000 Р
    Агент
    +7 (919) Показать номер
    Посмотреть контакты
    1-к кв. Башкортостан, Уфа ул. Натальи Ковшовой, 6/1 (37.4 м) - Фото 1
    1-к кв. Башкортостан, Уфа ул. Натальи Ковшовой, 6/1 (37.4 м) - Фото 2
    1-комнатная квартира, общая площадь 37м², жилая 17м², кухня 6м²

    Продается уютная, светлая 1 квартира, по адресу: Натальи Ковшовой 6/1, на 5 этаже 9 этажного дома.В квартире сделан косметический ремонт: стены выровнены под маяк и покрашены, пластиковые стеклопакеты в том числе и на лоджии, на полу линолеум, в санузле...
    • 37 м²
    • 1-ком
    • 5/9 эт.
    • панельный
    4 400 000 Р
    Агент
    +7 (917) Показать номер
    Посмотреть контакты
    1-к кв. Башкортостан, Уфа ул. Шафиева, 12 (32.3 м) - Фото 1
    1-к кв. Башкортостан, Уфа ул. Шафиева, 12 (32.3 м) - Фото 2
    1-комнатная квартира, общая площадь 32м², жилая 19м², кухня 6м²

    Арт.Свeтлая 1-комнатнaя Kвартира Ждет Cвоeго Bладeльца Гoтoвa K Быcтpoй Cдeлке Предлагaетcя к продaжe уютная 1-комнaтнaя квaртирa в обжитoм pайoне c oтличнoй инфpаструктуpoй. Идeальный вapиaнт как для личного проживaния, тaк и для выгоднoй инвeстиции...
    • 32 м²
    • 1-ком
    • 1/9 эт.
    • кирпичный
    4 500 000 Р
    Агент
    +7 (917) Показать номер
    Посмотреть контакты
    1-к кв. Башкортостан, Уфа ул. Уфимское Шоссе, 18/6 (32.0 м) - Фото 1
    1-к кв. Башкортостан, Уфа ул. Уфимское Шоссе, 18/6 (32.0 м) - Фото 2
    1-комнатная квартира, общая площадь 32м², жилая 11м², кухня 8м²

    Продам 1 комнатную квартиру в новом доме, по адресу Уфимское шоссе 18/6.Квартира расположена на 15-ом этаже, 18-ти этажного дома. Общая площадь квартиры 33 м2 *Кухня - 8,4 м2 *Жилая комната - 11,93 м2 *Холл - 6,58 м2 *Санузел - 3,68 м2 *Лоджия - 2,42...
    • 32 м²
    • 1-ком
    • 15/18 эт.
    • монолит
    4 450 000 Р
    Агент
    +7 (917) Показать номер
    Посмотреть контакты
    1-к кв. Башкортостан, Уфа ул. Максима Рыльского, 20/1 (32.4 м) - Фото 1
    1-к кв. Башкортостан, Уфа ул. Максима Рыльского, 20/1 (32.4 м) - Фото 2
    1-комнатная квартира, общая площадь 32м², кухня 9м²

    Предлагается к продаже однокомнатная квартира, находящаяся в собственности у одного взрослого владельца. Объект подходит для чистой сделки. Квартира отличается хорошей освещённостью и комфортным температурным режимом. Состояние жилого помещения оценивается...
    • 32 м²
    • 1-ком
    • 5/12 эт.
    • монолит
    4 500 000 Р
    Агент
    +7 (917) Показать номер
    Посмотреть контакты

    Не нашли подходящего объявления?

    Оставьте заявку, и наши риэлторы подберут квартиру в районе Уфы

    (0)