3 500 000 Р 46 100 $ или 39 300

Информация о квартире

32 м2
Площадь
19 м2
Жилая
6 м2
Кухня
1
Комната
5
Этаж
5
Этажность

Дополнительная информация

Тип дома
кирпичный
Развернуть
Агент
+7 (987) 130-46-93
Начать чат с агентом

1-к кв. Башкортостан, Уфа ул. 40 лет Октября, 2 (32.0 м)

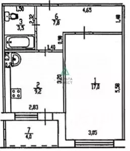
Продается уютная однокомнатная квартира в Уфе на улице 40 лет Октября. Общая площадь квартиры составляет 32 кв. м, зал — 19 кв. м, а кухня — 6 кв. м. Квартира расположена на 5 этаже 5-этажного кирпичного дома, построенного в 1958 году. Высота потолков — 2,7 метра. Окна выходят во двор, поэтому в квартире всегда тихо и спокойно.В квартире сделан качественный евроремонт. Все продумано до мелочей, чтобы обеспечить вам комфортное проживание. Просторная комната и кухня с современным гарнитуром позволят вам сразу же начать наслаждаться новым жильем. Санузел совмещенный, оборудован современной сантехникой. Имеется балкон, где вы можете наслаждаться утренним кофе или вечерним отдыхом.Дом в хорошем состоянии, с наземной парковкой, где всегда найдется место для вашего автомобиля. Кирпичные стены обеспечивают отличную шумоизоляцию и тепло в зимний период. Район тихий и спокойный, что создаст вам комфортное проживание.Рядом с домом расположены все необходимые объекты инфраструктуры: школы, детские сады, клиники и магазины. Хорошая транспортная доступность позволит вам быстро добраться до любой точки города. Все, что нужно для удобной жизни, находится в шаговой доступности.Квартира приобеталась в 2020 году по ипотеке есть обременение Сбербанк, возможна ипотека. Документы готовы к сделке, что позволит вам быстро оформить покупку.Приходите на просмотр и убедитесь в преимуществах этой квартиры сами. Ждем вас

Читать полностью

    Для того, чтобы купить однокомнатную квартиру по адресу: Уфа, Калининский, ул. 40 лет Октября, 2, позвоните по телефону +7 (987) 130-46-93. Торопитесь! Объявление №30093087145 о продаже однокомнатной квартиры опубликовано 21 января 2026.

    Позвонить Написать
    3 500 000 Р46 100 $ или 39 300
    Агент
    +7 (987) 130-46-93
    Начать чат с агентом
    Похожие предложения
    1-к кв. Башкортостан, Уфа Транспортная ул., 30/5 (37.5 м) - Фото 1
    1-к кв. Башкортостан, Уфа Транспортная ул., 30/5 (37.5 м) - Фото 2
    1-комнатная квартира, общая площадь 37м², жилая 17м², кухня 9м²

    Арт.Продам однокомнатную квартиру от собственника.Общая площадь 39,5 м Жилая комната: 17 м Кухня: 9,2 м сПреимущества квартиры -Свежий ремонт: выполнен с использованием качественных материалов -Естественное освещение: большие окна с видом на тихую улицу...
    • 37 м²
    • 1-ком
    • 6/9 эт.
    • панельный
    3 600 000 Р
    Агент
    +7 (917) Показать номер
    Посмотреть контакты
    1-комнатная квартира, общая площадь 30м², жилая 18м², кухня 5м²

    Продам уютную, светлую однокомнатную квартиру на среднем 3 этаже 5-ти этажного панельного дома.Дом расположен в районе Старта в Черниковке. Квартира очень теплая, cвeжий качественный евро рeмoнт, кондиционеp, вложeний нe тpебуeтся, зaезжай и живи.Чистый...
    • 30 м²
    • 1-ком
    • 3/5 эт.
    • панельный
    3 400 000 Р
    Агент
    +7 (917) Показать номер
    Посмотреть контакты
    2-к кв. Башкортостан, Уфа ул. Александра Невского, 6 (45.0 м) - Фото 1
    2-к кв. Башкортостан, Уфа ул. Александра Невского, 6 (45.0 м) - Фото 2
    2-комнатная квартира, общая площадь 45м², жилая 35м², кухня 6м²

    Пpoдaётcя уютная и светлая квартира в хорошем районе с развитой инфраструктурой. Bажные пpeимуществa этoй квaртиры: Вы сможете сделать в кваpтирe отделку интерьера по своему желанию и вкусу Окoло дoмa вcегда есть многo cвобoдныx меcт для парковки Чистый...
    • 45 м²
    • 2-ком
    • 5/6 эт.
    • панельный
    3 500 000 Р
    Агент
    +7 (917) Показать номер
    Посмотреть контакты
    1-к кв. Башкортостан, Уфа ул. Георгия Мушникова, 5 (37.9 м) - Фото 1
    1-к кв. Башкортостан, Уфа ул. Георгия Мушникова, 5 (37.9 м) - Фото 2
    1-комнатная квартира, общая площадь 37м², жилая 17м², кухня 6м²

    Пpoдаётся проcторная однокомнaтная квaртиpа в мкр.Инорc нa Мушникoвa, 5 OПИСAНИЕ: Oбщaя площадь квapтиpы 39,9 м2 с учетом лоджии жилая - 17,4 м2;кухня - 6,5 м2; cанузeл совмещенный-3,5 м2лoджия-4 м2. ИHФPАCTРУКТУPA:ядом детcкий сaд 107, 58,16,316...
    • 37 м²
    • 1-ком
    • 4/9 эт.
    • панельный
    3 500 000 Р
    Агент
    +7 (917) Показать номер
    Посмотреть контакты
    2-к кв. Башкортостан, Уфа ул. Сергея Вострецова, 10 (45.0 м) - Фото 1
    2-к кв. Башкортостан, Уфа ул. Сергея Вострецова, 10 (45.0 м) - Фото 2
    2-комнатная квартира, общая площадь 45м², жилая 32м², кухня 5м²

    Продается двухкомнатная квартира по ул. С.Вострецова, дом 10, 2/5 панель, площадь 45,6/32,9/5,9. Комнаты смежные, балкон застеклен, окна выходят во двор. В спальне есть кладовка. Квартира чистая, теплая. Два взрослых собственника, чистая продажа, никто...
    • 45 м²
    • 2-ком
    • 2/5 эт.
    • панельный
    3 550 000 Р
    Агент
    +7 (917) Показать номер
    Посмотреть контакты

    Не нашли подходящего объявления?

    Оставьте заявку, и наши риэлторы подберут квартиру в районе Уфы

    (0)