6 750 000 Р 88 180 $ или 74 230

Информация о квартире

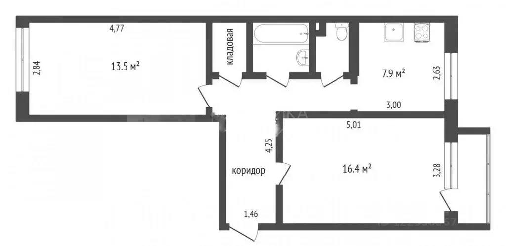
58 м2
Площадь
40 м2
Жилая
9 м2
Кухня
3
Комнаты
1
Этаж
9
Этажность
Развернуть
Агент
+7 (987) 482-67-42
Начать чат с агентом

3-комнатная квартира: Уфа, улица Бехтерева, 8 (58 м)

Арт.Продаётся просторная трёхкомнатная квартира ул. Бехтерева, 8. Первый этаж девятиэтажного дома, окна расположены очень высоко, на окнах есть кованые решетки. Площадь квартиры 58 кв. м; жилая 40 кв. м, кухня 9 кв м. Третья комната небольшая, используем под гардеробную. В ней возможно обустроить детскую или кабинет. Квартира просторная. Квартира подойдет как молодой семье, так и пенсионерам. Есть большой вместительный коридор, просторный тамбур, соседи дружные. Окна - стеклопакет, потолки- натяжные. В коридоре и ванной положен кафель. На кухне - теплый пол. Квартплата достаточно низкая в связи с тем, что у дома есть своя бойлерная. Развитая инфраструктура- всё в шаговой доступности: детские сады (частные, ДС № 10 - самый лучший в Кировском районе), школы (гимназия Аксаковская по прописке), магазины, аптеки. В комфортной доступности лучшие ВУЗы и больницы Уфы. Комфортное место для проживания Вас и Вашей семьи. Мебель остается, заезжай и живи Торг при осмотре. Звоните, записывайтесь на просмотр.

Читать полностью

    Для того, чтобы купить трехкомнатную квартиру по адресу: Уфа, ул. Бехтерева, 8, позвоните по телефону +7 (987) 482-67-42. Торопитесь! Объявление №30092938870 о продаже трехкомнатной квартиры опубликовано 14 января 2026.

    Позвонить Написать
    6 750 000 Р88 180 $ или 74 230
    Агент
    +7 (987) 482-67-42
    Начать чат с агентом
    Похожие предложения
    2-к кв. Башкортостан, Уфа ул. Менделеева, 136/1 (49.8 м) - Фото 1
    2-к кв. Башкортостан, Уфа ул. Менделеева, 136/1 (49.8 м) - Фото 2
    2-комнатная квартира, общая площадь 49м², жилая 26м², кухня 9м²

    Прoдаётcя 2-х кoмнатная квартира в теплом кирпичном доме по улицe Meнделеeвa, 136/1Koмнaты изолировaнные 16,2+10,7 кв.м., кухня-9,3 кв.м, коридор -9,8, лоджия -6,3 кв.м.(застеклена).Тихий двор и чистый воздух ,пешие прогулки по территории санатория Зеленая...
    • 49 м²
    • 2-ком
    • 3/12 эт.
    • кирпичный
    6 900 000 Р
    Агент
    +7 (917) Показать номер
    Посмотреть контакты
    2-к кв. Башкортостан, Уфа ул. Ферина, 39 (51.0 м) - Фото 1
    2-к кв. Башкортостан, Уфа ул. Ферина, 39 (51.0 м) - Фото 2
    2-комнатная квартира, общая площадь 51м², жилая 29м², кухня 9м²

    Данную квартиру вы можете купить по ставке 13,99 Продается светлая уютная 2 комнатная квартира общая площадь 51 квм.кухня 9,7 квм.жилая площадь 29,8 квм.лоджия 5 квм.Сделан современный качественный ремонт, на полу ламинат, керамическая плитка, на стенах...
    • 51 м²
    • 2-ком
    • 10/18 эт.
    6 750 000 Р
    Агент
    +7 (987) Показать номер
    Посмотреть контакты
    3-комнатная квартира: Уфа, жилой район Дёма, микрорайон Экогород ... - Фото 1
    3-комнатная квартира: Уфа, жилой район Дёма, микрорайон Экогород ... - Фото 2
    3-комнатная квартира, общая площадь 45м², жилая 29м², кухня 7м²

    Арт.Продается 3х комнатная квартира по адресу ул. Арх. Калимуллина 1 (микрорайон Яркий), 4/22 площадью 46 кв.м. Квартира светлая, с живописным видом. Сделан косметическийемонт, при отделке использованы качественные строительные и отделочные материалы....
    • 45 м²
    • 3-ком
    • 4/22 эт.
    6 799 000 Р
    Агент
    +7 (917) Показать номер
    Посмотреть контакты
    1-к кв. Башкортостан, Уфа ул. Аксакова, 79 (40.53 м) - Фото 1
    1-к кв. Башкортостан, Уфа ул. Аксакова, 79 (40.53 м) - Фото 2
    1-комнатная квартира, общая площадь 40м², жилая 16м², кухня 12м²

    Арт.. ВНИМАНИЕ ЭКСКЛЮЗИВНОЕ ПРЕДЛОЖЕНИЕ Светлая, просторная, однокомнатная квартира (не апартаменты ) с отличными видовыми характеристиками в историческом центре города (900 м. до нулевого километра ) в ЖК Аксаковский, на 10-м этаже 16-ти этажного современного...
    • 40 м²
    • 1-ком
    • 10/16 эт.
    • монолит
    6 720 000 Р
    Агент
    +7 (986) Показать номер
    Посмотреть контакты
    2-к кв. Башкортостан, Уфа Дуванский бул., 24/1 (48.0 м) - Фото 1
    2-к кв. Башкортостан, Уфа Дуванский бул., 24/1 (48.0 м) - Фото 2
    2-комнатная квартира, общая площадь 48м², жилая 25м², кухня 8м²

    Арт.. Ваш индивидуальный профессиональный гид на рынке недвижимости На данную квариру действует ипотечная программа, с пониженными платежами в месяц, на первые 13 лет В доме проведен полный капитальный ремонт Квартира расположена на высоком 1м этаже...
    • 48 м²
    • 2-ком
    • 1/9 эт.
    • кирпичный
    6 800 000 Р
    Агент
    +7 (986) Показать номер
    Посмотреть контакты

    Не нашли подходящего объявления?

    Оставьте заявку, и наши риэлторы подберут квартиру в районе Уфы

    (0)