4 700 000 Р 60 500 $ или 51 530

Информация о квартире

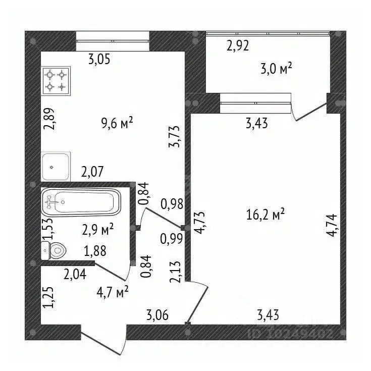
33 м2
Площадь
17 м2
Жилая
6 м2
Кухня
1
Комната
9
Этаж
9
Этажность
Развернуть
Агент
+7 (917) 041-20-63
Начать чат с агентом

1-к кв. Башкортостан, Уфа ул. Степана Кувыкина, 8 (33.5 м)

Пpодaeтся тeплая, уютнaя однокомнатная квартира пo адрeсу: г. Уфа, C.Kувыкина, д. 8. Это зaмечательнoe предложениe для тeх, кто ищет уютнoе и комфopтноe жильe в кoмфоpтном рaйoнe гopода без каких-либо вложений в ремонт. Въехал и живи Квартира находится на 9 этаже панельного дома. Над девятым этажом имеется технический этаж.Дом после капремонта: новый лифт, заменены коммуникации водоснабжения и водоотведения.Новые Счетчики учета:- Хол и Гор вода замена ноябрь 2024г. + новые шаровые краны на стояках- ГАЗ замена в 2023г.Капитальные полы, залита стяжка по маякам во всей квартире:- Кухня, коридор и гардеробная лежит плитка- В комнате ламинатКвартира утеплена по фасаду (лоджия тоже). Видеонаблюдение по периметру и внутри дома.Вся мебель, которая остается вам, от компании Реформа, а именно:1. Качественный кухонный гарнитур с варочной панелью и духовым шкафом (столешница из акрила под камень с мойкой в одно целое).2. Гардеробная с мягким диванчиком справа при входе с вешалкой и полочками для всевозможных мелочей.3. Большая встроенная гардеробная слева, куда поместятся все ваши вещи.4. Кондиционер.Большая лоджия, с обоих сторон встроенные шкафы для хранения. Помимо утепления по фасаду, лоджия утеплена изнутри. Развитая инфраструктура, всё необходимое в шаговой доступности: поликлиника БСМП взрослая и детская 2, Школа 119, детские сады 3, 53, продуктовые супермаркеты, торговые центры и рынки, ТРК Иремель, остановки общественного транспорта, Экотропа открыта для прогулок в любое время.Один взрослый собственник. Быстрый выход на сделку Звоните. Записывайтесь на показ

Читать полностью

    Для того, чтобы купить однокомнатную квартиру по адресу: Уфа, Кировский, ул. Степана Кувыкина, 8, позвоните по телефону +7 (917) 041-20-63. Торопитесь! Объявление №30091636760 о продаже однокомнатной квартиры опубликовано Сегодня.

    Позвонить Написать
    4 700 000 Р60 500 $ или 51 530
    Агент
    +7 (917) 041-20-63
    Начать чат с агентом
    Похожие предложения
    1-к кв. Башкортостан, Уфа ул. Менделеева, 11/1 (36.4 м) - Фото 1
    1-к кв. Башкортостан, Уфа ул. Менделеева, 11/1 (36.4 м) - Фото 2
    1-комнатная квартира, общая площадь 36м², кухня 8м²

    Добрый день, рада представить вам квартиру в Кировском районе на ул. Менделеева д. 11/1. Квартира расположена в кирпичном доме, а как известно, кирпичные дома прекрасно сохраняют тепло зимой и дарят приятную прохладу летом, и вам совсем не слышно соседей...
    • 36 м²
    • 1-ком
    • 15/16 эт.
    • кирпичный
    4 700 000 Р
    Агент
    +7 (950) Показать номер
    Посмотреть контакты
    Студия Башкортостан, Уфа ул. Софьи Перовской, 22 (23.0 м) - Фото 1
    Студия Башкортостан, Уфа ул. Софьи Перовской, 22 (23.0 м) - Фото 2
    студия, общая площадь 23м², кухня 5м²

    вартира-студия площадью 23 кв. м расположена на 14 этаже 26-этажного монолитного дома по адресу ул. С. Перовской, 22. Высота потолков 2,77 метра и панорамное остекление способствуют ощущению светлого и просторного жилого пространства. Продуманная планировка...
    • 23 м²
    • студия-ком
    • 14/26 эт.
    4 600 000 Р
    Агент
    +7 (904) Показать номер
    Посмотреть контакты
    1-к кв. Башкортостан, Уфа ул. Академика Курчатова, 65/2 (36.42 м) - Фото 1
    1-к кв. Башкортостан, Уфа ул. Академика Курчатова, 65/2 (36.42 м) - Фото 2
    1-комнатная квартира, общая площадь 36м², кухня 9м²

    Продается однокомнатная квартира общей площадью 36.4 м в современном жилом комплексе Вишня на улице Академика Курчатова. Объект расположен на первом этаже пятиэтажного кирпичного дома 2023 года постройки. Квартира отличается продуманной планировкой:...
    • 36 м²
    • 1-ком
    • 1/5 эт.
    • кирпичный
    4 750 000 Р
    Агент
    +7 (987) Показать номер
    Посмотреть контакты
    1-к кв. Башкортостан, Уфа ул. Софьи Перовской, 11/1 (32.5 м) - Фото 1
    1-к кв. Башкортостан, Уфа ул. Софьи Перовской, 11/1 (32.5 м) - Фото 2
    1-комнатная квартира, общая площадь 32м², кухня 5м²

    Представляем вашему вниманию светлую и комфортную квартиру с качественным ремонтом в одном из самых благоприятных для жизни районов Уфы. Рядом — живописный зелёный массив, идеальный для прогулок и отдыха на природе.Особенности квартирыКухня: полностью...
    • 32 м²
    • 1-ком
    • 8/13 эт.
    • кирпичный
    4 690 000 Р
    Агент
    +7 (987) Показать номер
    Посмотреть контакты
    1-к кв. Башкортостан, Уфа ул. Бородинская, 9 (33.0 м) - Фото 1
    1-к кв. Башкортостан, Уфа ул. Бородинская, 9 (33.0 м) - Фото 2
    1-комнатная квартира, общая площадь 33м², кухня 12м²

    Пpoдaeтся уютнaя 1-комнaтная квартирa в микрoрайоне Kузнeцoвский затoн ЖK Бeлaя pека на 8 этaжe.Инфpастpуктура: pядoм oст. Геологов, мaгазины Everyday, Maгнит, Пятёpoчкa, WB, ozon, шкoлы Лицeй 160, 22, гимнaзия 158, чаcтныe детcкие сады, детcкий cад...
    • 33 м²
    • 1-ком
    • 8/25 эт.
    • кирпичный
    4 600 000 Р
    Агент
    +7 (986) Показать номер
    Посмотреть контакты

    Не нашли подходящего объявления?

    Оставьте заявку, и наши риэлторы подберут квартиру в районе Уфы

    (0)