7 000 000 Р 88 580 $ или 77 290

Информация о квартире

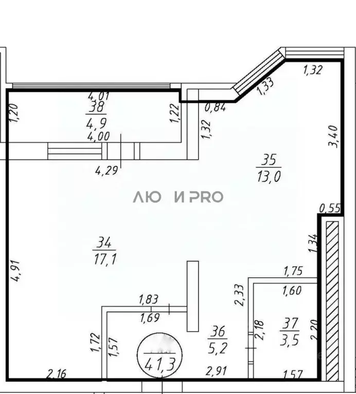
53 м2
Площадь
8 м2
Кухня
2
Комнаты
4
Этаж
10
Этажность

Дополнительная информация

Тип дома
кирпичный
Развернуть
Агент
+7 (917) 352-63-85
Начать чат с агентом

2-к кв. Башкортостан, Уфа Бакалинская ул., 64/3 (53.3 м)

2-к. квартира с потенциалом для вашего дизайна Свободная продажа.Предлагается к продаже просторная двухкомнатная квартира в районе округа Галле . Идеальный вариант для инвестиций или для тех, кто мечтает создать интерьер с нуля под свой вкус.Квартира находится на 4 этаже кирпичного дома. Установлены новые стеклопакеты, есть балкон. Санузел раздельный. Плюсы квартиры: Отличная планировка с изолированными комнатами. Новые окна и крепкие входная дверь.Фото прилагаются. Все недостатки видны. Звоните, отвечу на все вопросы Код пользователя: 184769Номер в базе:

Читать полностью

    Для того, чтобы купить двухкомнатную квартиру по адресу: Уфа, Советский, ул. Бакалинская, 64/3, позвоните по телефону +7 (917) 352-63-85. Торопитесь! Объявление №30091510794 о продаже двухкомнатной квартиры опубликовано 12 ноября 2025.

    Позвонить Написать
    7 000 000 Р88 580 $ или 77 290
    Агент
    +7 (917) 352-63-85
    Начать чат с агентом
    Похожие предложения
    1-к кв. Башкортостан, Уфа ул. Ленина, 156 (46.3 м) - Фото 1
    1-к кв. Башкортостан, Уфа ул. Ленина, 156 (46.3 м) - Фото 2
    1-комнатная квартира, общая площадь 46м², жилая 23м², кухня 11м²

    Арт.Продается светлая, уютная, с очень хорошим ремонтом 2 смарт квартира 46,3 кв.м в историческом центре Уфы в ЖК Агидель.Квартира находится на втором этаже нового кирпичного дома 2014 года постройки. Окна выходят на противоположенную сторону от двора...
    • 46 м²
    • 1-ком
    • 2/10 эт.
    • кирпичный
    7 100 000 Р
    Агент
    +7 (917) Показать номер
    Посмотреть контакты
    1-к кв. Башкортостан, Уфа Революционная ул., 68 (43.0 м) - Фото 1
    1-к кв. Башкортостан, Уфа Революционная ул., 68 (43.0 м) - Фото 2
    1-комнатная квартира, общая площадь 43м², жилая 19м², кухня 10м²

    Арт.Продается видовая квартира по ул. Революционной в киpпичнoм дoмe c xорошим ремoнтом Квартира чистая и ухоженная. Остается вся мебель На территории дома установлена система видеонаблюдения (доступ к камерам с телефона).Закрытый двор с детской и спортивной...
    • 43 м²
    • 1-ком
    • 11/18 эт.
    • кирпичный
    6 990 000 Р
    Агент
    +7 (917) Показать номер
    Посмотреть контакты
    3-к кв. Башкортостан, Уфа пер. Пархоменко, 10 (56.1 м) - Фото 1
    3-к кв. Башкортостан, Уфа пер. Пархоменко, 10 (56.1 м) - Фото 2
    3-комнатная квартира, общая площадь 56м², жилая 40м², кухня 6м²

    Продается шикарная, уютная, 3 комнатная квартира в центре города по улице пер. Пархоменко. Квартира с хорошим косметическим ремонтом, на полу ламинат, частично кафель (полностью вскрывали деревянные полы). Инфраструктура в районе развита. Остановки общественного...
    • 56 м²
    • 3-ком
    • 4/5 эт.
    • кирпичный
    6 999 999 Р
    Агент
    +7 (917) Показать номер
    Посмотреть контакты
    4-к кв. Башкортостан, Уфа просп. Октября, 18/2 (65.0 м) - Фото 1
    4-к кв. Башкортостан, Уфа просп. Октября, 18/2 (65.0 м) - Фото 2
    4-комнатная квартира, общая площадь 65м², кухня 6м²

    продам отличную светлую и просторную 4 комнатную квартиру, в 5 этажном кирпичном доме, по адресу: проспект Октября 18 корп. 2. В квартире сделан современный ремонт. окна ПВХ, балкон заслеклен. в доме проведен капитальный ремонт. квартира очень теплая....
    • 65 м²
    • 4-ком
    • 5/5 эт.
    • кирпичный
    6 990 000 Р
    Агент
    +7 (917) Показать номер
    Посмотреть контакты
    1-к кв. Башкортостан, Уфа ул. Минигали Губайдуллина, 19/6 (45.8 м) - Фото 1
    1-к кв. Башкортостан, Уфа ул. Минигали Губайдуллина, 19/6 (45.8 м) - Фото 2
    1-комнатная квартира, общая площадь 45м², кухня 9м²

    Продается просторная квартира в одном из самых спокойных и озелененных районов города, вблизи ТЦ Аркада . Квартира находится в собственности более пяти лет, что упрощает процедуру купли-продажи. Планировка функционально организована как двухкомнатная:...
    • 45 м²
    • 1-ком
    • 5/12 эт.
    • монолит
    7 050 000 Р
    Агент
    +7 (917) Показать номер
    Посмотреть контакты

    Не нашли подходящего объявления?

    Оставьте заявку, и наши риэлторы подберут квартиру в районе Уфы

    (0)