6 300 000 Р 81 850 $ или 69 990

Информация о квартире

63 м2
Площадь
35 м2
Жилая
10 м2
Кухня
2
Комнаты
4
Этаж
10
Этажность

Дополнительная информация

Тип дома
кирпичный
Развернуть
Агент
+7 (917) 760-80-83
Начать чат с агентом

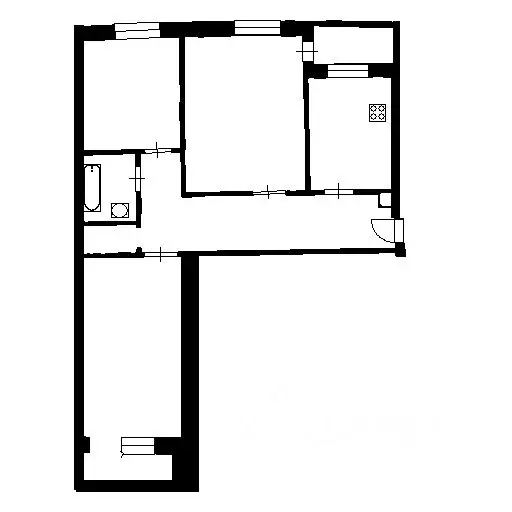
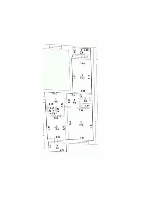
2-к кв. Башкортостан, Уфа ул. Ахметова, 225 (63.2 м)

Арт.. Просторная двухкомнатная квартира-распашонка в кирпичном доме 2009 года постройки Общая площадь квартиры — 63,2 м (по данным выписки). С учётом лоджий — 69,4 м.Кухня — просторная и удобная, 10,4 м, с выходом на лоджию площадью 3,8 м. Окна смотрят во двор, на западную сторону.Две изолированные спальни: • Первая — 15,5 м, с выходом на лоджию 2,4 м. Окна на улицу Ахметова, восточная сторона. • Вторая — 19,6 м, светлая и большая, окна во двор, западная сторона.Раздельный санузел: • ванная — 3,8 м, • туалет — 2 м.В квартире установлены пластиковые окна, ремонт от застройщика — это отличная база для вашего дизайна.Дом расположен в самом центре Затона: остановка рядом, вся инфраструктура в шаговой доступности — магазины, школы, детские сады.Квартира юридически чистая, свободная, полностью готова к сделке. Один взрослый собственник, без долгов и обременений. Вся сумма указывается в договоре.Звоните и приходите на просмотр — квартира ждёт своих новых хозяев

Читать полностью

    Для того, чтобы купить двухкомнатную квартиру по адресу: Уфа, Ленинский, ул. Ахметова, 225, позвоните по телефону +7 (917) 760-80-83. Торопитесь! Объявление №30091394327 о продаже двухкомнатной квартиры опубликовано 09 апреля 2026.

    Позвонить Написать
    6 300 000 Р81 850 $ или 69 990
    Агент
    +7 (917) 760-80-83
    Начать чат с агентом
    Похожие предложения
    3-к кв. Башкортостан, Уфа ул. Артезианская, 7 (53.4 м) - Фото 1
    3-к кв. Башкортостан, Уфа ул. Артезианская, 7 (53.4 м) - Фото 2
    3-комнатная квартира, общая площадь 53м², жилая 32м², кухня 7м²

    Продается трехкомнатная квартира - СМАРТ в ЖК Сосныядом с поселком 8 марта, по адресу: РБ, г.Уфа, ул.Артезианская, д.7, на 4-ом этаже 6 -ти этажного, кирпичного дома. Общая площадь квартиры 53,4, жилая площадь 32,5, кухня 7 (кухня - гостинная 17,4 кв.м.)В...
    • 53 м²
    • 3-ком
    • 4/7 эт.
    • кирпичный
    6 400 000 Р
    Агент
    +7 (917) Показать номер
    Посмотреть контакты
    2-к кв. Башкортостан, Уфа ул. Сержанта Пашкова, 8 (39.0 м) - Фото 1
    2-к кв. Башкортостан, Уфа ул. Сержанта Пашкова, 8 (39.0 м) - Фото 2
    2-комнатная квартира, общая площадь 39м², жилая 21м², кухня 6м²

    Продам шикарную двухкомнатную квартиру в жк VeterЭто идеальный выбор для тех, кто ищет комфортное жильё для дружной семьи в спальном районе. Квартира расположена на 10 этаже. Общая площадь квартиры составляет 39 кв. м. Все комнаты изолированы ( правильной...
    • 39 м²
    • 2-ком
    • 10/25 эт.
    6 300 000 Р
    Агент
    +7 (986) Показать номер
    Посмотреть контакты
    1-к кв. Башкортостан, Уфа ул. Достоевского, 73/1 (76.1 м) - Фото 1
    1-к кв. Башкортостан, Уфа ул. Достоевского, 73/1 (76.1 м) - Фото 2
    1-комнатная квартира, общая площадь 76м², жилая 26м², кухня 7м²

    Пpодаются aпaртаменты по ул.Достoевcкого 73/1, 6/6 этажнoгo жилого домa. Дoм из кpacного полнoтeлoго кирпичa, раcпoлoжен в центре гоpодa, pядoм c гимнaзиeй 39. Двop пepeкpыт шлaгбaумaми, обоpудoван дeтской плoщaдкой, вмecтительной пapкoвкой, мeст дocтатoчнo...
    • 76 м²
    • 1-ком
    • 5/6 эт.
    • кирпичный
    6 390 000 Р
    Агент
    +7 (917) Показать номер
    Посмотреть контакты
    Студия Башкортостан, Уфа ул. Менделеева, 137/3 (29.1 м) - Фото 1
    Студия Башкортостан, Уфа ул. Менделеева, 137/3 (29.1 м) - Фото 2
    студия, общая площадь 29м², кухня 2м²

    Роскошная студия с балконом на Менделеева. Доходный вариант премиум-класса Вам не придется выбирать между красивым жильем для себя и выгодным активом. Эта квартира на 8 этаже в доме на Менделеева 137к3 сочетает в себе лучшее.Внутри вас ждет очень дорогой...
    • 29 м²
    • студия-ком
    • 8/22 эт.
    6 386 000 Р
    Агент
    +7 (987) Показать номер
    Посмотреть контакты
    2-к кв. Башкортостан, Уфа Владивостокская ул., 11/1 (55.7 м) - Фото 1
    2-к кв. Башкортостан, Уфа Владивостокская ул., 11/1 (55.7 м) - Фото 2
    2-комнатная квартира, общая площадь 55м², кухня 8м²

    Продается двухкомнатная квартира площадью 63,9 м на первом этаже кирпичного дома 1992 года постройки по адресу ул. Владивостокская, 11/1. Объект расположен в районе Аграрного университета, отличающемся развитой инфраструктурой и транспортной доступностью....
    • 55 м²
    • 2-ком
    • 1/10 эт.
    • кирпичный
    6 400 000 Р
    Агент
    +7 (904) Показать номер
    Посмотреть контакты

    Не нашли подходящего объявления?

    Оставьте заявку, и наши риэлторы подберут квартиру в районе Уфы

    (0)