2 650 000 Р 34 860 $ или 29 130

Информация о квартире

33 м2
Площадь
3 м2
Кухня
2
Комнаты
1
Этаж
9
Этажность

Дополнительная информация

Тип дома
панельный
Развернуть
Агент
+7 (917) 361-09-48
Начать чат с агентом

2-к кв. Башкортостан, Уфа Кольцевая ул., 195 (33.3 м)

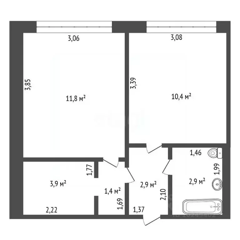
Продается светлая двухкомнатная квартира по улице Кольцевая 195. Общая площадь квартиры 33,3 кв.м., комнаты изолированные: 11,8 кв.м; 10,4 кв.м. Санузел совмещенный, на стене кафель, новая сантехника. Квартира теплая, чистая, уютная. Можно заехать и жить, вложений практически не требует. Пластиковые окна, на полу линолеум, качественные новые межкомнатные двери. В квартире остается: кухонный гарнитур, холодильник, шкаф, кровать. Дом находится в районе с хорошо развитой инфраструктурой. В шаговой доступности остановка транспорта, школа 70, детские сады 280, 270, торговый комплекс Три тополя, сетевые продуктовые магазины, аптеки, автоцентр. Во дворе много парковочных мест, удобный выезд на улицы Кольцевая, Интернациональная, Первомайская. Без долгов и обременений. Звоните, записывайтесь на просмотр Код пользователя: 172611Номер в базе: 9903960

Читать полностью

    Для того, чтобы купить двухкомнатную квартиру по адресу: Уфа, Орджоникидзевский, ул. Кольцевая, 195, позвоните по телефону +7 (917) 361-09-48. Торопитесь! Объявление №30090731182 о продаже двухкомнатной квартиры опубликовано 24 января 2026.

    Позвонить Написать
    2 650 000 Р34 860 $ или 29 130
    Агент
    +7 (917) 361-09-48
    Начать чат с агентом
    Похожие предложения
    1-к кв. Башкортостан, Уфа Кольцевая ул., 205/1 (21.6 м) - Фото 1
    1-к кв. Башкортостан, Уфа Кольцевая ул., 205/1 (21.6 м) - Фото 2
    1-комнатная квартира, общая площадь 21м², жилая 11м², кухня 4м²

    СРОЧНАЯ ПРОДАЖА ТОРГ НА МЕСТЕПродается уютная однокомнатная квартира по адресу: Республика Башкортостан, г. Уфа, ул. Кольцевая, 205/1. Эта квартира - идеальный вариант для комфортного проживания, созданная с заботой о вашем удобстве. Находясь на третьем...
    • 21 м²
    • 1-ком
    • 3/9 эт.
    • монолит
    2 800 000 Р
    Агент
    +7 (917) Показать номер
    Посмотреть контакты
    1-к кв. Башкортостан, Уфа Кольцевая ул., 135 (31.7 м) - Фото 1
    1-к кв. Башкортостан, Уфа Кольцевая ул., 135 (31.7 м) - Фото 2
    1-комнатная квартира, общая площадь 31м², жилая 17м², кухня 6м²

    Продается.Полноценная 1 комнатная квартира, расположенная на 1 этаже 5 эт. кирпичного дома.Приобреталась за наличный расчет, без долгов и обременений.В квартире поменяна проводка, окна пластиковые.Вся мебель вывезена, квартира пустая, готовая принять...
    • 31 м²
    • 1-ком
    • 1/5 эт.
    • кирпичный
    2 730 000 Р
    Агент
    +7 (950) Показать номер
    Посмотреть контакты
    1-к кв. Башкортостан, Уфа ул. Дмитрия Донского, 5/8 (27.1 м) - Фото 1
    1-к кв. Башкортостан, Уфа ул. Дмитрия Донского, 5/8 (27.1 м) - Фото 2
    1-комнатная квартира, общая площадь 27м², жилая 17м², кухня 5м²

    Продается светлая 1-к. кв. с ремонтом Солнечная сторона, вся инфраструктура рядом. Торг Смотрите и переезжайте 1-комнатная квартира с косметическим ремонтом. Солнечная сторона - всегда светло и уютно. Вся мебель и техника на кухне остаются. Чистый...
    • 27 м²
    • 1-ком
    • 2/3 эт.
    • кирпичный
    2 650 000 Р
    Агент
    +7 (986) Показать номер
    Посмотреть контакты
    1-к кв. Башкортостан, Уфа ул. Льва Толстого, 18 (36.0 м) - Фото 1
    1-к кв. Башкортостан, Уфа ул. Льва Толстого, 18 (36.0 м) - Фото 2
    1-комнатная квартира, общая площадь 36м², жилая 20м², кухня 7м²

    Светлая, теплая однокомнатная квартира, расположенная по улице Льва Толстого.О квартиреКвартира, общей площадью 36 кв.м. располагается 1 этаже 3-х этажного кирпичного дома.В квартире не вчера, но для себя был сделан косметический ремонт:- кухонный гарнитур;-...
    • 36 м²
    • 1-ком
    • 1/3 эт.
    • кирпичный
    2 750 000 Р
    Агент
    +7 (987) Показать номер
    Посмотреть контакты
    2-к кв. Башкортостан, Уфа Вологодская ул., 27/1 (33.4 м) - Фото 1
    2-к кв. Башкортостан, Уфа Вологодская ул., 27/1 (33.4 м) - Фото 2
    2-комнатная квартира, общая площадь 33м², жилая 22м², кухня 6м²

    Продается двухкомнатная квартира с изолированными комнатами. В квартире два стояка канализации (водоотведения) и четыре точки подачи воды, всё зарегистрировано и учтено, соответственно есть возможность разделить квартиру на две студии со своими санузлами....
    • 33 м²
    • 2-ком
    • 6/9 эт.
    • панельный
    2 650 000 Р
    Агент
    +7 (919) Показать номер
    Посмотреть контакты

    Не нашли подходящего объявления?

    Оставьте заявку, и наши риэлторы подберут квартиру в районе Уфы

    (0)