Россия, Республика Башкортостан, Уфа, улица Даяна Мурзина, 5/1

Реализация объекта недвижимости приостановлена

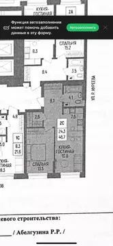
Информация о квартире

51.0 м2
Площадь
29.0 м2
Жилая
2
Комнаты
4
Этаж
8
Этажность
Развернуть

2-комнатная квартира: Уфа, улица Даяна Мурзина, 5/1 (51 м)

Продается 2-к-комнатная квартира в ЖК «Цветы Башкирии от ГК «Архстрой Групп . 4-й этаж 8-этажного жилого дома, общая площадь 51 кв.м., жилая площадь 29.1 кв.м. Отделка получистовая.

Читать полностью

    Реализация объекта недвижимости приостановлена

    Не нашли подходящего объявления?

    Оставьте заявку, и наши риэлторы подберут квартиру в районе Уфы

    (0)