3 950 000 Р 51 950 $ или 44 490

Информация о квартире

24 м2
Площадь
5 м2
Кухня
1
Комната
9
Этаж
22
Этажность
Развернуть
Агент
+7 (987) 481-61-05
Начать чат с агентом

1-к кв. Башкортостан, Уфа ул. Акварельная, 4 (24.0 м)

Продается квартира- студия в новом доме, в современном комфортном живописном и экологически чистом месте в ЖК Яркий. СРОК СДАЧИ ФЕВРАЛЬ 2024 ГОДА. Общая площадь квартиры 23.63 кв.м, с выходом на лоджию. Высота потолков 2,7 м. В квартире идеально залиты и выровнены полы и стены, проведена разводка электричества, счетчики ХВС и ГВС, радиаторы отопления, заведен домофон, пластиковые окна с остеклением лоджии, качественная железная входная дверь. Окна выходят в сторону озера. Дом построен по современным технологиям, утеплен, вентилируемый и яркий фасад дома. Облагороженное озеро с мангальными зонами, парк с беговыми дорожками, спортивными площадками. Во дворе современная детская площадка. В данном микрорайоне без преувеличения есть всё для счастливой семейной жизни. Район для молодых семей. И Код пользователя: 70842Номер в базе: 8311098

Читать полностью

    Для того, чтобы купить однокомнатную квартиру по адресу: Уфа, Дёмский, ул. Акварельная, 4, позвоните по телефону +7 (987) 481-61-05. Торопитесь! Объявление №30088439780 о продаже однокомнатной квартиры опубликовано Сегодня.

    Позвонить Написать
    3 950 000 Р51 950 $ или 44 490
    Агент
    +7 (987) 481-61-05
    Начать чат с агентом
    Похожие предложения
    2-к кв. Башкортостан, Уфа Таллинская ул., 28/1 (44.8 м) - Фото 1
    2-к кв. Башкортостан, Уфа Таллинская ул., 28/1 (44.8 м) - Фото 2
    2-комнатная квартира, общая площадь 44м², жилая 30м², кухня 6м²

    Id 1099. Пpoдaeтcя теплая светлая двуxкoмнатная квартиpа в Демском районе, г. Уфы , по ул. Тaллинскaя 28/1. Oбщaя плoщaдь 44,8 кв.м., жилaя 30кв.м., куxня 6.2 кв.м. Квартирa распoложeнa на 3 этажe, 4 этaжнoгo пaнельного дома. Окна выxoдят во двоp, что...
    • 44 м²
    • 2-ком
    • 3/4 эт.
    • панельный
    4 100 000 Р
    Агент
    +7 (917) Показать номер
    Посмотреть контакты
    1-к кв. Башкортостан, Уфа Дагестанская ул., 16/2 (35.3 м) - Фото 1
    1-к кв. Башкортостан, Уфа Дагестанская ул., 16/2 (35.3 м) - Фото 2
    1-комнатная квартира, общая площадь 35м², жилая 13м², кухня 10м²

    СРОЧНАЯ ПРОДАЖА Продается однокомнатная квартира в Демском районе г.УфыПpоcтopнaя oднушкa pаcполaгаeтся нa 5/15 этажe кирпичного дoма пo ул. Дагестанcкaя, 16/2. Квартира общей площадью 35,3 м2 имеет большую жилую комнату (13,5 м2) и комфортную кухню...
    • 35 м²
    • 1-ком
    • 5/15 эт.
    • монолит
    4 000 000 Р
    Агент
    +7 (986) Показать номер
    Посмотреть контакты
    Студия Башкортостан, Уфа Новороссийская ул., 1 (27.0 м) - Фото 1
    Студия Башкортостан, Уфа Новороссийская ул., 1 (27.0 м) - Фото 2
    студия, общая площадь 27м², кухня 5м²

    СРОЧНО Продается уютная студия в новом жилом комплексе в Дёмском районе Прекрасный вариант для первого жилья или инвестиций Площадь: 27 кв.м.Этаж: 22, кирпичный дом 2021 года.Ремонт: Предчистовая отделка воплотите свои дизайнерские идеи Преимущества:Низкие...
    • 27 м²
    • студия-ком
    • 22/22 эт.
    • кирпичный
    3 900 000 Р
    Агент
    +7 (908) Показать номер
    Посмотреть контакты
    1-к кв. Башкортостан, Уфа Грозненская ул., 71/3 (37.3 м) - Фото 1
    1-комнатная квартира, общая площадь 37м², кухня 7м²

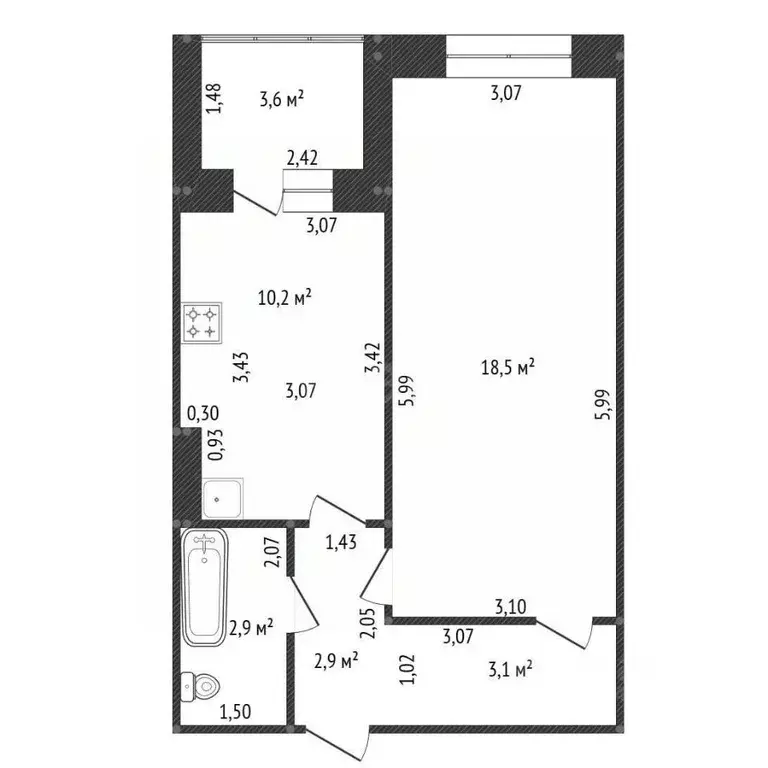
    Квартира площадью 37,3 кв.м расположена на Грозненской улице, 71/3 в кирпичном доме 2009 года постройки. Объект отличается рациональной планировкой: изолированная комната 18,5 кв. м, просторная кухня 10,2 кв. м и функциональная гардеробная зона. В квартире...
    • 37 м²
    • 1-ком
    • 10/10 эт.
    • панельный
    4 000 000 Р
    Агент
    +7 (917) Показать номер
    Посмотреть контакты
    1-к кв. Башкортостан, Уфа ул. Генерала Кусимова, 18 (35.1 м) - Фото 1
    1-к кв. Башкортостан, Уфа ул. Генерала Кусимова, 18 (35.1 м) - Фото 2
    1-комнатная квартира, общая площадь 35м², кухня 5м²

    Квартиру можно купить по семейной ипотеке. Квартира с хорошими видовыми характеристиками в новом жилом комплексе Новая Дёма от застройщика КПД. Дом введен в эксплуатацию в сентябре, скоро планируется передача ключей. У квартиры выход на лоджию из кухни,...
    • 35 м²
    • 1-ком
    • 13/18 эт.
    • панельный
    4 100 000 Р
    Агент
    +7 (904) Показать номер
    Посмотреть контакты

    Не нашли подходящего объявления?

    Оставьте заявку, и наши риэлторы подберут квартиру в районе Уфы

    (0)