Реализация объекта недвижимости приостановлена

Информация о квартире

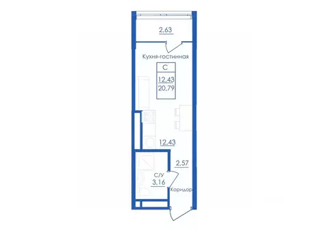
17.0 м2
Площадь
1
Комната
10
Этаж
19
Этажность
Развернуть

1-к кв. Башкортостан, Уфа ул. Адмирала Макарова, 29 (17.71 м)

Продаются 1-комнатные апартаменты в строящемся доме (Секция В), срок сдачи: I-кв. 2026, общей площадью 17.71 кв.м., на 10 этаже. IDЕЯ - это идеальное решение для покупателей недвижимости, которые ищут качественное новое жильё в развитом районе Уфы. Дом расположен всего в 5 минутах от Проспекта Октября и Городского дворца культуры. Отсюда легко добраться до центра и северной части города: УГНТУ, Парка Победы и стадиона Нефтяник . IDЕЯ представляет новый формат городского жилья - жилые апартаменты, которые от обычных квартир отличает ряд выгодных преимуществ. Покупателям доступен широкий выбор планировок: от компактных студий типа старт до многокомнатных апартаментов типа комфорт . Полезная площадь в жилых апартаментах задействована максимально эффективно и покупателям не придётся переплачивать за неиспользуемые метры. В цокольном этаже IDЕЯ предусмотрены кладовые помещения, которые жильцы смогут использовать для хранения инструментов и сезонных вещей. Это решение также помогает сэкономить на покупке жилья, не снижая уровень комфорта. Большинство планировок доступны в черновой и в чистовой отделке, а готовые дизайн-проекты помогут вам создать уютный и стильный интерьер. Проект строительства IDЕЯ отвечает техническим требованиям к жилым помещениям, совмещая их с планировочными преимуществами апартаментов. Инфраструктура. Развитый район в северной части Проспекта Октября. Рядом Городской Дворец Культуры, ЗАГС, парки и социальные объекты. Транспорт. Рядом с домом две автобусные остановки и трамвайная линия. Прямой выезд на Проспект Октября, в Центр, Инорс и Черниковку. Окружение. В шаговой доступности: продуктовые и промтоварные магазины, салоны услуг и медицинские центры. Безопасность. В IDЕЯ установлена современная система контроля доступа и противопожарная система.

Читать полностью

    Реализация объекта недвижимости приостановлена

    Не нашли подходящего объявления?

    Оставьте заявку, и наши риэлторы подберут квартиру в новостройке в районе Уфы

    (0)