6 188 220 Р 76 440 $ или 65 880

Информация о квартире

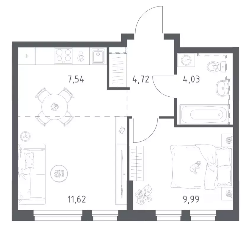
55 м2
Площадь
2
Комнаты
16
Этаж
18
Этажность

Дополнительная информация

Тип дома
панельный
Развернуть
Агент
+7 (800) 333-03-93
Начать чат с агентом

2-к кв. Башкортостан, Уфа Дема жилрайон, Новая Дема жилой комплекс ...

Продаётся 2-комнатная квартира в строящемся доме (корпус 1.3.1 (секции А,Б,В) ), срок сдачи: IV-кв. 2026, общей площадью 55.8 кв.м., на 16 этаже. ЖК Новая Демаасполагается в границах Демского района городского округа город Уфа Республики Башкортостан, который является одним из самых экологически чистых и активно развивается: возводятся современные жилые микрорайоны, происходят значительные изменения в дорожно-транспортной инфраструктуре. Производственный потенциал района является одной из отправных точек для редевелопмента этих территорий. Неоспоримое преимущество, позволяющее выделить данную территорию среди других городских локаций - географическое положение. Новая Дема обладает уникальными ресурсами, способным обеспечить жителей города Уфы не только качественной средой для жизни, но и стать новым центром деловой, общественной и культурной занятости населения. Новая Дема - это территория здорового образа жизни во всех ее проявлениях. Активные занятия на свежем воздухе или спокойное времяпрепровождение в тиши городского парка - инфраструктура района предполагает комфорт в любой ситуации. Важной частью системы кварталов являются велосипедные маршруты, которые служат как для связи между разными частями Новой Демы, так и для ведения активного образа жизни. Безопасные и удобные веломаршруты пройдут по наиболее проходным улицам района, что даст возможность их использования максимальным количеством жителей. Новая Дема - это огромная территория, объединенная не только транспортной и социальной, но и зеленой инфраструктурой . Важными элементами ее являются открытые общественные площадки, парковые зоны, зеленые коридоры, места отдыха и активностей, пешеходные маршруты и велодорожки. Основными принципами, выбранными для формирования инфраструктуры, выбраны комфорт, безопасность и качество. Школы и детские сады Новой Демы являются центрами кварталов, расположенными в глубине дворов и формирующими точки притяжения. Это не просто образовательные учреждения, а важные структурные элементы комфортной среды. В рамках развития транспортной инфраструктуры будут созданы новые пешеходные маршруты, не пересекающиеся с автомобильными и внутриквартальными дорогами, получит развитие железнодорожная сеть, будет построен ТПУ Новая Дема , который станет центром нового транспортного городского узла. Микрорайоны Новой Демы будут состоять из 11-ти разнообразных кварталов, каждый с индивидуальным стилем. Нам важно, чтобы каждый район обрёл свою индивидуальность, а также сохранял в себе атмосферу заявленного стиля жизни: Несколько вариантов архитектурных стратегий для различных типов кварталов.Зонирование кварталов по типу укладов городской жизни - город для всех и каждого.Создание тематических пространств и кластеров.Формирование новых общественных пространств разных форматов - от городских площадей до бульваров.Все многообразие жизни современного мегаполиса в одном проекте.

Читать полностью
    Позвонить Написать
    6 188 220 Р76 440 $ или 65 880
    Агент
    +7 (800) 333-03-93
    Начать чат с агентом
    Похожие предложения в Уфе
    1-к кв. Башкортостан, Уфа бул. Яркий (40.97 м) - Фото 1
    1-к кв. Башкортостан, Уфа бул. Яркий (40.97 м) - Фото 2
    1-комнатная квартира, общая площадь 40м², жилая 14м²

    Самый семейный и масштабный проект в регионе Экогород Яркий — место, где соединяются удобства города и естественная красота природы. 5 кварталов сданы и заселены. Еще 3 — в активной стадии строительства.Почему сюда переезжают, чтобы остаться навсегда?...
    • 40 м²
    • 1-ком
    • 15/20 эт.
    6 268 410 Р
    Агент
    +7 (984) Показать номер
    Посмотреть контакты
    1-к кв. Башкортостан, Уфа бул. Яркий (40.97 м) - Фото 1
    1-к кв. Башкортостан, Уфа бул. Яркий (40.97 м) - Фото 2
    1-комнатная квартира, общая площадь 40м², жилая 14м²

    Самый семейный и масштабный проект в регионе Экогород Яркий — место, где соединяются удобства города и естественная красота природы. 5 кварталов сданы и заселены. Еще 3 — в активной стадии строительства.Почему сюда переезжают, чтобы остаться навсегда?...
    • 40 м²
    • 1-ком
    • 7/20 эт.
    6 268 410 Р
    Агент
    +7 (984) Показать номер
    Посмотреть контакты
    1-к кв. Башкортостан, Уфа ул. Рашита Манурова (37.9 м) - Фото 1
    1-к кв. Башкортостан, Уфа ул. Рашита Манурова (37.9 м) - Фото 2
    1-комнатная квартира, общая площадь 37м², жилая 21м²

    Строим кварталы для жизни с заботой о будущем. Предлагается 1-комнатная квартира комфорт-класса площадью 37.9 кв.м в корпусе 2КВ на 11-м этаже, в жилом комплексе Сабанеева 125 .Выбирайте планировку, чтобы сразу почувствовать себя дома: от уютной студии...
    • 37 м²
    • 1-ком
    • 11/12 эт.
    • монолит
    6 168 414 Р
    Агент
    +7 (992) Показать номер
    Посмотреть контакты
    1-к кв. Башкортостан, Уфа ул. Рашита Манурова (37.9 м) - Фото 1
    1-к кв. Башкортостан, Уфа ул. Рашита Манурова (37.9 м) - Фото 2
    1-комнатная квартира, общая площадь 37м², жилая 21м²

    Строим кварталы для жизни с заботой о будущем. Предлагается 1-комнатная квартира комфорт-класса площадью 37.9 кв.м в корпусе 2КВ на 8-м этаже, в жилом комплексе Сабанеева 125 .Выбирайте планировку, чтобы сразу почувствовать себя дома: от уютной студии...
    • 37 м²
    • 1-ком
    • 8/12 эт.
    • монолит
    6 123 086 Р
    Агент
    +7 (992) Показать номер
    Посмотреть контакты
    2-к кв. Башкортостан, Уфа Дема жилрайон, Новая Дема жилой комплекс ... - Фото 1
    2-комнатная квартира, общая площадь 55м²

    Продаётся 2-комнатная квартира в строящемся доме (корпус 1.3.1 (секции А,Б,В) ), срок сдачи: IV-кв. 2026, общей площадью 55.8 кв.м., на 14 этаже. ЖК Новая Демаасполагается в границах Демского района городского округа город Уфа Республики Башкортостан,...
    • 55 м²
    • 2-ком
    • 14/18 эт.
    • панельный
    6 249 600 Р
    Агент
    +7 (800) Показать номер
    Посмотреть контакты

    Не нашли подходящего объявления?

    Оставьте заявку, и наши риэлторы подберут квартиру в новостройке в районе Уфы

    (0)