6 898 500 Р 87 160 $ или 75 120

Информация о квартире

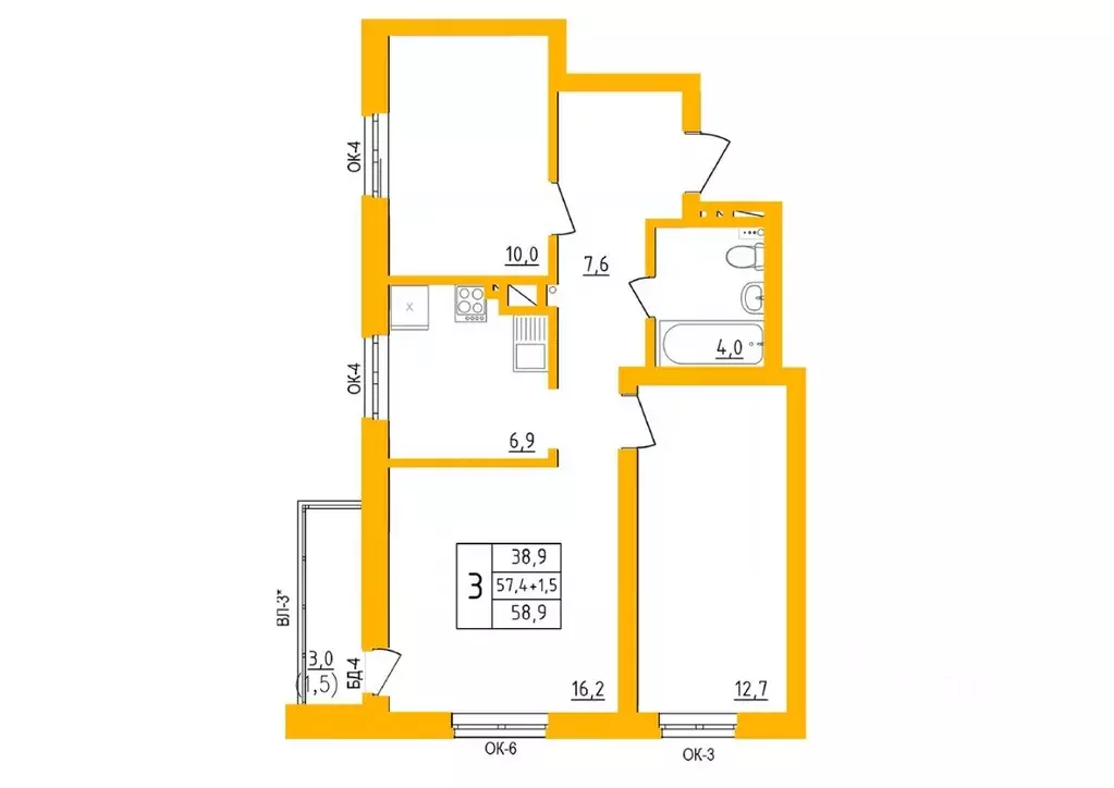
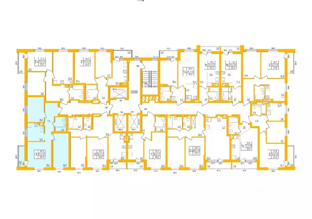
65 м2
Площадь
3
Комнаты
4
Этаж
24
Этажность
Развернуть
Агент
+7 (800) 333-03-93
Начать чат с агентом

3-к кв. Башкортостан, Уфа ул. Ивана Спатара, 14 (65.7 м)

Продаётся 3-комнатная квартира в строящемся доме (квартал 3 дом 1), срок сдачи: I-кв. 2026, общей площадью 65.7 кв.м., на 4 этаже. Жилой комплекс Город природы - крупнейший в Уфе градостроительный проект комплексного развития территории в 8 км от центра города. Свободный от застройки новый район площадью 266 га располагается в экологически благоприятной природной зоне непосредственно на левом берегу старицы реки Белой. Концепция проекта Город природы , разработанная с участием международных архитекторов и крупнейших российских риелторских компаний, предполагает реализацию современного многоформатного проекта с жилой, коммерческой, офисной, спортивной составляющей и комфортным благоустройством. Отличительные черты проекта - уникальность концепции, расположение, масштабность застройки, разнообразие спортивной и социальной инфраструктуры, потенциал развития транспортной сети. Одной из важных составляющих гармоничной жизни в микрорайоне является социальная инфраструктура. Проектом предусмотрено достаточное количество социальных объектов - школ, детских садов, медицинских и спортивных учреждений. Уже в первой очереди строительства будет построен современный детский сад на 190 мест. В Городе природы будет, чем дышать - озелененные территории составляют 30 всей площади застройки, по границам участка протекает два ручья, а на правом берегу старицы реки Белой расположен огромный лесной массив полуострова Козарез площадью 900 га. Основной упор при разработке концепции проекта сделан на создании такой среды обитания, в которой люди всех возрастов будут чувствовать себя комфортно. На данный момент это уникальный продукт, до сих пор не представленный на рынке недвижимости Уфы - пример ценностно-ориентированного девелопмента, когда при разработке проекта во главу угла ставятся ценности более высокого, нематериального порядка, составляющие основу счастливой и гармоничной жизни. Ключевой идеей Города природы является формирование семейного района с развитой спортивной и рекреационной составляющей. Развитие рекреационных зон предоставит не только жителям Города природы , но и всем горожанам уникальное пространство для отдыха, центром притяжения которого станут парк отдыха на территории 50 га с летним театром и благоустроенная набережная с кафе, ресторанами, прогулочной зоной, причалом и собственным пляжем. Для любительского и профессионального спорта в Городе природыазработан уникальный спортивный кластер из спортивно-оздоровительных объектов общей площадью 112 000 кв. м. Он включает в себя футбольные поля, теннисные корты, бассейн, ледовый дворец, крупный спортивный комплекс. Генпланом развития Уфы предусмотрено создание дорожной сети районного значения со строительством хордовой магистрали от шоссе Дема-Затон до центральной части города по незаселенным районам. В рамках общегородской программы развития общественного транспорта будет создан узел автобусного сообщения, а также сформированы районные маршруты троллейбусов. Район обладает потенци

Читать полностью
    Позвонить Написать
    6 898 500 Р87 160 $ или 75 120
    Агент
    +7 (800) 333-03-93
    Начать чат с агентом
    Похожие предложения
    1-к кв. Башкортостан, Уфа ул. Ивана Спатара, 14 (37.49 м) - Фото 1
    1-к кв. Башкортостан, Уфа ул. Ивана Спатара, 14 (37.49 м) - Фото 2
    1-комнатная квартира, общая площадь 37м², кухня 13м²

    Город природы крупнейший в Уфе градостроительный проект комплексного развития территории в 8 км от центра города.Свободный от застройки новый район площадью 266 га располагается в экологически благоприятной природной зоне непосредственно на левом берегу...
    • 37 м²
    • 1-ком
    • 18/24 эт.
    6 898 160 Р
    Агент
    +7 (931) Показать номер
    Посмотреть контакты
    1-к кв. Башкортостан, Уфа бул. Яркий (47.76 м) - Фото 1
    1-к кв. Башкортостан, Уфа бул. Яркий (47.76 м) - Фото 2
    1-комнатная квартира, общая площадь 47м², жилая 14м²

    Самый семейный и масштабный проект в регионе Экогород Яркий — место, где соединяются удобства города и естественная красота природы. 5 кварталов сданы и заселены. Еще 3 — в активной стадии строительства.Почему сюда переезжают, чтобы остаться навсегда?...
    • 47 м²
    • 1-ком
    • 7/20 эт.
    6 972 960 Р
    Агент
    +7 (984) Показать номер
    Посмотреть контакты
    Студия Башкортостан, Уфа Зеленая Роща жилрайон, Терле Парк жилой ... - Фото 1
    Студия Башкортостан, Уфа Зеленая Роща жилрайон, Терле Парк жилой ... - Фото 2
    студия, общая площадь 29м², жилая 14м², кухня 5м²

    Продается квартира в ЖК Terle Park студия на 27 этаже 29 этажного дома. Общая площадь: 29.07 кв.м. Высота потолков 2.95 м. Срок сдачи 3 квартал 2026 г. Вид на лес. С отделкой White box. Эскроу-счет. Застройщик ГК Садовое кольцо . -РасположениеTerle...
    • 29 м²
    • студия-ком
    • 27/29 эт.
    • монолит
    6 866 334 Р
    Агент
    +7 (977) Показать номер
    Посмотреть контакты
    3-к кв. Башкортостан, Уфа Инорс-4Б мкр, Акварель жилой комплекс (58.7 ... - Фото 1
    3-к кв. Башкортостан, Уфа Инорс-4Б мкр, Акварель жилой комплекс (58.7 ... - Фото 2
    3-комнатная квартира, общая площадь 58м²

    Продаётся 3-комнатная квартира в строящемся доме (литер 9), срок сдачи: II-кв. 2027, общей площадью 58.7 кв.м., на 18 этаже. Жилой комплекс Акварель занимает обширную территорию в 25га на живописном изгибе реки Уфа .Квартал располагается в активно...
    • 58 м²
    • 3-ком
    • 18/27 эт.
    6 867 900 Р
    Агент
    +7 (977) Показать номер
    Посмотреть контакты
    3-к кв. Башкортостан, Уфа Инорс-4Б мкр, Акварель жилой комплекс (58.4 ... - Фото 1
    3-к кв. Башкортостан, Уфа Инорс-4Б мкр, Акварель жилой комплекс (58.4 ... - Фото 2
    3-комнатная квартира, общая площадь 58м²

    Продаётся 3-комнатная квартира в строящемся доме (литер 9), срок сдачи: II-кв. 2027, общей площадью 58.4 кв.м., на 27 этаже. Жилой комплекс Акварель занимает обширную территорию в 25га на живописном изгибе реки Уфа .Квартал располагается в активно...
    • 58 м²
    • 3-ком
    • 27/27 эт.
    6 832 800 Р
    Агент
    +7 (977) Показать номер
    Посмотреть контакты

    Не нашли подходящего объявления?

    Оставьте заявку, и наши риэлторы подберут квартиру в новостройке в районе Уфы

    (0)