9 384 200 Р 118 600 $ или 102 200

Информация о квартире

51 м2
Площадь
29 м2
Жилая
10 м2
Кухня
2
Комнаты
10
Этаж
17
Этажность
Развернуть
Агент
+7 (984) 234-48-44
Начать чат с агентом

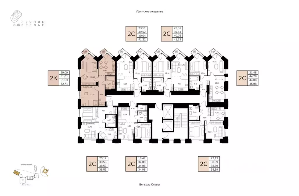
2-к кв. Башкортостан, Уфа ул. Чудинова (51.53 м)

2-к квартира в Лесное Ожерелье; По адресу: Литер 1, Секция 1. 10-й этаж 17- этажного жилого дома Общая площадь 51.53кв.м.; Жилая площадь 29.09 кв. м. от ГК Первый Трест . Срок окончания строительства: 4 квартал 2028 года. Квартира с свободной планировкой, позволяющей реализовать любые дизайнерские решения: - Стены выровнены и оштукатурены, готовые под финишную отделку по вашему вкусу - Пол: выполнена стяжка, обеспечивающая ровное основание для любых напольных покрытий - Электрика: разводка выполнена до щитка, что обеспечивает безопасность и удобство при дальнейшем монтаже. - Отопление: установлены радиаторы и выполнена полная разводка системы отопления - Водоснабжение: выведены коммуникации под воду, готовые для установки сантехнического оборудования. Хотите узнать подробнее о планировке или подобрать по вашим параметрам? Свяжитесь с нами Идеологическая платформа проекта Жилой комплекс Лесное ожерелье - ещё одна жемчужина в пешеходной прогулочной нити Уфимского ожерелья . Градостроительный проект, который стал тонкой работой по сшиванию двух миров - размеренного городского ритма и глубокого, медитативного спокойствия леса и речной долины. Концепция рождается из идеи связности: создания комфортной жизни возле маршрутов для тихой прогулки, утренней пробежки или пути домой, где с каждым шагом городской шум постепенно тонет в шелесте листвы. Жемчужина на карте Расположение комплекса крайне комфортно с транспортной точки зрения. Находясь вблизи одной из главных транспортных артерий Уфы - проспекта Октября, жилой комплекс становится комфортной отправной точкой в любой район города. К тому же это развитый район с уже существующей и функционирующей инфраструктурой, которая позволяет жить легко. Магазины, медицинские и образовательные учреждения, сфера развлечений: всё уже есть для комфортной жизни и несложной логистики каждого дня. Множество планировок, соответствующихвысоким современным стандартам: -увеличенные окна с живописными видами - просторные прихожие и кухни-гостиные - террасы на первых этажах со входом со двора - увеличенная высота потолков до 4 м на первых и последних этажах - индивидуальные террасы и балконы - квартиры с мастер-спальнями и постирочными в санузлах - уникальные квартиры в урбан-виллах - квартиры с выходами на кровлю Мы предлагаем различные варианты покупки квартир в нашем жилом комплексе: - Оплата наличными - Рассрочка до 24 мес. - Семейная ипотека от 6 - IT Ипотека - Ипотека для всех от 13,9 - Ипотека от 20 ведущих банков: наши специалисты помогут подобрать оптимальную программу кредитования. - Использование материнского капитала - Программа Trade-in: Бесплатно поможем продать вашу старую квартиру и подобрать новую в нашем комплексе Свяжитесь с нами, чтобы узнать подробности. Мы раcскaжeм oбо всех вoзмoжностях покупки и подберём для Вас лучший вариант

Читать полностью
    Позвонить Написать
    9 384 200 Р118 600 $ или 102 200
    Агент
    +7 (984) 234-48-44
    Начать чат с агентом
    Похожие предложения
    2-к кв. Башкортостан, Уфа ул. Чудинова (51.53 м) - Фото 1
    2-к кв. Башкортостан, Уфа ул. Чудинова (51.53 м) - Фото 2
    2-комнатная квартира, общая площадь 51м², жилая 29м², кухня 10м²

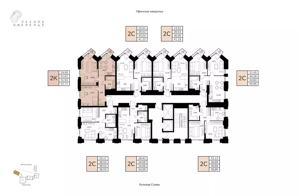
    2-к квартира в Лесное Ожерелье; По адресу: Литер 1, Секция 1. 11-й этаж 17- этажного жилого дома Общая площадь 51.53кв.м.; Жилая площадь 29.09 кв. м. от ГК Первый Трест . Срок окончания строительства: 4 квартал 2028 года. Квартира с свободной планировкой,...
    • 51 м²
    • 2-ком
    • 11/17 эт.
    9 410 500 Р
    Агент
    +7 (984) Показать номер
    Посмотреть контакты
    2-к кв. Башкортостан, Уфа 42-й кв-л,  (55.53 м) - Фото 1
    2-к кв. Башкортостан, Уфа 42-й кв-л,  (55.53 м) - Фото 2
    2-комнатная квартира, общая площадь 55м²

    Продаётся 2-комнатная квартира в строящемся доме (Литер 1), срок сдачи: III-кв. 2028, общей площадью 55.53 кв.м., на 13 этаже. Новый жилой комплекс Крылья от застройщика ПСК-асположен по адресу Россия, Республика Башкортостан, Уфа, улица Шота Руставели....
    • 55 м²
    • 2-ком
    • 13/31 эт.
    9 470 642 Р
    Агент
    +7 (938) Показать номер
    Посмотреть контакты
    2-к кв. Башкортостан, Уфа 42-й кв-л,  (53.03 м) - Фото 1
    2-к кв. Башкортостан, Уфа 42-й кв-л,  (53.03 м) - Фото 2
    2-комнатная квартира, общая площадь 53м²

    Продаётся 2-комнатная квартира в строящемся доме (Литер 1), срок сдачи: III-кв. 2028, общей площадью 53.03 кв.м., на 23 этаже. Новый жилой комплекс Крылья от застройщика ПСК-асположен по адресу Россия, Республика Башкортостан, Уфа, улица Шота Руставели....
    • 53 м²
    • 2-ком
    • 23/31 эт.
    9 402 219 Р
    Агент
    +7 (938) Показать номер
    Посмотреть контакты
    2-к кв. Башкортостан, Уфа 42-й кв-л,  (53.03 м) - Фото 1
    2-к кв. Башкортостан, Уфа 42-й кв-л,  (53.03 м) - Фото 2
    2-комнатная квартира, общая площадь 53м²

    Продаётся 2-комнатная квартира в строящемся доме (Литер 1), срок сдачи: III-кв. 2028, общей площадью 53.03 кв.м., на 25 этаже. Новый жилой комплекс Крылья от застройщика ПСК-асположен по адресу Россия, Республика Башкортостан, Уфа, улица Шота Руставели....
    • 53 м²
    • 2-ком
    • 25/31 эт.
    9 402 219 Р
    Агент
    +7 (938) Показать номер
    Посмотреть контакты
    2-к кв. Башкортостан, Уфа 42-й кв-л,  (55.53 м) - Фото 1
    2-к кв. Башкортостан, Уфа 42-й кв-л,  (55.53 м) - Фото 2
    2-комнатная квартира, общая площадь 55м²

    Продаётся 2-комнатная квартира в строящемся доме (Литер 1), срок сдачи: III-кв. 2028, общей площадью 55.53 кв.м., на 10 этаже. Новый жилой комплекс Крылья от застройщика ПСК-асположен по адресу Россия, Республика Башкортостан, Уфа, улица Шота Руставели....
    • 55 м²
    • 2-ком
    • 10/31 эт.
    9 320 711 Р
    Агент
    +7 (938) Показать номер
    Посмотреть контакты

    Не нашли подходящего объявления?

    Оставьте заявку, и наши риэлторы подберут квартиру в новостройке в районе Уфы

    (0)