Реализация объекта недвижимости приостановлена

Информация о квартире

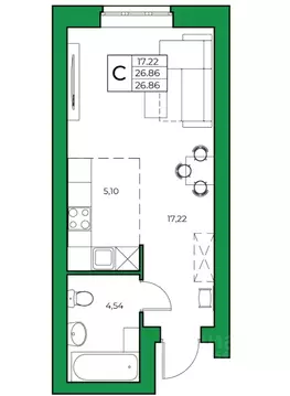
31.0 м2
Площадь
1
Комната
6
Этаж
32
Этажность
Развернуть

1-к кв. Башкортостан, Уфа Революционная ул., 39/4 (31.05 м)

Продаются 1-комнатные апартаменты в строящемся доме (литер 2), срок сдачи: IV-кв. 2026, общей площадью 31.05 кв.м., на 6 этаже. Апартаменты Central Park находятся в центре Уфы на пересечении улиц Мустая Карима и Революционной. Здесь город живет в своем динамичном ритме и здесь же заключает вас в объятия парка. В зоне ближайшей доступности - ведущие банки, офисные центры, государственные учреждения, гимназии, университеты, детские образовательные центры, рестораны, парки и прогулочные зоны. Central Park находится на пересечении многих интересов современных горожан: обладать недвижимостью в центре, но быть в тишине и иметь возможность выйти в парк. Важно, чтобы рядом были лучшие гимназии, чтобы дети посещали кружки и секции и не тратили время на дорогу, и чтобы двор был безопасным и интересным. А еще хочется, чтобы центр плавно перетекал в парк. Все это мы реализовали в нашем проекте.

Читать полностью

    Реализация объекта недвижимости приостановлена

    Не нашли подходящего объявления?

    Оставьте заявку, и наши риэлторы подберут квартиру в новостройке в районе Уфы

    (0)