Реализация объекта недвижимости приостановлена

Информация о квартире

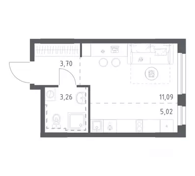
19.0 м2
Площадь
7.0 м2
Жилая
студия
Комнат
16
Этаж
20
Этажность
Развернуть

Квартира-студия: Уфа, микрорайон Юрюзань, ЖК Эльбрус, ск1 (19.28 м)

Продажа квартир от застройщика в новом жилом комплексе «Эльбрус Сдача в 2027 году. Кирпичный дом в самом зеленом районе Уфы. Рассрочка без процентов Продается квартира-студия в ЖК «Эльбрус : общая площадь квартиры — 19,28 кв.м., прихожая — 2,53 кв.м., жилая зона — 12,44 кв.м., санузел совмещенный — 2,58 кв.м., лоджия — 3,45 кв.м., высота потолков — 2.5 метра. Отделка предчистовая: сухая стяжка пола, стены выровнены по маякам, улучшенная штукатурка (светлая), металлическая усиленная входная дверь. Проведена разводка: розетки, выключатели. Позвоните или напишите сообщение, чтобы узнать подробнее о жилом комплексе. Мы проконсультируем и подберем планировку, подходящую по всем вашим параметрам Преимущества В строящемся жилом комплексе «Эльбрус вы можете купить квартиру от застройщика на самых выгодных условиях и с большим количеством преимуществ: Дом из кирпича. Благоустроенная территория. Готовая и развитая инфраструктура. Колясочная на цокольном этаже. Закрытая детская игровая внутри дома. Коворкинг и фитнес-зал в доме. Паркинг Широкий выбор квартир: от небольших и уютных однокомнатных до просторных четырехкомнатных квартир с террасами. Добавьте объявление в избранное, чтобы не потерять его

Читать полностью

    Реализация объекта недвижимости приостановлена

    Не нашли подходящего объявления?

    Оставьте заявку, и наши риэлторы подберут квартиру в новостройке в районе Уфы

    (0)