4 284 676 Р 55 830 $ или 47 460

Информация о квартире

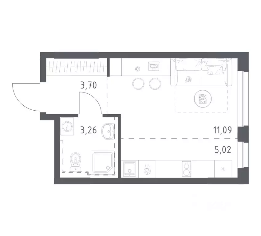
23 м2
Площадь
11 м2
Жилая
студия
Комнат
10
Этаж
17
Этажность

Дополнительная информация

Тип дома
монолит
Развернуть
Агент
+7 (992) 704-74-75
Начать чат с агентом

Студия Башкортостан, Уфа Дема жилрайон, Новая Дема жилой комплекс, ...

Строим кварталы для жизни с заботой о будущем. Предлагается студия комфорт-класса площадью 23.07 кв.м в корпусе 1КВ на 10-м этаже, в жилом комплексе Сабанеева 125 .Выбирайте планировку, чтобы сразу почувствовать себя дома: от уютной студии до 4-комнатных квартир с гардеробной и мастер-спальней. На последних этажах можно выбрать варианты с увеличенной высотой потолков. Отделка будет готова сразу: мы выбрали светлые нейтральные тона для обоев, ламината и плитки — оптимальный вариант для любых интерьерных идей. Заранее проведем все коммуникации, установим качественную сантехнику и окна. Вам останется только переехать, расставить мебель и надеть мягкие тапочки.А если хотите реализовать собственные интерьерные идеи — выбирайте вариант без отделки. Приобрести квартиры возможно по специальным акциям от застройщика, с текущими условиями акций можно ознакомиться в блоке Акций .Цена динамическая и может отличаться, уточняйте актуальность у застройщика. Урбан Мартен — место, где культура Башкортостана встречается с современной жизнью.В названии проекта — английский перевод слова куница ( martn ). Это отсылка к историческому символу Уфы и отражение нашей философии: бережное отношение к дому и тесная связь с природой и культурой края.Здесь в каждом элементе — от изящных деталей в интерьерах до современных материалов в МОП — чувствуется дух Башкортостана. А дворы созданы не только для отдыха, но и для творчества: жители могут вместе общаться и создавать свое уникальное пространство. Урбан Мартен — это гармония прошлого и настоящего, где городская жизнь естественно переплетается с природой.Жизнь в Урбан Мартен освобождает от лишних поездок и долгих сборов. Здесь все, что нужно для комфортной жизни, находится на расстоянии короткой прогулки. На первых этажах домов уже открыты кофейни, салоны красоты и магазины — спускайтесь на лифте за свежей выпечкой, продуктами к ужину или на тренировку. Продуманные планировки от небольших студий до просторных четырехкомнатных квартир. Отделка на выбор: готовая, предчистовая или вариант без нее.

Читать полностью
    Позвонить Написать
    4 284 676 Р55 830 $ или 47 460
    Агент
    +7 (992) 704-74-75
    Начать чат с агентом
    Похожие предложения в Уфе
    1-к кв. Башкортостан, Уфа Глумилино-1 мкр, Новатор жилой комплекс ... - Фото 1
    1-к кв. Башкортостан, Уфа Глумилино-1 мкр, Новатор жилой комплекс ... - Фото 2
    1-комнатная квартира, общая площадь 20м², жилая 6м², кухня 5м²

    1-к квартира в Новатор; По адресу: Литер 1, Секция 4. 10-й этаж 19- этажного жилого дома Общая площадь 20.02кв.м.; Жилая площадь 6.79 кв. м. от ГК Первый Трест . Срок окончания строительства: 1 квартал 2029 года. Просим представителей агентств недвижимости...
    • 20 м²
    • 1-ком
    • 10/19 эт.
    4 284 300 Р
    Агент
    +7 (938) Показать номер
    Посмотреть контакты
    1-к кв. Башкортостан, Уфа 8 Марта жилой комплекс (30.05 м) - Фото 1
    1-к кв. Башкортостан, Уфа 8 Марта жилой комплекс (30.05 м) - Фото 2
    1-комнатная квартира, общая площадь 30м², жилая 25м²

    Продается - студия в ЖК 8Марта от ГК Архстрой Групп . 25-й этаж 25-этажного жилого дома, общая площадь 30.05 кв.м., жилая площадь 16.8 кв.м. Отделка получистовая.
    • 30 м²
    • 1-ком
    • 25/25 эт.
    • кирпичный
    4 267 100 Р
    Агент
    +7 (984) Показать номер
    Посмотреть контакты
    Студия Башкортостан, Уфа Затон-Восточный жилрайон, Новаленд мкр,  ... - Фото 1
    Студия Башкортостан, Уфа Затон-Восточный жилрайон, Новаленд мкр,  ... - Фото 2
    студия, общая площадь 33м², жилая 16м², кухня 5м²

    Студия в ЖК Новаленд— компактно, стильно, продумано Эта квартира — идеальное решение для тех, кто хочет максимум комфорта на продуманной площади. Современная планировка позволяет создать уютное пространство для жизни, работы и отдыха. Почему это предложение...
    • 33 м²
    • студия-ком
    • 25/25 эт.
    4 320 000 Р
    Агент
    +7 (967) Показать номер
    Посмотреть контакты
    Студия Башкортостан, Уфа Затон-Восточный жилрайон, Новаленд мкр,  ... - Фото 1
    Студия Башкортостан, Уфа Затон-Восточный жилрайон, Новаленд мкр,  ... - Фото 2
    студия, общая площадь 33м², жилая 16м², кухня 5м²

    Студия в ЖК Новаленд— компактно, стильно, продумано Эта квартира — идеальное решение для тех, кто хочет максимум комфорта на продуманной площади. Современная планировка позволяет создать уютное пространство для жизни, работы и отдыха. Почему это предложение...
    • 33 м²
    • студия-ком
    • 23/25 эт.
    4 320 000 Р
    Агент
    +7 (967) Показать номер
    Посмотреть контакты
    Студия Башкортостан, Уфа Затон-Восточный жилрайон, Новаленд мкр,  ... - Фото 1
    Студия Башкортостан, Уфа Затон-Восточный жилрайон, Новаленд мкр,  ... - Фото 2
    студия, общая площадь 33м², жилая 15м², кухня 5м²

    Студия в ЖК Новаленд— компактно, стильно, продумано Эта квартира — идеальное решение для тех, кто хочет максимум комфорта на продуманной площади. Современная планировка позволяет создать уютное пространство для жизни, работы и отдыха. Почему это предложение...
    • 33 м²
    • студия-ком
    • 25/25 эт.
    4 320 000 Р
    Агент
    +7 (967) Показать номер
    Посмотреть контакты

    Не нашли подходящего объявления?

    Оставьте заявку, и наши риэлторы подберут квартиру в новостройке в районе Уфы

    (0)