9 884 018 Р 130 000 $ или 108 600

Информация о квартире

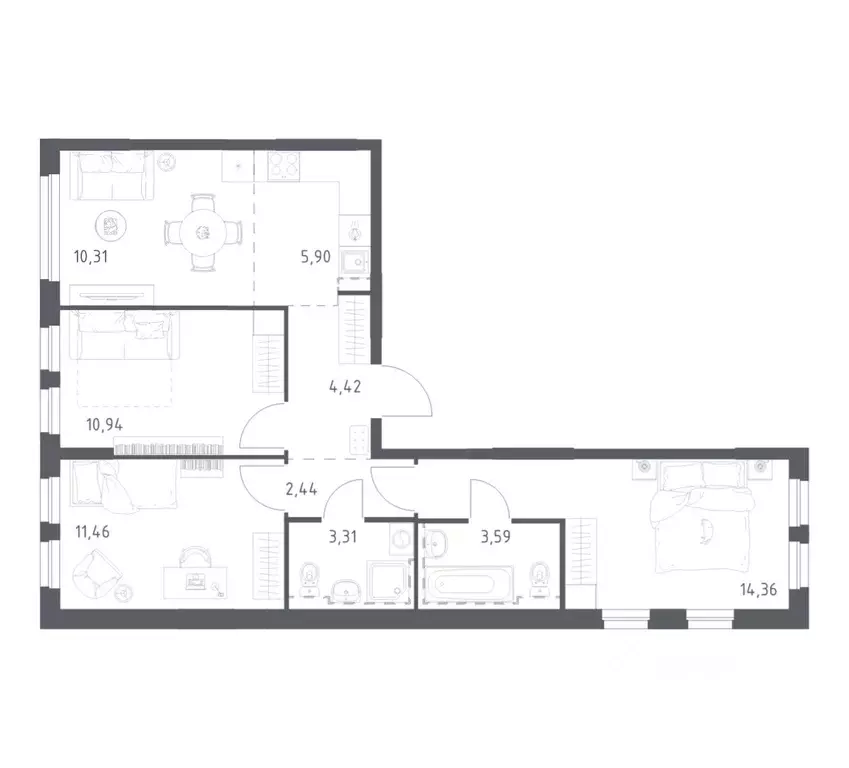
66 м2
Площадь
47 м2
Жилая
3
Комнаты
8
Этаж
12
Этажность

Дополнительная информация

Тип дома
монолит
Развернуть
Агент
+7 (992) 704-74-75
Начать чат с агентом

3-к кв. Башкортостан, Уфа ул. Рашита Манурова (66.73 м)

Строим кварталы для жизни с заботой о будущем. Предлагается 3-комнатная квартира комфорт-класса площадью 66.73 кв.м в корпусе 2КВ на 8-м этаже, в жилом комплексе Сабанеева 125 .Выбирайте планировку, чтобы сразу почувствовать себя дома: от уютной студии до 4-комнатных квартир с гардеробной и мастер-спальней. На последних этажах можно выбрать варианты с увеличенной высотой потолков. Отделка будет готова сразу: мы выбрали светлые нейтральные тона для обоев, ламината и плитки — оптимальный вариант для любых интерьерных идей. Заранее проведем все коммуникации, установим качественную сантехнику и окна. Вам останется только переехать, расставить мебель и надеть мягкие тапочки.А если хотите реализовать собственные интерьерные идеи — выбирайте вариант без отделки. Приобрести квартиры возможно по специальным акциям от застройщика, с текущими условиями акций можно ознакомиться в блоке Акций .Цена динамическая и может отличаться, уточняйте актуальность у застройщика.В жилом комплексе Урбан Мартен у вас будет собственная Уфа: домашняя, неторопливая, теплая. Здесь дети будут играть во дворе без машин в догонялки, собака сможет бегать за палкой по пляжу, а с соседями получится встречаться не только у лифта, но и на утренних занятиях йогой на зеленой лужайке рядом с домом. Жилой комплекс Урбан Мартен находится в Демском районе — самом тихом и зеленом в Уфе. Здесь можно открывать окна нараспашку, чтобы квартира наполнялась свежим воздухом, и наблюдать с балкона, как покачиваются макушки деревьев.

Читать полностью
    Позвонить Написать
    9 884 018 Р130 000 $ или 108 600
    Агент
    +7 (992) 704-74-75
    Начать чат с агентом
    Похожие предложения в Уфе
    3-к кв. Башкортостан, Уфа бул. Яркий (65.16 м) - Фото 1
    3-к кв. Башкортостан, Уфа бул. Яркий (65.16 м) - Фото 2
    3-комнатная квартира, общая площадь 65м², жилая 36м²

    Самый семейный и масштабный проект в регионе Экогород Яркий — место, где соединяются удобства города и естественная красота природы. 5 кварталов сданы и заселены. Еще 3 — в активной стадии строительства.Почему сюда переезжают, чтобы остаться навсегда?...
    • 65 м²
    • 3-ком
    • 9/20 эт.
    9 969 480 Р
    Агент
    +7 (984) Показать номер
    Посмотреть контакты
    3-к кв. Башкортостан, Уфа бул. Яркий (65.16 м) - Фото 1
    3-к кв. Башкортостан, Уфа бул. Яркий (65.16 м) - Фото 2
    3-комнатная квартира, общая площадь 65м², жилая 36м²

    Самый семейный и масштабный проект в регионе Экогород Яркий — место, где соединяются удобства города и естественная красота природы. 5 кварталов сданы и заселены. Еще 3 — в активной стадии строительства.Почему сюда переезжают, чтобы остаться навсегда?...
    • 65 м²
    • 3-ком
    • 8/20 эт.
    9 969 480 Р
    Агент
    +7 (984) Показать номер
    Посмотреть контакты
    3-к кв. Башкортостан, Уфа бул. Яркий (65.16 м) - Фото 1
    3-к кв. Башкортостан, Уфа бул. Яркий (65.16 м) - Фото 2
    3-комнатная квартира, общая площадь 65м², жилая 36м²

    Самый семейный и масштабный проект в регионе Экогород Яркий — место, где соединяются удобства города и естественная красота природы. 5 кварталов сданы и заселены. Еще 3 — в активной стадии строительства.Почему сюда переезжают, чтобы остаться навсегда?...
    • 65 м²
    • 3-ком
    • 10/20 эт.
    9 969 480 Р
    Агент
    +7 (984) Показать номер
    Посмотреть контакты
    3-к кв. Башкортостан, Уфа ул. Рашита Манурова (66.73 м) - Фото 1
    3-к кв. Башкортостан, Уфа ул. Рашита Манурова (66.73 м) - Фото 2
    3-комнатная квартира, общая площадь 66м², жилая 47м²

    Строим кварталы для жизни с заботой о будущем. Предлагается 3-комнатная квартира комфорт-класса площадью 66.73 кв.м в корпусе 2КВ на 12-м этаже, в жилом комплексе Сабанеева 125 .Выбирайте планировку, чтобы сразу почувствовать себя дома: от уютной студии...
    • 66 м²
    • 3-ком
    • 12/12 эт.
    • монолит
    9 996 040 Р
    Агент
    +7 (992) Показать номер
    Посмотреть контакты
    3-к кв. Башкортостан, Уфа ул. Рашита Манурова (66.73 м) - Фото 1
    3-к кв. Башкортостан, Уфа ул. Рашита Манурова (66.73 м) - Фото 2
    3-комнатная квартира, общая площадь 66м², жилая 47м²

    Строим кварталы для жизни с заботой о будущем. Предлагается 3-комнатная квартира комфорт-класса площадью 66.73 кв.м в корпусе 2КВ на 10-м этаже, в жилом комплексе Сабанеева 125 .Выбирайте планировку, чтобы сразу почувствовать себя дома: от уютной студии...
    • 66 м²
    • 3-ком
    • 10/12 эт.
    • монолит
    9 909 653 Р
    Агент
    +7 (992) Показать номер
    Посмотреть контакты

    Не нашли подходящего объявления?

    Оставьте заявку, и наши риэлторы подберут квартиру в новостройке в районе Уфы

    (0)