Реализация объекта недвижимости приостановлена

Информация о квартире

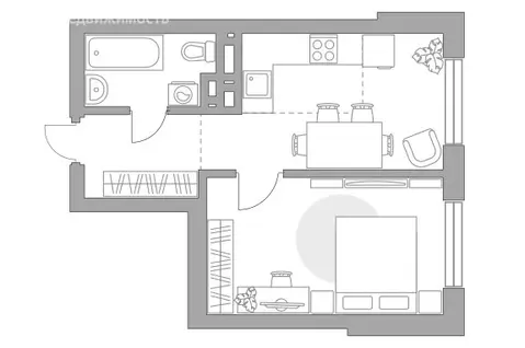
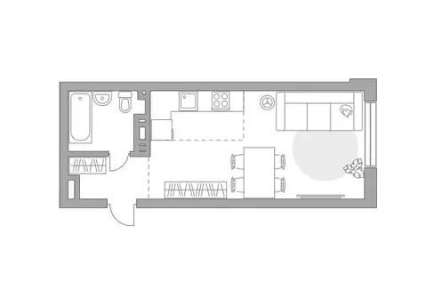
45.0 м2
Площадь
18.0 м2
Жилая
21.0 м2
Кухня
2
Комнаты
6
Этаж
7
Этажность
Развернуть

2-к кв. Башкортостан, Уфа Кузнецовский Затон мкр, ЖК Первый остров, ...

2-к квартира в Первый Остров; По адресу: мкр. Кузнецовский затон, стр. 1 Литер 1, Секция Л. 6-й этаж 7- этажного жилого дома Общая площадь 45.52кв.м.; Жилая площадь 26.93 кв. м. от ГК Первый Трест . Срок окончания строительства: 4 квартал 2028 года. Пpeдcтaвителям Агентств Недвижимости пpоcим не звонить. Квартира с свободной планировкой, позволяющей реализовать любые дизайнерские решения: - Стены выровнены и оштукатурены, готовые под финишную отделку по вашему вкусу. - Пол: выполнена стяжка, обеспечивающая ровное основание для любых напольных покрытий. - Электрика: разводка выполнена до щитка, что обеспечивает безопасность и удобство при дальнейшем монтаже. - Отопление: установлены радиаторы и выполнена полная разводка системы отопления. - Водоснабжение: выведены коммуникации под воду, готовые для установки сантехнического оборудования. Хотите узнать подробнее о планировке или подобрать по вашим параметрам? Свяжитесь с нами Разработка проекта Первый Остров - амбициозный проект, не имеющий аналогов в Уфе. Он учитывает не только специфику уникальной локации, но и строгие стандарты современного бизнес-класса. Концепция была разработана в связке с двумя архитектурными бюро - российским R1 и голландским LEVS, что позволило эффективно объединить отечественный и мировой опыт проектирования. На берегу двух рек Это самобытное место для комфортной жизни на природе, где с одной стороны река Уфа, а с другой - Белая. Центральная улица комплекса - Бульвар Первых. Она связывает 8 переулков, названных в честь отечественных учёных и первооткрывателей. Это символ гордости за наше прошлое и возможность вдохновиться на новые свершения в будущем. Там, где Уфа впадает в Белую Отправляйтесь на собственный зелёный остров, откуда вам не захочется уезжать. Но если всё же понадобится - вы легко и быстро попадёте в исторический центр Уфы и любую другую точку города. В жилом комплексе запроектированы помещения под магазины, кафе и образовательные учреждения. Также вся необходимая инфраструктура присутствует в пределах пары километров - 8 минут до гипермаркета Лента . - 10 минут до Монумента Дружбы. - 11 минут до ТРЦ Иремель . - 15 минут до Гостиного Двора. - Школы и детские сады в 10-минутном автомобильном радиусе. Ваш город на острове - Разделение на кластеры для удовлетворения запросов всех жителей. - Более 1 км благоустроенной набережной зоны. - Марина для катеров и яхт. - Безопасный двор-сад. - Благоустроенная территория внутри жилого комплекса. - Атмосфера добрососедства. - Свой пляж. Жизнь с видом на залив - Вело-беговые дорожки. - Смотровые площадки. - Места для йоги и зоны отдыха. - Приватный двор-сад. - Пирсы и амфитеатры на берегу. Сценарное проектирование - Квартиры с уникальными видами. - Увеличенные окна высотой до 2,5 м. - Высокие потолки от 2,7 до 4,9 м. - Квартиры с террасами. - Двухуровневые квартиры. Мы предлагаем различные варианты покупки квартир в нашем ж

Читать полностью

    Реализация объекта недвижимости приостановлена

    Не нашли подходящего объявления?

    Оставьте заявку, и наши риэлторы подберут квартиру в новостройке в районе Уфы

    (0)