Реализация объекта недвижимости приостановлена

Информация о квартире

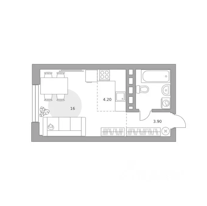
28.0 м2
Площадь
16.0 м2
Жилая
4.0 м2
Кухня
студия
Комнат
20
Этаж
23
Этажность

Дополнительная информация

Тип дома
монолит
Развернуть

Студия Башкортостан, Уфа Зеленая Роща жилрайон, Лесная Симфония жилой ...

Продаётся студия 236, площадью 28,80 м, на 20 этаже в ЖК Лесная симфония корпус 1. Стоимость — от Квартира без отделки, планировка односторонняя, окна во двор.

Читать полностью

    Реализация объекта недвижимости приостановлена

    Не нашли подходящего объявления?

    Оставьте заявку, и наши риэлторы подберут квартиру в новостройке в районе Уфы

    (0)