9 083 600 Р 119 500 $ или 99 850

Информация о квартире

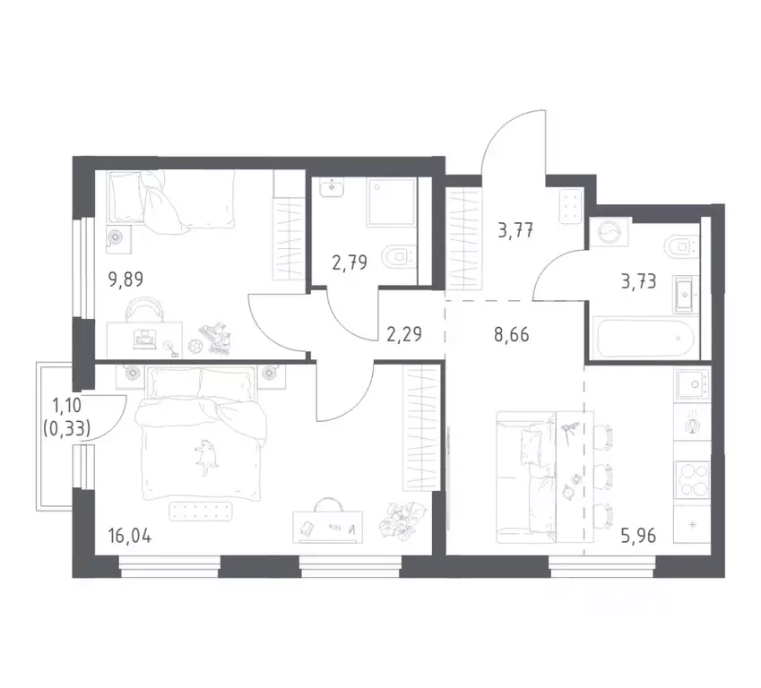
35 м2
Площадь
18 м2
Жилая
6 м2
Кухня
2
Комнаты
22
Этаж
32
Этажность
Развернуть
Агент
+7 (992) 705-11-04
Начать чат с агентом

2-к кв. Башкортостан, Уфа Зеленая Роща жилрайон, Урбаника жилой ...

2-к квартира в URBANICA; По адресу: ул. Минигали Губайдуллина, стр. 3 Литер 3, Секция 2. 22-й этаж 32- этажного жилого дома Общая площадь 35.40кв.м.; Жилая площадь 18.84 кв. м. от ГК Первый Трест . Срок окончания строительства: 1 квартал 2026 года. Квартира с качественной предчистовой отделкой, позволяющей реализовать любые дизайнерские решения: - Стены: выровнены и оштукатурены, готовые под финишную отделку по вашему вкусу. - Пол: выполнена стяжка, обеспечивающая ровное основание для любых напольных покрытий. - Электрика: разводка выполнена до щитка, что обеспечивает безопасность и удобство при дальнейшем монтаже. - Отопление: установлены радиаторы и выполнена полная разводка системы отопления. - Водоснабжение: выведены коммуникации под воду, готовые для установки сантехнического оборудования. Если вы мечтаете жить в красивом и безопасном доме с уникальным дизайном и современными решениями, то ЖК Urbanica создан именно для вас. Здесь каждая деталь продумана, чтобы обеспечить высокий уровень жизни и подарить ощущение уюта и гармонии. Хотите узнать подробнее о планировке или подобрать по вашим параметрам? Свяжитесь с нами Преимущества ЖК Urbanica - Стильный комфорт-класс: Дом, который соответствует самым высоким стандартам качества и дизайна. - Уникальная архитектура и дизайн: Необычные архитектурные решения и дизайнерская отделка холлов создают неповторимую атмосферу элегантности и современности. - Подземный паркинг:Спускайтесь на уровень паркинга с любого жилого этажа на лифте - это удобно и безопасно для вашего автомобиля. - Просторная внутренняя территория: Уникальный дизайн двора предлагает уютное и безопасное пространство для активных игр детей и спокойных прогулок взрослых. - Зона ресепшн: Просторные парадные с дизайнерской отделкой и зонами ресепшн повышают уровень безопасности и добавляют статус вашему дому. - Безбарьерная среда: Забота о каждом жильце - удобство для пожилых людей, мам с колясками и велосипедистов. - Дополнительные помещения для хранения: Освободите пространство в квартире Коляски, велосипеды и самокаты можно хранить в специально отведённых помещениях на первых этажах. - Вместительные кладовые: Храните сезонные вещи и не переживайте о свободном месте в квартире. - Максимум света: Увеличенные окна высотой 1,8 м наполняют квартиры естественным светом, создавая ощущение простора и гармонии. - Современные лифты: Быстрые и бесшумные лифты от мировых производителей доставят вас домой с комфортом. - Активный образ жизни: На территории комплекса предусмотрены спортивные площадки для футбола и баскетбола, а зона WorkOut с современными тренажёрами станет отличным местом для поддержания формы. Инфраструктура Расположение дома в центре развитой инфраструктуры предоставляет будущим жильцам различные варианты организации досуга: пойти на прогулку в лес, заняться спортом, посетить торговые центры, отправиться за покупками - всё в шаговой доступности. Жители будут обеспечены в

Читать полностью
    Позвонить Написать
    9 083 600 Р119 500 $ или 99 850
    Агент
    +7 (992) 705-11-04
    Начать чат с агентом
    Похожие предложения в Уфе
    2-к кв. Башкортостан, Уфа ул. Ленина, 192 (45.1 м) - Фото 1
    2-к кв. Башкортостан, Уфа ул. Ленина, 192 (45.1 м) - Фото 2
    2-комнатная квартира, общая площадь 45м², жилая 21м², кухня 6м²

    Продается 2-комнатная квартира бизнес класса на 17 этаже в предчистовой отделке в ЖК Ленинские высотки от застройщика в Уфе. Замораживаем цены 2025 года Квартиры бизнес-класса в ЖК Ленинские Высотки по цене отуб за...
    • 45 м²
    • 2-ком
    • 17/25 эт.
    • монолит
    9 195 000 Р
    Агент
    +7 (938) Показать номер
    Посмотреть контакты
    2-к кв. Башкортостан, Уфа ул. Ленина, 192 (45.1 м) - Фото 1
    2-к кв. Башкортостан, Уфа ул. Ленина, 192 (45.1 м) - Фото 2
    2-комнатная квартира, общая площадь 45м², жилая 21м², кухня 6м²

    Продается 2-комнатная квартира бизнес класса на 15 этаже в предчистовой отделке в ЖК Ленинские высотки от застройщика в Уфе. Замораживаем цены 2025 года Квартиры бизнес-класса в ЖК Ленинские Высотки по цене отуб за...
    • 45 м²
    • 2-ком
    • 15/25 эт.
    • монолит
    9 135 000 Р
    Агент
    +7 (938) Показать номер
    Посмотреть контакты
    2-к кв. Башкортостан, Уфа Зеленая Роща жилрайон, Урбаника жилой ... - Фото 1
    2-к кв. Башкортостан, Уфа Зеленая Роща жилрайон, Урбаника жилой ... - Фото 2
    2-комнатная квартира, общая площадь 42м², жилая 21м², кухня 11м²

    2-к квартира в URBANICA; По адресу: ул. Художника Позднова, д. 11 Литер 2, Секция 1. 19-й этаж 25- этажного жилого дома Общая площадь 42.94кв.м.; Жилая площадь 21.60 кв. м. от ГК Первый Трест . Дом сдан. Квартира с качественной предчистовой отделкой,...
    • 42 м²
    • 2-ком
    • 19/25 эт.
    9 189 200 Р
    Агент
    +7 (992) Показать номер
    Посмотреть контакты
    2-к кв. Башкортостан, Уфа ул. Минигали Губайдуллина, 8к9 (53.46 м) - Фото 1
    2-к кв. Башкортостан, Уфа ул. Минигали Губайдуллина, 8к9 (53.46 м) - Фото 2
    2-комнатная квартира, общая площадь 53м², жилая 25м²

    Строим кварталы для жизни с заботой о будущем. Предлагается 2-комнатная квартира комфорт-класса площадью 53.46 кв.м в корпусе 1КВ на 2-м этаже, в жилом комплексе Урбан Тау .Квартиры без отделки. Доступность опции отделка и возможность комплектации...
    • 53 м²
    • 2-ком
    • 2/25 эт.
    • монолит
    9 107 178 Р
    Агент
    +7 (992) Показать номер
    Посмотреть контакты
    1-к кв. Башкортостан, Уфа ул. Минигали Губайдуллина, 8к9 (39.2 м) - Фото 1
    1-к кв. Башкортостан, Уфа ул. Минигали Губайдуллина, 8к9 (39.2 м) - Фото 2
    1-комнатная квартира, общая площадь 39м², жилая 13м², кухня 11м²

    Строим кварталы для жизни с заботой о будущем. Предлагается 1-комнатная квартира комфорт-класса площадью 39.2 кв.м в корпусе 1КВ на 10-м этаже, в жилом комплексе Урбан Тау .Во всех квартирах будет готовая отделка. Мы установим натяжные потолки, поклеим...
    • 39 м²
    • 1-ком
    • 10/25 эт.
    • монолит
    9 179 229 Р
    Агент
    +7 (992) Показать номер
    Посмотреть контакты

    Не нашли подходящего объявления?

    Оставьте заявку, и наши риэлторы подберут квартиру в новостройке в районе Уфы

    (0)