Реализация объекта недвижимости приостановлена

Информация о квартире

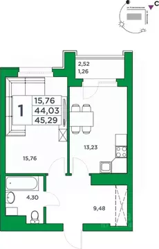
75.0 м2
Площадь
40.0 м2
Жилая
3
Комнаты
15
Этаж
20
Этажность
Развернуть

3-к кв. Башкортостан, Уфа бул. Яркий (75.64 м)

Самый семейный и масштабный проект в регионе Экогород Яркий — место, где соединяются удобства города и естественная красота природы. 5 кварталов сданы и заселены. Еще 3 — в активной стадии строительства.Почему сюда переезжают, чтобы остаться навсегда? Дышите самым чистым воздухом в Уфе.Ваш дом — в окружении леса и двух озер, вдали от промзон. Это уникальная концепция экогорода всего в 15 минутах от центра. Новый автобусный маршрут — скоро Престижное образование — уже сейчас На территории уже работает полилингвальная гимназия и детский сад, а новая современная школа скоро откроет свои двери. Всё — в шаговой доступности. Уникальные дворы-гостиные.Дворы без машин с умными детскими площадками, спортом, зонами для работы и отдыха. Умная экономия и комфорт.Собственные котельные экономят вам до 30 на платежах за тепло. Просторные холлы с дизайнерской мебелью, колясочными и велопарковками. Транспортная доступность.Остановка у дома, 6 действующих маршрутов и скоро — новый автобусный маршрут для еще большего удобства. Kвартиры c кaчecтвeнной предчистовой отделкой, позволяющей реализовать любые дизайнерские решения.Ваш переезд мечты — мы сделали его простым:• Ипотека для всех от 13,3 на весь срок• Семейная ипотека 3,5 • Рассрочка без • Trade-in: поможем продать старую недвижимость, оформить все документы и провести сделку.Не откладывайте покупку, подача заявки на ипотеку в офисе ГК Третий трест .Свяжитесь с нами, чтобы узнать подробности. Мы расскажем обо всех возможностях покупки и подберём для Вас лучший вариант

Читать полностью

    Реализация объекта недвижимости приостановлена

    Не нашли подходящего объявления?

    Оставьте заявку, и наши риэлторы подберут квартиру в новостройке в районе Уфы

    (0)