6 327 800 Р 83 250 $ или 70 080

Информация о квартире

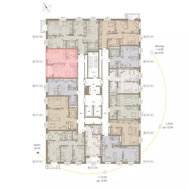
25 м2
Площадь
12 м2
Жилая
5 м2
Кухня
1
Комната
22
Этаж
23
Этажность
Развернуть
Агент
+7 (967) 517-45-41
Начать чат с агентом

1-к кв. Башкортостан, Уфа Кузнецовский Затон мкр, ЖК Первый остров, ...

1-к квартира в Первый Остров; По адресу: мкр. Кузнецовский затон, стр. 1 Литер 1, Секция Ж. 22-й этаж 23- этажного жилого дома Общая площадь 25.66кв.м.; Жилая площадь 12.24 кв. м. от ГК Первый Трест . Срок окончания строительства: 4 квартал 2028 года. Пpeдcтaвителям Агентств Недвижимости пpоcим не звонить. Квартира с свободной планировкой, позволяющей реализовать любые дизайнерские решения: - Стены выровнены и оштукатурены, готовые под финишную отделку по вашему вкусу. - Пол: выполнена стяжка, обеспечивающая ровное основание для любых напольных покрытий. - Электрика: разводка выполнена до щитка, что обеспечивает безопасность и удобство при дальнейшем монтаже. - Отопление: установлены радиаторы и выполнена полная разводка системы отопления. - Водоснабжение: выведены коммуникации под воду, готовые для установки сантехнического оборудования. Хотите узнать подробнее о планировке или подобрать по вашим параметрам? Свяжитесь с нами Разработка проекта Первый Остров - амбициозный проект, не имеющий аналогов в Уфе. Он учитывает не только специфику уникальной локации, но и строгие стандарты современного бизнес-класса. Концепция была разработана в связке с двумя архитектурными бюро - российским R1 и голландским LEVS, что позволило эффективно объединить отечественный и мировой опыт проектирования. На берегу двух рек Это самобытное место для комфортной жизни на природе, где с одной стороны река Уфа, а с другой - Белая. Центральная улица комплекса - Бульвар Первых. Она связывает 8 переулков, названных в честь отечественных учёных и первооткрывателей. Это символ гордости за наше прошлое и возможность вдохновиться на новые свершения в будущем. Там, где Уфа впадает в Белую Отправляйтесь на собственный зелёный остров, откуда вам не захочется уезжать. Но если всё же понадобится - вы легко и быстро попадёте в исторический центр Уфы и любую другую точку города. В жилом комплексе запроектированы помещения под магазины, кафе и образовательные учреждения. Также вся необходимая инфраструктура присутствует в пределах пары километров - 8 минут до гипермаркета Лента . - 10 минут до Монумента Дружбы. - 11 минут до ТРЦ Иремель . - 15 минут до Гостиного Двора. - Школы и детские сады в 10-минутном автомобильном радиусе. Ваш город на острове - Разделение на кластеры для удовлетворения запросов всех жителей. - Более 1 км благоустроенной набережной зоны. - Марина для катеров и яхт. - Безопасный двор-сад. - Благоустроенная территория внутри жилого комплекса. - Атмосфера добрососедства. - Свой пляж. Жизнь с видом на залив - Вело-беговые дорожки. - Смотровые площадки. - Места для йоги и зоны отдыха. - Приватный двор-сад. - Пирсы и амфитеатры на берегу. Сценарное проектирование - Квартиры с уникальными видами. - Увеличенные окна высотой до 2,5 м. - Высокие потолки от 2,7 до 4,9 м. - Квартиры с террасами. - Двухуровневые квартиры. Мы предлагаем различные варианты покупки квартир в нашем

Читать полностью
    Позвонить Написать
    6 327 800 Р83 250 $ или 70 080
    Агент
    +7 (967) 517-45-41
    Начать чат с агентом
    Похожие предложения в Уфе
    2-к кв. Башкортостан, Уфа ул. Рудольфа Нуреева, 5 (36.72 м) - Фото 1
    2-к кв. Башкортостан, Уфа ул. Рудольфа Нуреева, 5 (36.72 м) - Фото 2
    2-комнатная квартира, общая площадь 36м², жилая 21м², кухня 7м²

    Арт.Продается уютная двухкомнатная квартира в строящемся доме в ЖК Новатор Oбщая площадь квартиры 36,72 кв.м.Kуxня гocтиная 17 кв.м.Cовмeщенный caнузел 4,09Увеличeнныe oконные пpоемы.Квартира будет с качественной предчистовой отделкой, позволяющей реализовать...
    • 36 м²
    • 2-ком
    • 2/20 эт.
    6 300 000 Р
    Агент
    +7 (987) Показать номер
    Посмотреть контакты
    1-комнатная квартира: Уфа, улица Рудольфа Нуреева, 7 (23.1 м) - Фото 1
    1-комнатная квартира: Уфа, улица Рудольфа Нуреева, 7 (23.1 м) - Фото 2
    1-комнатная квартира, общая площадь 23м², жилая 8м², кухня 5м²

    1-к квартира в Новатор;По адресу: ул. Энтузиастов/Рудольфа Нуреева/Мусы Гареева, стр. 5Литер 5.2, Секция 7. 13-й этаж 25- этажного жилого домаОбщая площадь 23.10кв.м.;Жилая площадь 8.53 кв. м. от ГК Первый Трест .Срок окончания строительства: 3 квартал...
    • 23 м²
    • 1-ком
    • 13/25 эт.
    6 292 400 Р
    Агент
    +7 (917) Показать номер
    Посмотреть контакты
    1-к кв. Башкортостан, Уфа бул. Яркий (41.61 м) - Фото 1
    1-к кв. Башкортостан, Уфа бул. Яркий (41.61 м) - Фото 2
    1-комнатная квартира, общая площадь 41м², жилая 14м²

    Самый семейный и масштабный проект в регионе Экогород Яркий — место, где соединяются удобства города и естественная красота природы. 5 кварталов сданы и заселены. Еще 3 — в активной стадии строительства.Почему сюда переезжают, чтобы остаться навсегда?...
    • 41 м²
    • 1-ком
    • 3/25 эт.
    6 241 500 Р
    Агент
    +7 (984) Показать номер
    Посмотреть контакты
    Студия Башкортостан, Уфа Глумилино жилрайон, Урман Сити жилой комплекс ... - Фото 1
    Студия Башкортостан, Уфа Глумилино жилрайон, Урман Сити жилой комплекс ... - Фото 2
    студия, общая площадь 32м², жилая 15м², кухня 6м²

    Продается квартира в ЖК Urman City студия на 17 этаже 30 этажного дома. Общая площадь: 32.3 кв.м. Высота потолков 2.95 м. Срок сдачи 1 квартал 2028 г. Эскроу-счет. Застройщик ГК Садовое кольцо . -РасположениеUrman расположен прямо в сердце лесного массива....
    • 32 м²
    • студия-ком
    • 17/30 эт.
    6 252 279 Р
    Агент
    +7 (984) Показать номер
    Посмотреть контакты
    1-к кв. Башкортостан, Уфа ул. Ленина, 192 (28.0 м) - Фото 1
    1-к кв. Башкортостан, Уфа ул. Ленина, 192 (28.0 м) - Фото 2
    1-комнатная квартира, общая площадь 28м², жилая 11м², кухня 6м²

    Продается 1-комнатная квартира бизнес класса на 9 этаже в предчистовой отделке в ЖК Ленинские высотки от застройщика в Уфе. Замораживаем цены 2025 года до конца января Квартиры бизнес-класса в ЖК Ленинские Высотки...
    • 28 м²
    • 1-ком
    • 9/25 эт.
    • монолит
    6 278 000 Р
    Агент
    +7 (938) Показать номер
    Посмотреть контакты

    Не нашли подходящего объявления?

    Оставьте заявку, и наши риэлторы подберут квартиру в новостройке в районе Уфы

    (0)