Реализация объекта недвижимости приостановлена

Информация о квартире

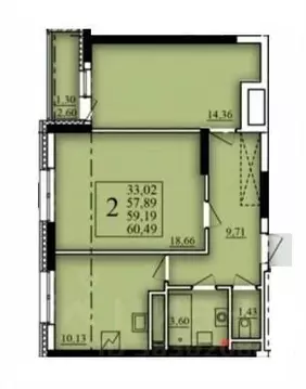
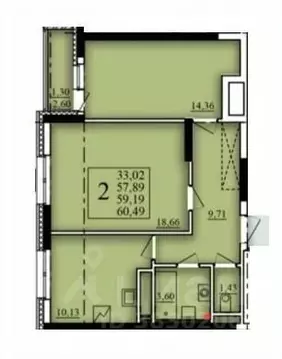
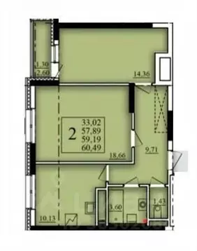
58.0 м2
Площадь
2
Комнаты
11
Этаж
21
Этажность
Развернуть

2-к кв. Башкортостан, Уфа Затон-Восточный жилрайон, Паруса жилой ...

Продаётся 2-комнатная квартира в строящемся доме (литер 4), срок сдачи: IV-кв. 2026, общей площадью 58.52 кв.м., на 11 этаже. Новый жилой комплекс от застройщика СЗ ИСК г. Уфыасположен по адресу Уфа, проспект Дружбы Народов.

Читать полностью

    Реализация объекта недвижимости приостановлена

    Не нашли подходящего объявления?

    Оставьте заявку, и наши риэлторы подберут квартиру в новостройке в районе Уфы

    (0)