Реализация объекта недвижимости приостановлена

Информация о квартире

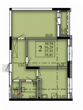
72.0 м2
Площадь
2
Комнаты
2
Этаж
21
Этажность
Развернуть

2-к кв. Башкортостан, Уфа Затон-Восточный жилрайон, Паруса жилой ...

Продаётся 2-комнатная квартира в строящемся доме (литер 4), срок сдачи: IV-кв. 2026, общей площадью 72.12 кв.м., на 2 этаже. Новый жилой комплекс от застройщика СЗ ИСК г. Уфыасположен по адресу Уфа, проспект Дружбы Народов.

Читать полностью

    Реализация объекта недвижимости приостановлена

    Не нашли подходящего объявления?

    Оставьте заявку, и наши риэлторы подберут квартиру в новостройке в районе Уфы

    (0)